Villa a Schiera Via acquario, Cesenatico
€ 320.000Villa a schiera in vendita
CESENATICO - località Villamarina.
In zona tranquilla e residenziale, proponiamo in vendita una villetta a schiera disposta su quattro livelli, completa di corte privata.
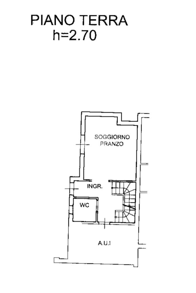
Al piano terra si trova l’ingresso principale dell’abitazione che conduce direttamente alla zona giorno, composta da un soggiorno con angolo cottura ed accesso sul balcone. E’ presente un bagno finestrato, di servizio. Sullo stesso livello troviamo anche l’accesso diretto al garage.
Una scala a chiocciola collega i vari livelli della casa.
Al primo piano si sviluppa la zona notte, composta da una camera da letto matrimoniale, una camera doppia entrambe con accesso al balcone, e un secondo bagno finestrato e dotato di box doccia.
Proseguendo al piano superiore si raggiunge la mansarda, uno spazio versatile che può essere utilizzato come studio, area relax o terza camera, anch’essa dotata di balcone.
Al piano interrato troviamo una taverna, con lavanderia e ripostiglio, completata da un ulteriore bagno.
La soluzione è dotata di riscaldamento autonomo ed aria condizionata.
CHIAMACI per ulteriori informazioni o per fissare un appuntamento allo 0547.85938 oppure inviaci una mail e sarai ricontattato al più presto.
In zona tranquilla e residenziale, proponiamo in vendita una villetta a schiera disposta su quattro livelli, completa di corte privata.
Al piano terra si trova l’ingresso principale dell’abitazione che conduce direttamente alla zona giorno, composta da un soggiorno con angolo cottura ed accesso sul balcone. E’ presente un bagno finestrato, di servizio. Sullo stesso livello troviamo anche l’accesso diretto al garage.
Una scala a chiocciola collega i vari livelli della casa.
Al primo piano si sviluppa la zona notte, composta da una camera da letto matrimoniale, una camera doppia entrambe con accesso al balcone, e un secondo bagno finestrato e dotato di box doccia.
Proseguendo al piano superiore si raggiunge la mansarda, uno spazio versatile che può essere utilizzato come studio, area relax o terza camera, anch’essa dotata di balcone.
Al piano interrato troviamo una taverna, con lavanderia e ripostiglio, completata da un ulteriore bagno.
La soluzione è dotata di riscaldamento autonomo ed aria condizionata.
CHIAMACI per ulteriori informazioni o per fissare un appuntamento allo 0547.85938 oppure inviaci una mail e sarai ricontattato al più presto.
Dati principali
| Riferimento | 61208607 |
| Data annuncio | 21/04/2026 |
| Contratto | Vendita |
| Tipologia | Villa a Schiera |
| Superficie | 135 m2 |
| Locali | 4 (3 camere da letto, 1 altro), 3 bagni |
| Piano | 4 totali |
| Numero posti auto | 1 |
Costi
| Prezzo | 320.000 € |
| Prezzo al m2 | 2.370 €/m2 |
Efficienza energetica
| Anno costruzione | 2000 |
| Riscaldamento | Autonomo |
| Tipo Alimentazione Riscaldamento | Metano |
| Classe energetica | G |
| Indice di prestazione energetica (IPE) | - |
Planimetrie
Indirizzo e mappa
Via acquario, Cesenatico
Calcolo mutuo
Prezzo di vendita:
Anticipo
20,00
Mutuo
80,00
Tasso: -+
Rata: 915 al mese
I risultati sono una stima indicativa basata sui dati inseriti e non costituiscono un’offerta finanziaria.
Inserzionista
Chiama
CONTATTA

