Appartamento via Mario giannini 1, Bari
€ 350.000
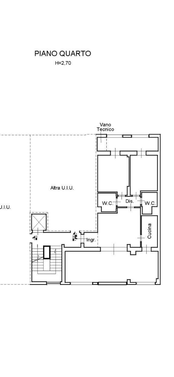
L'appartamento in vendita si trova in una delle zone più ricercate di Bari, precisamente in zona Mungivacca Ubicato all'interno del nuovo complesso residenziale Borgo SantAntonio ultimato nel 2025. La corte interna è il cuore del complesso, silenziosa lontana dalla strada ,ricca di fioriere e panchine, area tutta pedonale che ospita l'ingresso dei portoni delle diverse scale.E' qui che affaccia l'ampio balcone terrazzato dell'appartamento. La sua metratura totale è di 89 metri quadrati,al quarto piano. Entrando l' ingresso si apre sul living dove grandi vetrate affacciano sul grande balcone ,una comoda e indipendente zona cottura, a seguire due camere da letto e due bagni. Finemente arredato. Le finiture sono di ottima qualità e garantiscono un ambiente moderno e accogliente. Posizione strategica per la presenza di servizi e mezzi di trasporto che rendono questo quartiere ideale per chi desidera vivere in una zona tranquilla ma ben collegata al resto della città, nelle vicinanze l'accesso alle maggiori arterie stradali che conducono al centro della città ma anche alla periferia attraverso la SS16. Sono presenti anche un box situato al piano seminterrato, un posto auto e una cantina.
Dati principali
| Riferimento | 8 |
| Data annuncio | 21/04/2026 |
| Contratto | Vendita |
| Tipologia | Appartamento |
| Superficie | 89 m2 |
| Locali | 3 (2 camere da letto, 1 altro), 2 bagni, cucina cucinino |
| Piano | 4 |
| Occupato | Libero |
| Box auto | Singolo |
| Numero posti auto | 1 |
| Arredamento | Assente |
Caratteristiche
Costi
| Prezzo | 350.000 € |
| Prezzo al m2 | 3.933 €/m2 |
Efficienza energetica
| Stato | Buono |
| Riscaldamento | Autonomo |
| Tipo Impianto Di Riscaldamento | ad aria |
| Tipo Alimentazione Riscaldamento | Altro |
| Classe energetica | A4 |
Planimetrie
Indirizzo e mappa
via Mario giannini
1, Bari
Annuncio senza mappa,
prova a chiedere la posizione all'inserzionista
prova a chiedere la posizione all'inserzionista
Calcolo mutuo
Prezzo di vendita:
Anticipo
20,00
Mutuo
80,00
Tasso: -+
Rata: 1.001 al mese
I risultati sono una stima indicativa basata sui dati inseriti e non costituiscono un’offerta finanziaria.
Inserzionista

Homesstudio
Strada Vassallo 3, Bari
Mostra Cellulare
Chiama
CONTATTA

