Appartamento Giulianova
€ 223.000
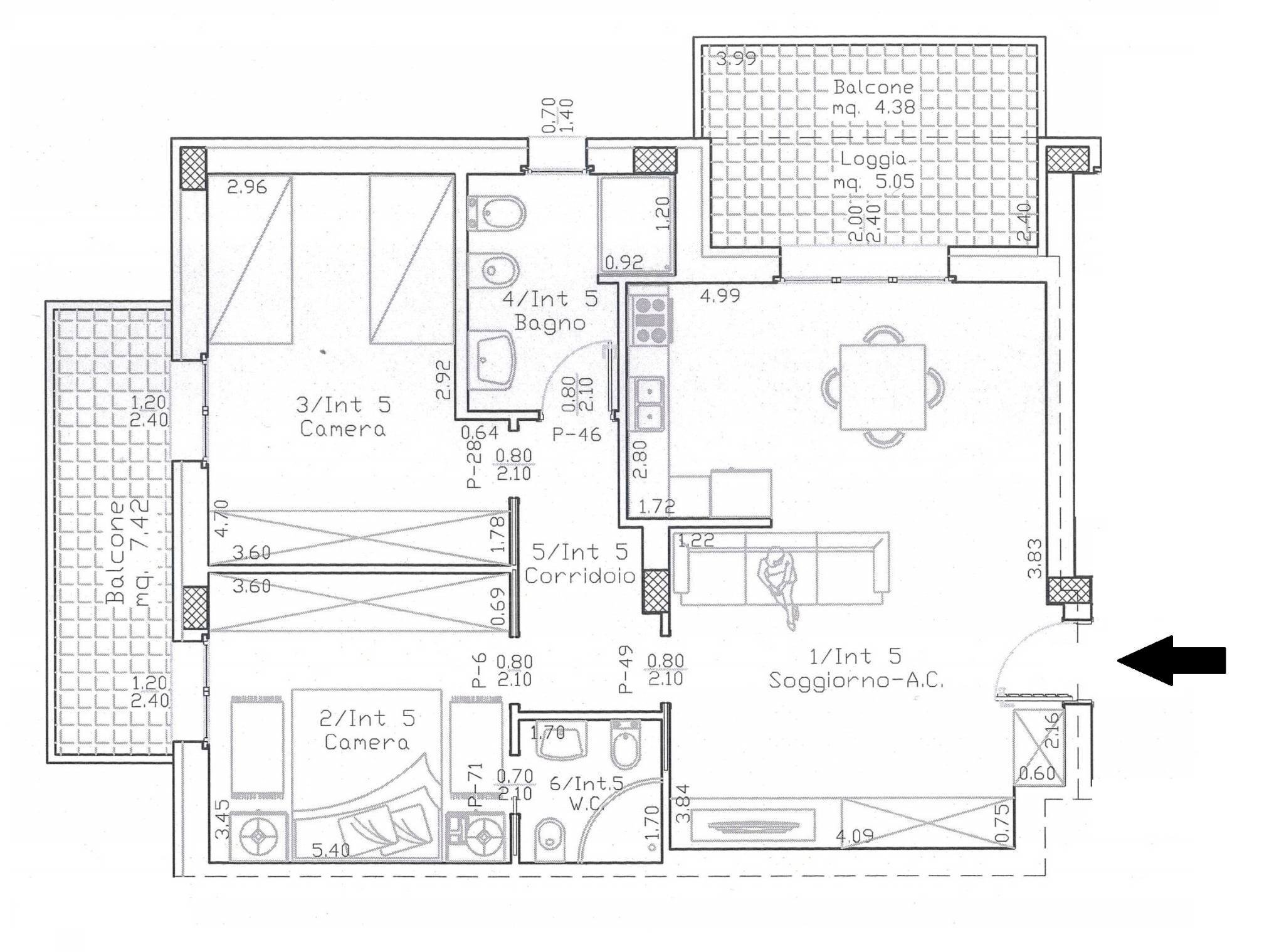
Proponiamo appartamento in corso di realizzazione composto da ampio soggiorno con angolo cottura con terrazza loggiata a servizio, 2 camere matrimoniali e 2 bagni. Le finiture sono di alta qualità, con riscaldamento a pavimento e isolamento termico per garantire il massimo comfort, mentre l'impianto fotovoltaico condominiale aggiunge ulteriori vantaggi ecologici ed economici. Ampie possibilità di personalizzazione. Disponibili box auto da acquistare a parte. Consegna estate 2026.
Dati principali
| Riferimento | 03224 |
| Data annuncio | 21/02/2025 |
| Contratto | Vendita |
| Tipologia | Appartamento |
| Superficie | 88 m2 |
| Locali | 3 (2 camere da letto, 1 altro), 2 bagni, cucina angolo cottura |
| Piano | 1 di 2 totali |
| Tipo di costruzione | Signorile |
| Numero di balconi | 1 |
| Arredamento | Assente |
Costi
| Prezzo | 223.000 € |
| Prezzo al m2 | 2.534 €/m2 |
Efficienza energetica
| Anno costruzione | 2026 |
| Stato | Nuovo |
| Riscaldamento | Autonomo |
| Classe energetica | Immobile esente da certificazione energetica |
Planimetrie
Indirizzo e mappa
Giulianova
Annuncio senza mappa,
prova a chiedere la posizione all'inserzionista
prova a chiedere la posizione all'inserzionista
Calcolo mutuo
Prezzo di vendita:
Anticipo
20,00
Mutuo
80,00
Tasso: -+
Rata: 638 al mese
I risultati sono una stima indicativa basata sui dati inseriti e non costituiscono un’offerta finanziaria.
Inserzionista

Casanova Immobiliare
Viale Orsini, Giulianova
Mostra Telefono
Chiama
CONTATTA

