Trilocale via dei longobardi, frazione Milano 3, Basiglio
€ 410.000Trilocale in vendita
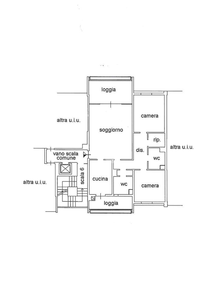
Si propone in vendita trilocale di 125 mq, situato al secondo piano con esposizione sud/ovest, che garantisce una buona luminosità durante tutta la giornata. L’appartamento, moderno e ristrutturato, presenta ambienti ben distribuiti e funzionali. L’ingresso conduce a un ampio soggiorno con loggia affacciata sul parco, affiancato da una cucina abitabile con accesso al balcone. La zona notte è composta da due camere matrimoniali, un pratico ripostiglio e doppi servizi: un bagno finestrato con vasca e un secondo bagno con doccia. Parte degli arredi perfettamente integrati negli ambienti è inclusa nel prezzo, conferendo ulteriore valore e praticità alla soluzione.
Completa la proprietà una cantina al piano terra
Possibilità di box medio €30.000
Completa la proprietà una cantina al piano terra
Possibilità di box medio €30.000
Dati principali
| Riferimento | 61208780 |
| Data annuncio | 21/04/2026 |
| Contratto | Vendita |
| Tipologia | Appartamento |
| Superficie | 125 m2 |
| Locali | 3 (3 altro), 2 bagni |
| Piano | 2 di 6 totali |
Costi
| Prezzo | 410.000 € |
| Prezzo al m2 | 3.280 €/m2 |
| Spese condominiali | € 333,00/mese |
Efficienza energetica
| Anno costruzione | 1970 |
| Riscaldamento | Centralizzato |
| Classe energetica | F |
| Indice di prestazione energetica (IPE) | - |
Planimetrie
Video
Indirizzo e mappa
via dei longobardi, Basiglio - località Milano 3
Calcolo mutuo
Prezzo di vendita:
Anticipo
20,00
Mutuo
80,00
Tasso: -+
Rata: 1.173 al mese
I risultati sono una stima indicativa basata sui dati inseriti e non costituiscono un’offerta finanziaria.
Inserzionista
Chiama
CONTATTA

