Quadrilocale Via Casale, Chivasso
€ 139.000Quadrilocale in vendita
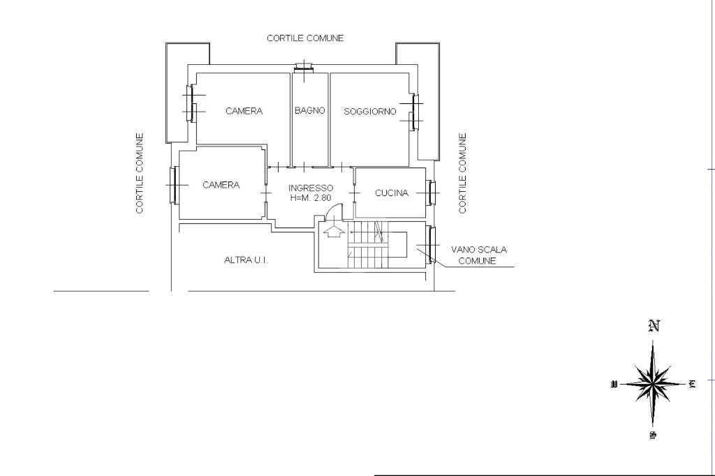
Nella comoda frazione Castelrosso, a pochi minuti da Chivasso, per chi ama la tranquillità dei piccoli contesti e vuole passare momenti di tranquillità all'aperto, proponiamo in vendita un alloggio in piccolo complesso di sole otto famiglie. Il condominio è accessibile tramite ingresso carrabile, dal quale si percorre il viale che conduce al contesto abitativo. L'immobile si trova al piano rialzato, è composto da ingresso su ampio disimpegno che dà accesso alla cucina abitabile, al soggiorno, alle due camere da letto e al bagno. Internamente si presenta ristrutturato e gli interventi effettuati, quali infissi in doppio vetro/pvc con zanzariere, caldaia a condensazione, climatizzatore e antifurto, ne migliorano il comfort. Esternamente sono presenti due ampi balconi, dotati di tende da sole. Adiacente all'alloggio è possibile godere di un comodo giardino ben curato. Il complesso condominiale dispone di ampio giardino e spazi comuni sfruttabili. A completare la proprietà ci sono due cantine spaziose ed il box auto.
Dati principali
| Riferimento | 61208582 |
| Data annuncio | 19/04/2026 |
| Contratto | Vendita |
| Tipologia | Appartamento |
| Superficie | 95 m2 |
| Locali | 4 (4 altro), 1 bagno |
| Piano | 2 totali |
Costi
| Prezzo | 139.000 € |
| Prezzo al m2 | 1.463 €/m2 |
| Spese condominiali | € 67,00/mese |
Efficienza energetica
| Anno costruzione | 1974 |
| Riscaldamento | Autonomo |
| Tipo Alimentazione Riscaldamento | Metano |
| Classe energetica | D |
| Indice di prestazione energetica (IPE) | - |
Planimetrie
Indirizzo e mappa
Via Casale, Chivasso
Calcolo mutuo
Prezzo di vendita:
Anticipo
20,00
Mutuo
80,00
Tasso: -+
Rata: 398 al mese
I risultati sono una stima indicativa basata sui dati inseriti e non costituiscono un’offerta finanziaria.
Inserzionista
Chiama
CONTATTA

