Attico via Nazionale, 5, Bellante
€ 135.000AMPIO APPARTAMENTO PANORAMICO CON GRANDI TERRAZZI
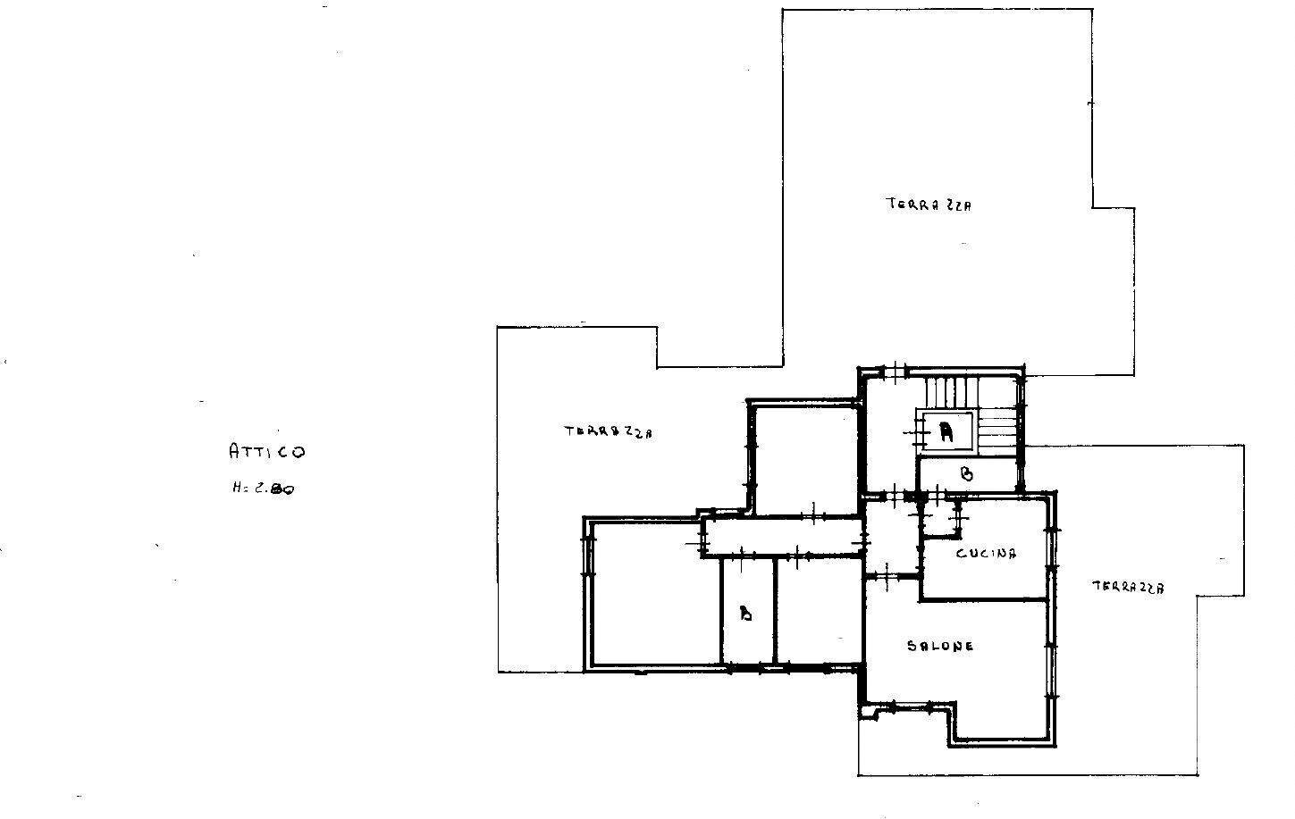
Ampio appartamento panoramico con grandi terrazzi e lastrico solare di proprietà, in posizione strategica e servitissima, nel Comune di Bellante. Proponiamo in vendita ampio appartamento di circa 140 mq, situato al quarto piano di una palazzina in Via Nazionale, a pochi minuti dal casello autostradale e lungo la principale arteria che collega Teramo alla costa adriatica. L’immobile si distingue per spazi generosi, grande luminosità e una vista panoramica aperta sulle colline circostanti. Spazi esterni e valore aggiunto, 3 ampie aree esterne / terrazzi per circa 291 mq. totalmente vivibili e personalizzabili, ideali per zona relax, pranzi all’aperto, area verde o spazi hobby. Panorama suggestivo sulle colline, con affacci aperti e ottima esposizione. Lastrico solare di proprietà, elemento raro e di grande valore, sfruttabile per efficientamento energetico, installazione di pannelli solari, impianti per la climatizzazione o soluzioni tecnologiche evolute. Posti auto esterni, garage e fondaco di pertinenza ideale come deposito, dispensa o spazio di servizio. A pochi minuti dal casello autostradale, posizione strategica tra Teramo e la costa adriatica. Tutti i principali servizi nelle immediate vicinanze, inclusi centro commerciale, negozi, attività e collegamenti principali Grazie al piano alto, l’appartamento risulta estremamente luminoso, arioso e panoramico, rappresentando una soluzione ideale per famiglie, per chi cerca grandi spazi esterni, o come investimento immobiliare di qualità. Immobile regolarmente accatastato. Punti di forza dell'immobile: - #UltimoPianoPanoramico - #GrandiTerrazzi - #PosizioneStrategica L'immobile è situato a pochi metri dalla stazione di BELLANTE-RIPATTONE (380 m). L'asilo per bambini più vicino è INFANZIA BELLANTE STAZIONE (140 m). Stai pensando di vendere o affittare casa? Con RockAgent puoi vendere o affittare il tuo immobile assicurandoti un servizio eccellente, garantito da agenti immobiliari selezionati supportati da un team tecnico, marketing e legale di altissimo livello. Visita il sito RockAgent.it e ottieni una valutazione gratuita del tuo immobile.
Dati principali
| Riferimento | 181088 - 02/04/2026 |
| Data annuncio | 26/02/2026 |
| Contratto | Vendita |
| Tipologia | Attico |
| Superficie | 141 m2 |
| Locali | 5 (3 camere da letto, 2 altro), 2 bagni, cucina abitabile |
| Piano | 4 di 4 totali |
| Tipo di costruzione | Media |
| Numero di terrazzi | 1 |
| Box auto | Singolo |
| Numero posti auto | 2 |
| Arredamento | Parziale |
Caratteristiche
Costi
| Prezzo | 135.000 € |
| Prezzo al m2 | 957 €/m2 |
| Spese condominiali | € 109,00/mese |
Efficienza energetica
| Anno costruzione | 1980 |
| Stato | Ottimo |
| Riscaldamento | Autonomo |
| Classe energetica | E |
| Indice di prestazione energetica (IPE) | 175 kWh/m2 anno |
Planimetrie
Indirizzo e mappa
via Nazionale, 5, Bellante
Calcolo mutuo
Prezzo di vendita:
Anticipo
20,00
Mutuo
80,00
Tasso: -+
Rata: 386 al mese
I risultati sono una stima indicativa basata sui dati inseriti e non costituiscono un’offerta finanziaria.
Inserzionista

RockAgent
Via di Santa Costanza 21, Roma
Mostra Telefono
Chiama
CONTATTA

