Appartamento Via Roma 39, Saludecio
€ 200.000
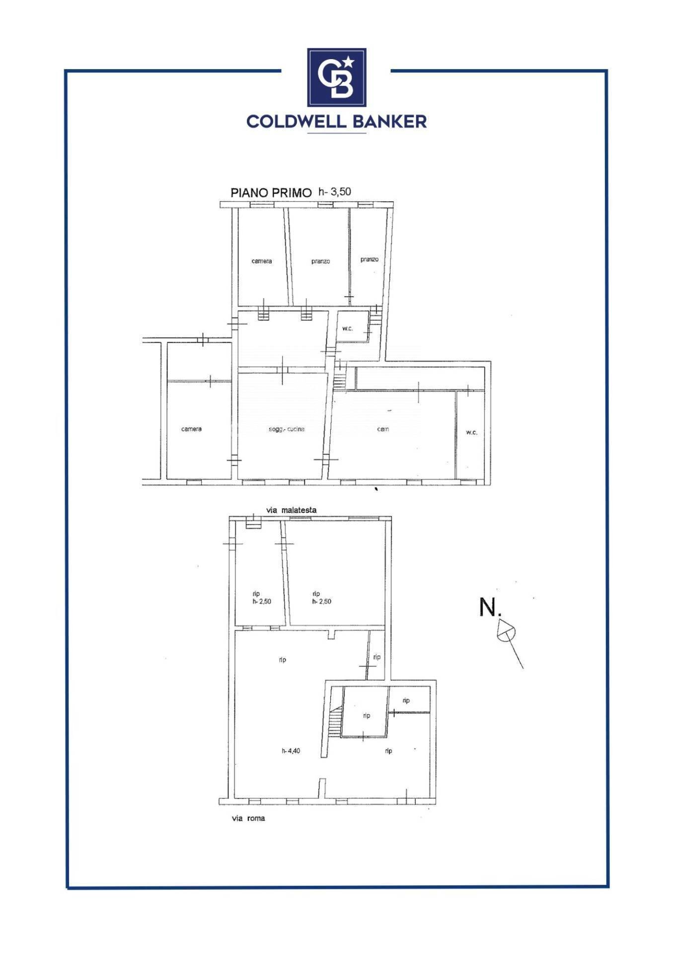
Appartamento di Rilevanza Storica nel Centro di Saludecio Nel centro storico di Saludecio, proponiamo in vendita un ampio appartamento di rilevanza storica, risalente al XVIII Secolo. Laccesso principale conduce al primo piano, dove si apprezza immediatamente il tetto ricostruito, testimonianza degli eventi bellici che interessarono limmobile, in seguito alla caduta di un ordigno durante i bombardamenti. Dallingresso si apre un ampio soggiorno che conduce alla cucina e a un grande salotto, da cui si accede a due camere matrimoniali. Labitazione dispone inoltre di altre due camere e due bagni, offrendo una distribuzione interna ampia e versatile. Tutti gli ambienti risultano spaziosi, luminosi e caratterizzati da soffitti molto alti, elementi che conferiscono grande potenziale abitativo. A completare la proprietà, al piano terra, una ampia cantina di circa 230 mq, completamente da ristrutturare, ideale per la realizzazione di un ulteriore appartamento, di uno spazio accessorio o di un progetto a reddito. È inoltre presente un'area lavanderia privata. Una soluzione di grande interesse per chi cerca un immobile dal forte carattere storico, con ampie metrature e notevoli possibilità di valorizzazione, nel cuore di uno dei borghi più affascinanti dellentroterra romagnolo.
Dati principali
| Riferimento | CBI099-2968-520839 |
| Data annuncio | 19/04/2026 |
| Contratto | Vendita |
| Tipologia | Appartamento |
| Superficie | 405 m2 |
| Locali | più di 5 (4 camere da letto, 3 altro), 2 bagni, cucina abitabile |
| Piano | 1 di 2 totali |
| Occupato | Libero |
| Box auto | Assente |
| Arredamento | Parziale |
Caratteristiche
Costi
| Prezzo | 200.000 € |
| Prezzo al m2 | 494 €/m2 |
Efficienza energetica
| Stato | Da ristrutturare |
| Riscaldamento | Autonomo |
| Classe energetica | G |
| Indice di prestazione energetica (IPE) | - |
Planimetrie
Virtual tour
Indirizzo e mappa
Via Roma
39, Saludecio
Annuncio senza mappa,
prova a chiedere la posizione all'inserzionista
prova a chiedere la posizione all'inserzionista
Calcolo mutuo
Prezzo di vendita:
Anticipo
20,00
Mutuo
80,00
Tasso: -+
Rata: 572 al mese
I risultati sono una stima indicativa basata sui dati inseriti e non costituiscono un’offerta finanziaria.
Inserzionista

Coldwell Banker Prime Properties
Viale Virgilio 4, Riccione
Mostra Telefono
Mostra Cellulare
Chiama
CONTATTA

