Villa Via San Firmino, Cafasse
€ 235.000Bifamiliare in vendita
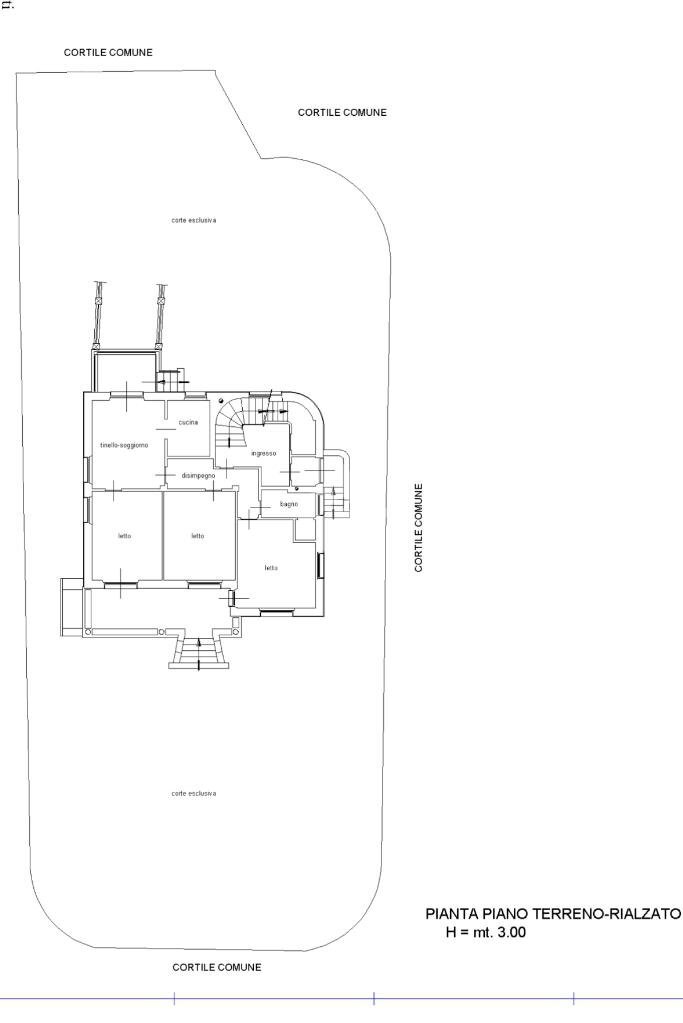
CAFASSE: VILLA BIFAMILIARE CON 400 MQ DI GIARDINO PRIVATO, parzialmente ristrutturata e subito abitabile. La casa è stata costruita dal costruttore per se stesso (per cui seguendo i migliori criteri costruttivi dell’epoca). Questa proprietà offre ampi spazi abitativi, ideali per chi cerca una residenza accogliente e funzionale. Al piano terreno-rialzato di 115 mq, ingresso, soggiorno, cucina, 3 camere, bagno, ampio terrazzo coperto di 16 mq con tende parasole motorizzate, ed altro terrazzo verandato; tramite un ampio vano scala si accede al piano primo di 115 mq, composto da ampio ingresso, un grande salone e cucina a vista in muratura/legno (compresa nel prezzo), 2 camere, bagno, terrazzo di 16 mq con tende parasole motorizzate, altro terrazzo e balcone. Gli infissi sono in legno con doppi vetri ed alcune tapparelle sono elettriche. Sempre tramite scala interna si accede al piano interrato di 115 mq, composto da ampia taverna, locale ad uso cucina, cantina, bagno. Tutta la casa è circondata da giardino e cortile privato. Adiacente abbiamo altro fabbricato alto 4,40 metri, composto al piano terra da autorimessa, locale deposito soppalcato, disimpegno e bagno.
IL PROPRIETARIO VALUTA ANCHE PERMUTA CON APPARTAMENTO DI 60-80 MQ IN ZONA LANZO,BALANGERO,MATHI, VILLANOVA
NELLA SEZIONE PLANIMETRIE DEL NOSTRO SITO È DISPONIBILE LA PLANIMETRIA 3D DELL'IMMOBILE.
La proprietà è circondata da un giardino privato fronte casa e di un cortile sul retro, che offrono uno spazio esterno riservato e tranquillo, perfetto per momenti di relax o per attività all'aperto. La posizione della villa, nel cuore di Cafasse, consente di godere della tranquillità di un contesto residenziale, pur essendo a breve distanza dai principali servizi e collegamenti.
Questa villa rappresenta un'opportunità interessante per chi desidera investire in una casa con carattere e potenziale.
IL PROPRIETARIO VALUTA ANCHE PERMUTA CON APPARTAMENTO DI 60-80 MQ IN ZONA LANZO,BALANGERO,MATHI, VILLANOVA
NELLA SEZIONE PLANIMETRIE DEL NOSTRO SITO È DISPONIBILE LA PLANIMETRIA 3D DELL'IMMOBILE.
La proprietà è circondata da un giardino privato fronte casa e di un cortile sul retro, che offrono uno spazio esterno riservato e tranquillo, perfetto per momenti di relax o per attività all'aperto. La posizione della villa, nel cuore di Cafasse, consente di godere della tranquillità di un contesto residenziale, pur essendo a breve distanza dai principali servizi e collegamenti.
Questa villa rappresenta un'opportunità interessante per chi desidera investire in una casa con carattere e potenziale.
Dati principali
| Riferimento | 61207461 |
| Data annuncio | 18/04/2026 |
| Contratto | Vendita |
| Tipologia | Villa |
| Superficie | 321 m2 |
| Locali | più di 5 (5 camere da letto, 3 altro), 3 bagni |
| Piano | 3 totali |
Costi
| Prezzo | 235.000 € |
| Prezzo al m2 | 732 €/m2 |
Efficienza energetica
| Anno costruzione | 1960 |
| Riscaldamento | Autonomo |
| Tipo Alimentazione Riscaldamento | Metano |
| Classe energetica | D |
| Indice di prestazione energetica (EP GL, REN) | 161.13 kWh/m3 anno |
| Indice di prestazione energetica (EP GL, NREN) | 170.9 kWh/m3 anno |
Planimetrie
Indirizzo e mappa
Via San Firmino, Cafasse
Calcolo mutuo
Prezzo di vendita:
Anticipo
20,00
Mutuo
80,00
Tasso: -+
Rata: 672 al mese
I risultati sono una stima indicativa basata sui dati inseriti e non costituiscono un’offerta finanziaria.
Inserzionista
Chiama
CONTATTA

