Casa indipendente Via quarello, Villanova Canavese
€ 199.000Casa indipendente in vendita
VILLANOVA CANAVESE villa indipendente da ristrutturare con parco di 4000mq, 205mq di spazio abitativo su un unico livello e possibilità di recuperarne altrettanto al piano primo.
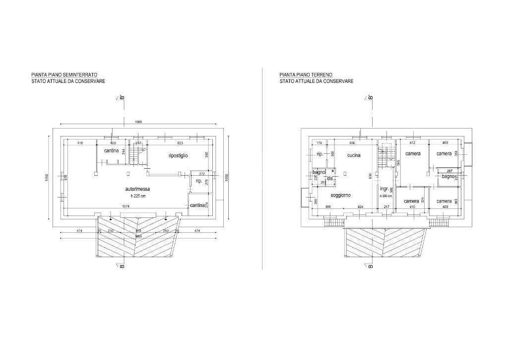
L'immobile si trova in zona tranquilla immersa nel verde nell'area tra Villanova e Robassomero. La proprietà è inserita all'interno di un ampio prato privato di circa 4000mq liberi e dispone di un altro lotto di terreno privato fronte strada di circa 2800mq. L'abitazione è disposta su due piani più interrato. Al piano interrato si trovano un'autorimessa con doppio accesso carraio, tre vani cantina e una tavernetta con angolo bar rivestito in pietra. Al piano rialzato si trova la parte abitativa, disposta correntemente in due appartamenti separati dal vano scala centrale. Il primo alloggio ha ingresso su zona giorno living di salone con cucina abitabile a vista, una camera matrimoniale con cabina armadi e un bagno, l'altro ha ingresso su soggiorno, cucina abitabile, due camere e bagno. Al piano primo si trova un vano unico grezzo potenzialmente recuperabile a uso abitativo di 200mq utili. Lo spazio interno è pienamente personalizzabile data l'assenza di murature portanti, così come la divisione tra i due appartamenti. È possibile realizzare da una a quattro unità abitative completamente indipendenti, volendo recuperando anche il piano primo.
All'interno della proprietà si trova anche un fabbricato uso deposito su due piani con tre locali al piano terra e una tettoia aperta al primo piano.
L'immobile è stato costruito negli anni '60 e necessita di lavori di ristrutturazione, ma le fondamenta e il tetto sono in ottime condizioni. Non è presente fognatura in zona per cui gli scarichi vanno gestiti tramite fossa biologica. Il metano non è correntemente allacciato ma è presente la condotta su strada. Al momento il riscaldamento è gestito con caldaia a GPL. L'orientamento dell'immobile con tetto a falda unica esposto a sud-ovest rendono impianti fotovoltaico e/o solare termico un'ottima scelta.
La proprietà si presta sia per abitazione per più nuclei familiari sia eventualmente come investimento vista la superficie ampia e la possibilità di creare multiple unità abitative in ottica di messa a reddito o di rivendita.
L'immobile si trova in zona tranquilla immersa nel verde nell'area tra Villanova e Robassomero. La proprietà è inserita all'interno di un ampio prato privato di circa 4000mq liberi e dispone di un altro lotto di terreno privato fronte strada di circa 2800mq. L'abitazione è disposta su due piani più interrato. Al piano interrato si trovano un'autorimessa con doppio accesso carraio, tre vani cantina e una tavernetta con angolo bar rivestito in pietra. Al piano rialzato si trova la parte abitativa, disposta correntemente in due appartamenti separati dal vano scala centrale. Il primo alloggio ha ingresso su zona giorno living di salone con cucina abitabile a vista, una camera matrimoniale con cabina armadi e un bagno, l'altro ha ingresso su soggiorno, cucina abitabile, due camere e bagno. Al piano primo si trova un vano unico grezzo potenzialmente recuperabile a uso abitativo di 200mq utili. Lo spazio interno è pienamente personalizzabile data l'assenza di murature portanti, così come la divisione tra i due appartamenti. È possibile realizzare da una a quattro unità abitative completamente indipendenti, volendo recuperando anche il piano primo.
All'interno della proprietà si trova anche un fabbricato uso deposito su due piani con tre locali al piano terra e una tettoia aperta al primo piano.
L'immobile è stato costruito negli anni '60 e necessita di lavori di ristrutturazione, ma le fondamenta e il tetto sono in ottime condizioni. Non è presente fognatura in zona per cui gli scarichi vanno gestiti tramite fossa biologica. Il metano non è correntemente allacciato ma è presente la condotta su strada. Al momento il riscaldamento è gestito con caldaia a GPL. L'orientamento dell'immobile con tetto a falda unica esposto a sud-ovest rendono impianti fotovoltaico e/o solare termico un'ottima scelta.
La proprietà si presta sia per abitazione per più nuclei familiari sia eventualmente come investimento vista la superficie ampia e la possibilità di creare multiple unità abitative in ottica di messa a reddito o di rivendita.
Dati principali
| Riferimento | 61207000 |
| Data annuncio | 18/04/2026 |
| Contratto | Vendita |
| Tipologia | Casa indipendente |
| Superficie | 460 m2 |
| Locali | più di 5 (7 altro), 2 bagni |
Costi
| Prezzo | 199.000 € |
| Prezzo al m2 | 433 €/m2 |
Efficienza energetica
| Anno costruzione | 1960 |
| Riscaldamento | Autonomo |
| Tipo Alimentazione Riscaldamento | Gpl |
| Classe energetica | Immobile esente da certificazione energetica |
Planimetrie
Indirizzo e mappa
Via quarello, Villanova Canavese
Calcolo mutuo
Prezzo di vendita:
Anticipo
20,00
Mutuo
80,00
Tasso: -+
Rata: 569 al mese
I risultati sono una stima indicativa basata sui dati inseriti e non costituiscono un’offerta finanziaria.
Inserzionista
Chiama
CONTATTA

