Mansarda Via sestriere, Collegno
€ 119.000Mansarda in vendita
Ubicato in palazzina degli anni '60 completamente rivista nelle parti comuni nel 2022 tramite rifacimento del tetto e cappotto termico.
Riscaldamento autonomo con caldaia sostituita recentemente e zero spese condominiali.
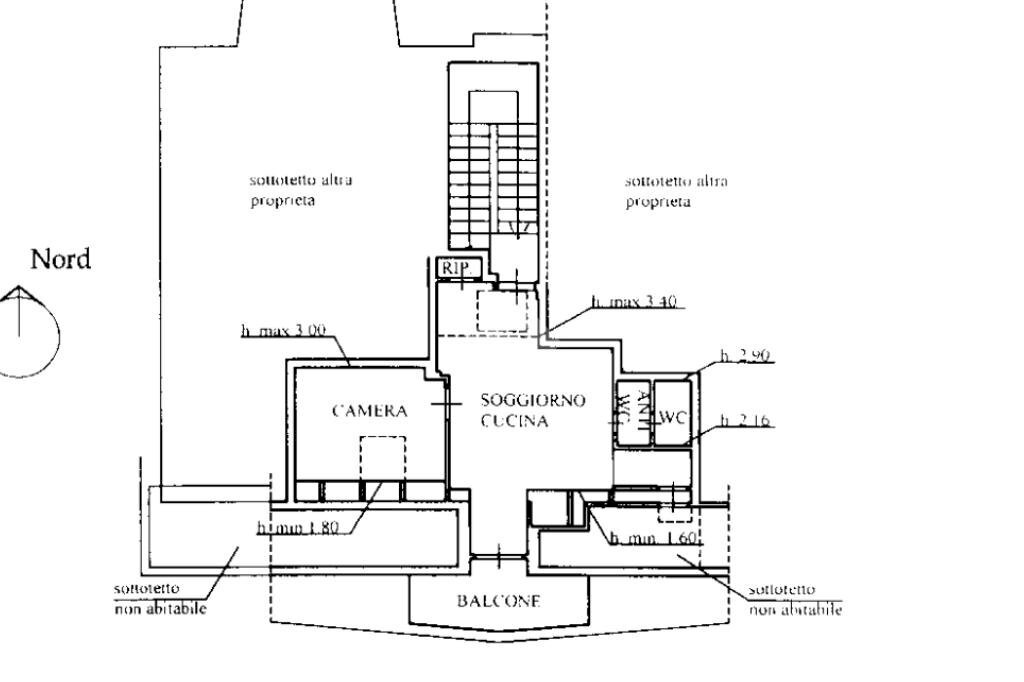
L'immobile è composto da ingresso living sulla zona giorno con cucina a vista, una camera da letto matrimoniale e un'altro spazio versatile oltre a un bagno con doccia. Uno dei punti di forza è il terrazzo, ideale per momenti di relax all'aperto. Infine presente nella zona giorno il condizionatore inverter caldo / freddo.
Riscaldamento autonomo con caldaia sostituita recentemente e zero spese condominiali.
L'immobile è composto da ingresso living sulla zona giorno con cucina a vista, una camera da letto matrimoniale e un'altro spazio versatile oltre a un bagno con doccia. Uno dei punti di forza è il terrazzo, ideale per momenti di relax all'aperto. Infine presente nella zona giorno il condizionatore inverter caldo / freddo.
Dati principali
| Riferimento | 61201521 |
| Data annuncio | 18/04/2026 |
| Contratto | Vendita |
| Tipologia | Mansarda |
| Superficie | 50 m2 |
| Locali | 2 (2 altro), 1 bagno |
| Piano | 2 di 2 totali |
| Numero posti auto | 1 |
Costi
| Prezzo | 119.000 € |
| Prezzo al m2 | 2.380 €/m2 |
Efficienza energetica
| Anno costruzione | 1970 |
| Riscaldamento | Autonomo |
| Tipo Alimentazione Riscaldamento | Metano |
| Classe energetica | C |
| Indice di prestazione energetica (IPE) | - |
Planimetrie
Video
Indirizzo e mappa
Via sestriere, Collegno
Calcolo mutuo
Prezzo di vendita:
Anticipo
20,00
Mutuo
80,00
Tasso: -+
Rata: 340 al mese
I risultati sono una stima indicativa basata sui dati inseriti e non costituiscono un’offerta finanziaria.
Inserzionista
Chiama
CONTATTA

