Ufficio via Edmondo Buccarelli, 4, Catanzaro
€ 157.000APPARTAMENTO SIGNORILE CON CORTE ESTERNA ESCLUSIVA
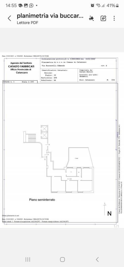
Via Buccarelli, quartiere San Leonardo, Catanzaro Centro. Una delle vie più signorili della città di Catanzaro, in prossimità di tutti i principali servizi ( Banca, scuole, attività commerciali di vario genere, ecc...) Proponiamo la vendita di un appartamento in ottime condizioni generali con patio esterno di pertinenza esclusiva, posto al piano s1 ( ma con affacci aperti) di uno stabile signorile servito da ascensore. L'immobile è così composto: Ampio ingresso su soggiorno, cucina abitabile, tre camere, servizio, spazio esterno di pertinenza esclusiva. Punti di forza dell'immobile: - corte esterna eclusiva - posizione strategica - ottime condizioni L'immobile è situato a pochi metri dalle stazioni di CATANZARO CITTÀ (240 m) e CATANZARO PIAZZA MATTEOTTI (440 m). Gli asili per bambini nelle vicinanze dell'immobile sono CATANZARO -RODARI- IC (130 m), CATANZARO ALDISIO IC e altri 4 asili entro il raggio di 380 m. Inoltre, i servizi scolastici comprendono gli istituti: SMS CATANZARO G. PASCOLI IC (120 m), CATANZARO ALDISIO IC e altre 8 scuole nel raggio di 420 m. Stai pensando di vendere o affittare il tuo locale commerciale? Con RockAgent puoi vendere o affittare il tuo immobile assicurandoti un servizio eccellente, garantito da agenti immobiliari selezionati supportati da un team tecnico, marketing e legale di altissimo livello. Visita il sito RockAgent.it e ottieni una valutazione gratuita del tuo immobile.
Dati principali
| Riferimento | 119422 - 16/04/2026 |
| Data annuncio | 16/04/2026 |
| Contratto | Vendita |
| Tipologia | Ufficio |
| Superficie | 145 m2 |
| Piano | 6 totali |
| Tipo di costruzione | Signorile |
| Uso immobile | Commerciale |
Caratteristiche
Costi
| Prezzo | 157.000 € |
| Prezzo al m2 | 1.083 €/m2 |
| Spese condominiali | € 20,00/mese |
Efficienza energetica
| Anno costruzione | 1975 |
| Riscaldamento | Autonomo |
| Classe energetica | G |
| Indice di prestazione energetica (IPE) | 175 kWh/m2 anno |
Planimetrie
Indirizzo e mappa
via Edmondo Buccarelli, 4, Catanzaro
Calcolo mutuo
Prezzo di vendita:
Anticipo
20,00
Mutuo
80,00
Tasso: -+
Rata: 449 al mese
I risultati sono una stima indicativa basata sui dati inseriti e non costituiscono un’offerta finanziaria.
Inserzionista

RockAgent
Via di Santa Costanza 21, Roma
Mostra Telefono
Chiama
CONTATTA

