Ufficio piazzetta Spirito Santo, Pistoia
€ 3.400 al mesePALAZZO STORICO PISTOIA CENTRO
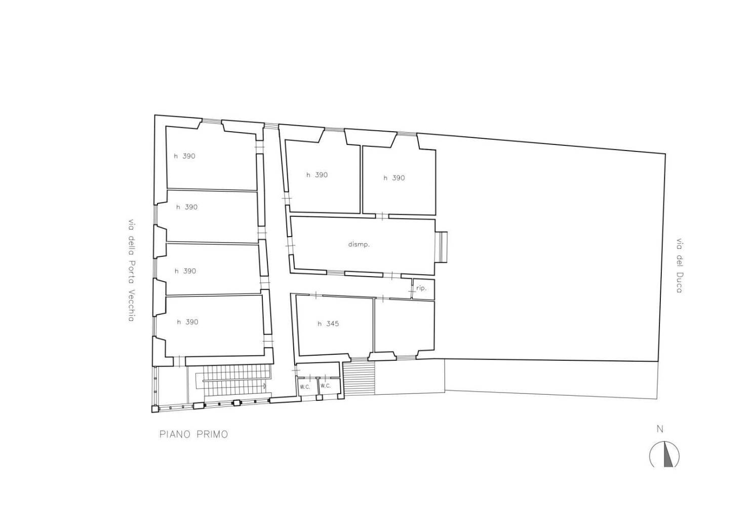
Pistoia Centro (Piazzetta Spirito Santo), in edificio storico del 1600, situato di fronte alla chiesa dei Gesuiti che da il nome all'omonima piazza, proponiamo un grande ufficio di rappresentanza situato al primo piano, composto da 8 grandi ambienti ambienti e doppi servizi, con logica distribuzione interna. La disposizione interna può essere strutturata anche in maniera diversa da quella attuale, in quanto buona parte dei muri sono tramezzature. La pavimentazione del piano terreno è è in parquet di rovere. La struttura può anche essere abbinata al piano sottostante, in quanto c'è il collegamento tramite una comoda e spaziosa scala interna. Tutti gli uffici sono dotati di impianto di climatizzazione che produce sia aria calda, sia aria fredda. L'edificio si presenta in ottimo stato, ed è composto da due fabbricati di epoche diverse (1500/1600) e si trova nel centro storico della città, cuore pulsante di Pistoia. Ideale per uffici di banche, aziende commerciali e per ogni attività imprenditoriale che intenda dare un'impronta di alta rappresentanza alla propria azienda Punti di forza dell'immobile: - posizione strategica - ottimo stato - di pregio storico Le linee autobus più vicine sono CURTATONE E M. 2 (100 m), CURTATONE E M. 54 e altre 20 fermate nel raggio di 490 m. Gli asili per bambini nelle vicinanze dell'immobile sono SCUOLA DELL'INFANZIA PARITARIA SUORE MANTELLATE (420 m) e SCUOLA DELL'INFANZIA PARITARIA REGINA MARGHERITA (440 m). Inoltre, i servizi scolastici comprendono gli istituti: CIVININI-ARRIGHI (200 m), LICEO STATALE N.FORTEGUERRI e altre 8 scuole nel raggio di 470 m. Stai pensando di vendere o affittare il tuo locale commerciale? Con RockAgent puoi vendere o affittare il tuo immobile assicurandoti un servizio eccellente, garantito da agenti immobiliari selezionati supportati da un team tecnico, marketing e legale di altissimo livello. Visita il sito RockAgent.it e ottieni una valutazione gratuita del tuo immobile.
Dati principali
| Riferimento | 167038 - 16/04/2026 |
| Data annuncio | 16/04/2026 |
| Contratto | Affitto |
| Tipologia | Ufficio |
| Superficie | 350 m2 |
| Tipo di costruzione | Lusso |
| Uso immobile | Commerciale |
Caratteristiche
Costi
| Prezzo | 3.400 € al mese |
Efficienza energetica
| Anno costruzione | 1600 |
| Riscaldamento | Autonomo |
| Classe energetica | F |
| Indice di prestazione energetica (IPE) | 175 kWh/m2 anno |
Planimetrie
Indirizzo e mappa
piazzetta Spirito Santo, Pistoia
Inserzionista

RockAgent
Via di Santa Costanza 21, Roma
Mostra Telefono
Chiama
CONTATTA

