Villa via Canalazzo, San Giovanni in Persiceto
€ 399.000SOLUZIONE INDIPENDE LIBERA SU 4 LATI CON 2 INGRESSI INDIPEND
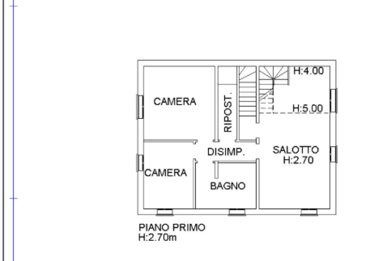
183mq + 1000 mq di GIARDINO A San Matteo della Decima, nel comune di San Giovanni in Persiceto, BOLOGNA, proponiamo una soluzione abitativa unica, libera su quattro lati e immersa nel verde. L'immobile è stato COMPLETAMENTE e FEDELMENETE RISTRUTTURATO compreso tetto, fondamenta e scarichi con CAPITOLATO alto e di PREGIO per la zona. L’immobile è già diviso in due unità indipendenti con ingressi separati, grazie anche agli impianti già predisposti, avendo due caldaie distinte una al piano terreno e l'altra ai piani superiori tra cui la MANSARDA ABITABILE. Inoltre offre la possibilità di essere vissuto come un’unica grande abitazione (tenendo come riferimento un unico civicocatasto) o come anticipato precedentemente in due unità indipendenti (mantenendo un unico civico), ideali per famiglie numerose o per chi desidera combinare abitazione principale eo soluzione per parenti eo ospiti. INFERRIATE a tutte le finestre DOPPIOVETRO alluminio e con ZANZARIERE. ALLARME PERIMETRICO e VOLUMETRICO. Distribuzione interna PIANO TERRA: Cucina abitabile: spaziosa e funzionale. 1° Camera matrimoniale: di ampia metratura classico di questo periodo di costruzione 2° Camerasoggiorno: ampio e con doppia finestratura per aumentare la luminosità della soluzione Ripostiglio: ottimo con ampia possibilità di trasformazione Bagno: rifinito con cura. Inferiate su tutte le finestre in alluminio doppio vetro PIANO SUPERIORE: Sala con doppio volume: un ambiente ampio, arioso e luminoso grazie alle 3 finestre ideale per momenti di relax e convivialità. Cucina SU MISURA con penisola: moderna, elegante e perfetta per gli amanti del design e della praticità. Due camere: spaziose e luminose. Bagno: curato nei dettagli e soprattutto con IDROMASSAGGIO ad angolo Ripostiglio: con ampie possibilità di trasformazione MANSARDA ABITABILE: Eventuale bilocale con zona giorno, camera e servizio finestrato con Velux, perfetto per ospiti o come spazio indipendente ulteriore. ESTERNI: L’immobile è circondato da un ampio giardino privato di oltre 1000 mq, personalizzabile per ogni esigenza: Possibilità di Piscina per le giornate estive. Campo da Paddle o Tennis per gli sportivi. Orto. (Preventivi disponibili in ufficio) Questa proprietà rappresenta un’opportunità unica per vivere immersi nella natura, senza rinunciare alla vicinanza ai principali servizi e senza sentirsi isolati. Non perdere questa occasione! Contattaci OGGI STESSO per maggiori dettagli e per prenotare una visita. Il tuo sogno di una casa indipendente nel verde ti aspetta! Punti di forza dell'immobile: - libero su 4 lati - divisibile in 23 soluzioni con già la predisposizione - ristrutturato ad inizio anni 2000 La linea di autobus più vicina è SAN CRISTOFORO (420 m). Stai pensando di vendere o affittare casa? Con RockAgent puoi vendere o affittare il tuo immobile assicurandoti un servizio eccellente, garantito da agenti immobiliari selezionati supportati da un team tecnico, marketing e legale di altissimo livello. Visita il sito RockAgent.it e ottieni una valutazione gratuita del tuo immobile.
Dati principali
| Riferimento | 145448 - 16/04/2026 |
| Data annuncio | 11/03/2026 |
| Contratto | Vendita |
| Tipologia | Villa |
| Superficie | 183 m2 |
| Locali | più di 5 (5 camere da letto, 4 altro), 3 bagni, cucina abitabile |
| Piano | 3 totali |
| Tipo di costruzione | Media |
| Box auto | Doppio |
| Numero posti auto | 7 |
| Arredamento | Completo |
Caratteristiche
Costi
| Prezzo | 399.000 € |
| Prezzo al m2 | 2.180 €/m2 |
Efficienza energetica
| Anno costruzione | 2000 |
| Stato | Ottimo |
| Riscaldamento | Autonomo |
| Classe energetica | F |
| Indice di prestazione energetica (IPE) | 185.09 kWh/m2 anno |
Planimetrie
Indirizzo e mappa
via Canalazzo, San Giovanni in Persiceto
Calcolo mutuo
Prezzo di vendita:
Anticipo
20,00
Mutuo
80,00
Tasso: -+
Rata: 1.141 al mese
I risultati sono una stima indicativa basata sui dati inseriti e non costituiscono un’offerta finanziaria.
Inserzionista

RockAgent
Via di Santa Costanza 21, Roma
Mostra Telefono
Chiama
CONTATTA

