Altro traversa Ammiraglio Ruggiero, Lauria
€ 876.000LAURIA - COMPLESSO POLIFUNZIONALE DI AMPIA METRATURA
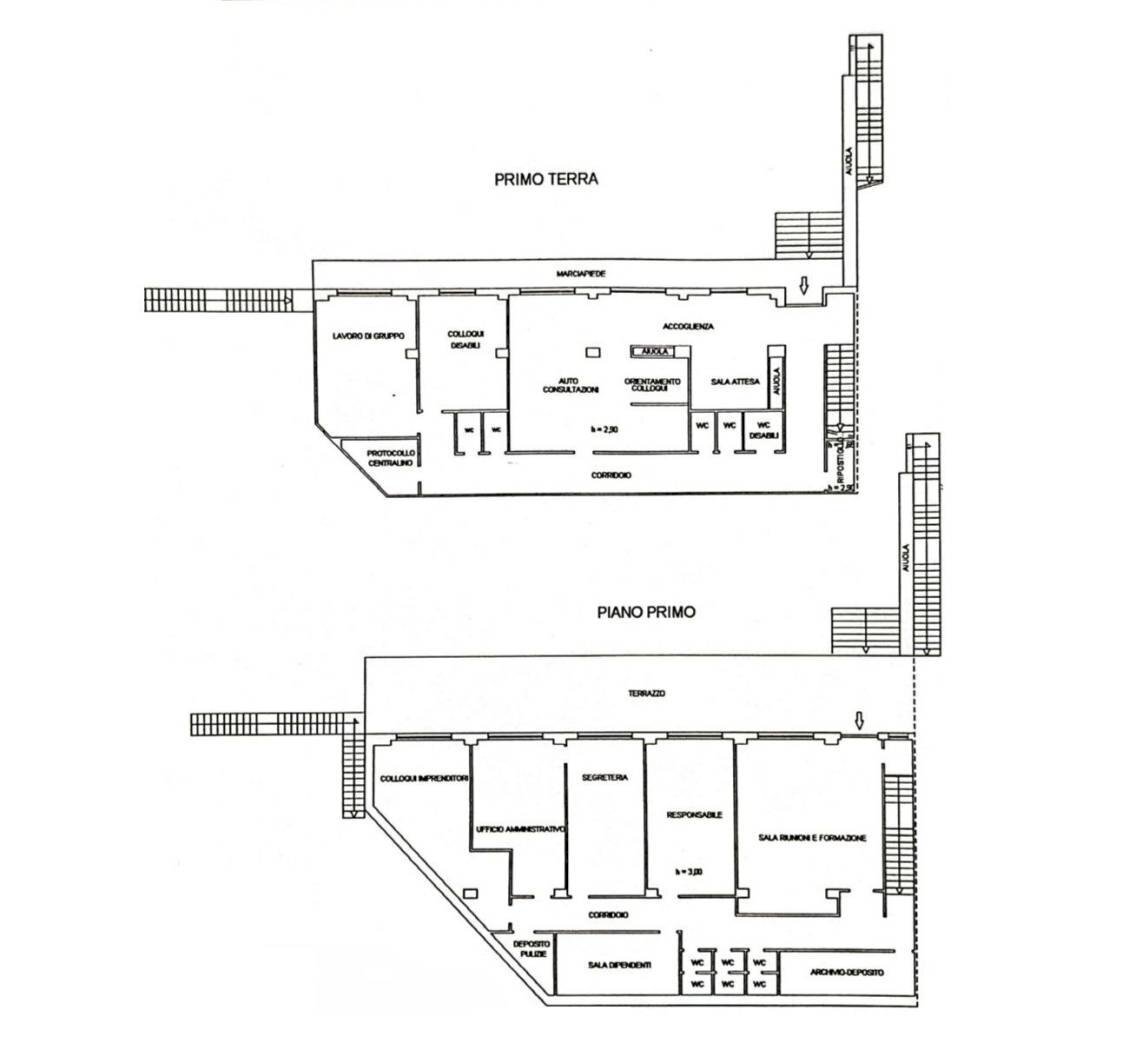
A Lauria, in posizione strategica e logistica, si propone la vendita di un asset immobiliare di circa 1.320 mq complessivi, inserito in un edificio di quattro piani. La proprietà si distingue per una configurazione architettonica singolare che, sfruttando il dislivello del terreno, garantisce accessi indipendenti da via Ammiraglio Ruggiero, dalla sua traversa e da contrada Parco Carroso. Tale permeabilità assicura una gestione autonoma delle diverse unità e dei relativi flussi. L'immobile è suddiviso in quattro porzioni funzionali: due unità A/10 di circa 576 mq e 194 mq (quest’ultima con contratto di locazione in fase di stipula che garantisce rendita immediata), una superficie di circa 494 mq in categoria B/4, già sede del Centro per l’impiego, e un'unità residenziale A/3 di circa 48 mq. La costruzione, risalente agli anni novanta, presenta una struttura solida con interni in ottime condizioni manutentive, pronti all'uso, mentre il prospetto esterno richiede interventi di ripristino delle finiture. Gli ambienti sono ampi, estremamente luminosi e silenziosi. La dotazione tecnica include infissi in metallo con vetrocamera, riscaldamento a radiatori e piena conformità alle norme sull'abbattimento delle barriere architettoniche. La zona è facilmente raggiungibile e servita da un ampio parcheggio pubblico limitrofo. Il prezzo di vendita è di 876.000 euro. L’operazione rappresenta un investimento di alto profilo grazie al costo al metro quadrato competitivo e alla versatilità delle categorie catastali, che permettono molteplici strategie di messa a reddito nei settori direzionale, pubblico o formativo. La riqualificazione della facciata offre inoltre l'opportunità di incrementare il valore patrimoniale del cespite tramite un ammodernamento estetico ed energetico, rendendolo rispondente ai moderni standard di rappresentanza. Punti di forza dell'immobile: - Ottima posizione - Ampio e luminoso - Versatile La linea di autobus più vicina è FERMATA BUS (20 m). L'asilo per bambini più vicino è VIA CADUTI 7/9/1943 (270 m). Inoltre, i servizi scolastici comprendono gli istituti: I.P. ART. RUGGERO DI LAURIA (100 m), I.P. SERV. RUGGERO LAURIA e altre 3 scuole nel raggio di 210 m. Stai pensando di vendere o affittare il tuo locale commerciale? Con RockAgent puoi vendere o affittare il tuo immobile assicurandoti un servizio eccellente, garantito da agenti immobiliari selezionati supportati da un team tecnico, marketing e legale di altissimo livello. Visita il sito RockAgent.it e ottieni una valutazione gratuita del tuo immobile.
Dati principali
| Riferimento | 168974 - 16/04/2026 |
| Data annuncio | 25/02/2026 |
| Contratto | Vendita |
| Tipologia | Altro |
| Superficie | 1320 m2 |
| Piano | 4 totali |
| Tipo di costruzione | Media |
| Uso immobile | Commerciale ed Industriale |
Costi
| Prezzo | 876.000 € |
| Prezzo al m2 | 664 €/m2 |
Efficienza energetica
| Anno costruzione | 1990 |
| Riscaldamento | Autonomo |
| Classe energetica | Immobile esente da certificazione energetica |
Planimetrie
Indirizzo e mappa
traversa Ammiraglio Ruggiero, Lauria
Calcolo mutuo
Prezzo di vendita:
Anticipo
20,00
Mutuo
80,00
Tasso: -+
Rata: 2.505 al mese
I risultati sono una stima indicativa basata sui dati inseriti e non costituiscono un’offerta finanziaria.
Inserzionista

RockAgent
Via di Santa Costanza 21, Roma
Mostra Telefono
Chiama
CONTATTA

