Negozio piazzetta Spirito Santo, Pistoia
€ 3.500 al mesePALAZZO STORICO PISTOIA CENTRO
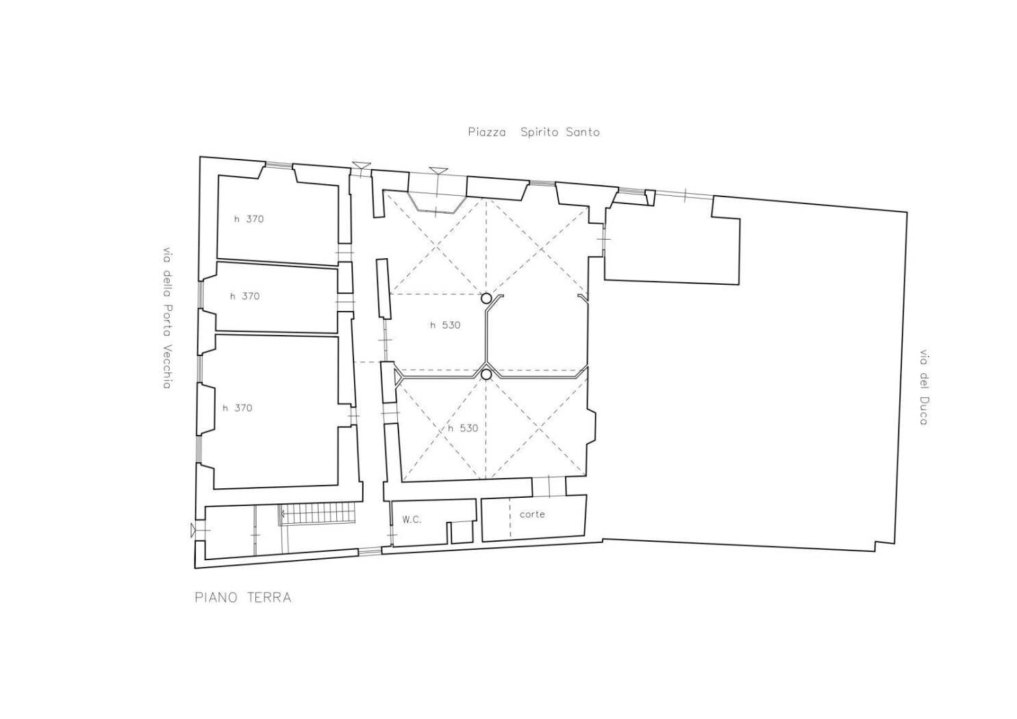
Pistoia Centro (Piazzetta Spirito Santo), in edificio storico del 1500, situato di fronte alla chiesa dei Gesuiti che da il nome all'omonima piazza, proponiamo un grande negozio/ufficio di rappresentanza situato al piano terreno e con vari ingressi sulla stessa piazza, composto da 8 ambienti ed 1 servizio, con logica distribuzione interna. La disposizione interna può essere strutturata anche in maniera diversa da quella attuale, in quanto buona parte dei muri sono tramezzature. La pavimentazione del piano è in cotto antichizzato, . La struttura può anche essere abbinata al piano superiore in quanto è presente una comoda scala di collegamento. L'edificio si presenta in ottimo stato, ed è composto da due fabbricati di epoche diverse (1500/1600) e si trova nel centro storico della città, cuore pulsante di Pistoia. I soffitti dal piano terreno sono con volte a botte ed in buona parte alti oltre cinque metri. Ideale per uffici di banche, aziende commerciali e per ogni attività imprenditoriale che intenda dare un'impronta di alta rappresentanza alla propria azienda Punti di forza dell'immobile: - posizione strategica - ottimo stato - di pregio storico Le linee autobus più vicine sono CURTATONE E M. 2 (100 m), CURTATONE E M. 54 e altre 20 fermate nel raggio di 490 m. Gli asili per bambini nelle vicinanze dell'immobile sono SCUOLA DELL'INFANZIA PARITARIA SUORE MANTELLATE (420 m) e SCUOLA DELL'INFANZIA PARITARIA REGINA MARGHERITA (440 m). Inoltre, i servizi scolastici comprendono gli istituti: CIVININI-ARRIGHI (200 m), LICEO STATALE N.FORTEGUERRI e altre 8 scuole nel raggio di 470 m. Stai pensando di vendere o affittare il tuo locale commerciale? Con RockAgent puoi vendere o affittare il tuo immobile assicurandoti un servizio eccellente, garantito da agenti immobiliari selezionati supportati da un team tecnico, marketing e legale di altissimo livello. Visita il sito RockAgent.it e ottieni una valutazione gratuita del tuo immobile.
Dati principali
| Riferimento | 167036 - 16/04/2026 |
| Data annuncio | 25/02/2026 |
| Contratto | Affitto |
| Tipologia | Negozio |
| Superficie | 360 m2 |
| Uso immobile | Commerciale |
Caratteristiche
Costi
| Prezzo | 3.500 € al mese |
Efficienza energetica
| Riscaldamento | Autonomo |
| Classe energetica | F |
| Indice di prestazione energetica (IPE) | 175 kWh/m2 anno |
Planimetrie
Indirizzo e mappa
piazzetta Spirito Santo, Pistoia
Inserzionista

RockAgent
Via di Santa Costanza 21, Roma
Mostra Telefono
Chiama
CONTATTA

