Bilocale strada Rubattera, 25, Castiglione Torinese
€ 470 al meseAssegnazione di appartamento tramite cooperativa
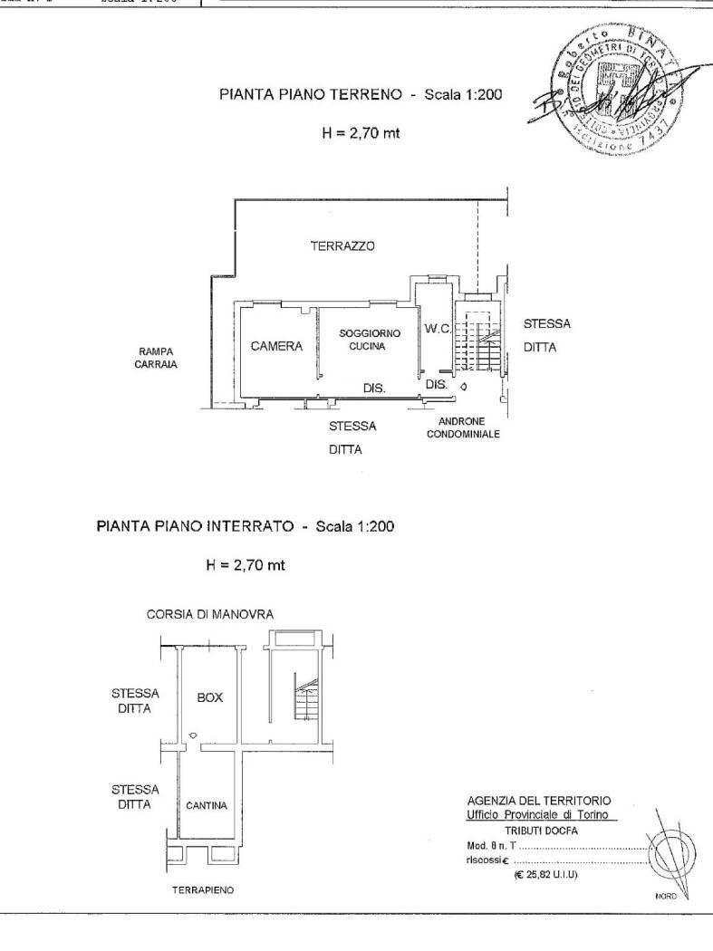
Proponiamo appartamento con formula di assegnazione soci in cooperativa (non affitto tradizionale) in Strada Rubattera (versante collinare e contesto silenzioso a 1,3 km dal centro paese) in palazzina plurifamiliare del 2000. L'immobile (vuoto) di mq 50 posto al piano terra con terrazzo privato è composto da: ingresso mliving su ampio soggiorno con angolo cottura, camera da letto, bagno, ripostiglio esterno e cantina. Box auto al piano seminterrato. Nessuna barriera architettonica. Superficie del terrazzo e del balcone mq 60. Riscaldamento autonomo, spese condominiali mensili Euro 80,00. Possibilità di acquistare l'arredo della camera da letto dal socio uscente. Rispetto al tradizionale affitto, questa soluzione permette di acquisire il diritto alla proprietà futura o all'uso perpetuo dell'immobile garantito dalla Regione Piemonte. Una soluzione sicura per garantirsi una casa definitiva. L'adesione prevede un versamento iniziale al fondo mutualità di € 15.500, 00 e una quota associativa di € 358,22 (una tantum). Il costo mensile (canone di godimento) è di soli € 470,00, un importo molto competitivo rispetto ai prezzi di mercato. Il fondo mutualità verrà restituito nel caso in cui il socio decida di lasciare l'appartamento, o verrà considerato come anticipo per un futuro acquisto. L'appartamento è disponibile da subito. Nei pressi della palazzina è presente un'area verde comunale con parco giochi bimbi. [email protected] - www.immobiliarescursatone.it I dati e le indicazioni esposti nell'annuncio e le foto inserite hanno carattere puramente informativo e non costituiscono elementi contrattuali.
Dati principali
| Riferimento | A15/26 |
| Data annuncio | 16/04/2026 |
| Contratto | Affitto |
| Tipologia | Appartamento |
| Superficie | 68 m2 |
| Locali | 2 (1 camera da letto, 1 altro), 1 bagno, cucina angolo cottura |
| Piano | 1 totali |
| Tipo di costruzione | Media |
| Numero di terrazzi | 1 |
| Numero di balconi | 1 |
| Box auto | Singolo |
| Arredamento | Assente |
Caratteristiche
Costi
| Prezzo | 470 € al mese |
| Spese condominiali | € 80,00/mese |
Efficienza energetica
| Anno costruzione | 2000 |
| Stato | Buono |
| Riscaldamento | Autonomo |
| Classe energetica | E |
| Indice di prestazione energetica (IPE) | 210 kWh/m2 anno |
Planimetrie
Indirizzo e mappa
strada Rubattera, 25, Castiglione Torinese
Inserzionista

Maria Luisa Scursatone Servizi Immobiliari
via Piave 15, Torino
Mostra Telefono
Chiama
CONTATTA

