Ufficio via Enrico Cosenz, 18, Milano (zona Bovisa)
€ 2.400 al meseUfficio Open Space di 250 mq Via Cosenz 18, Milano
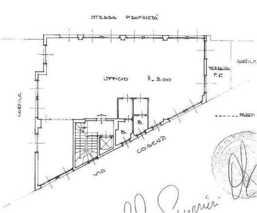
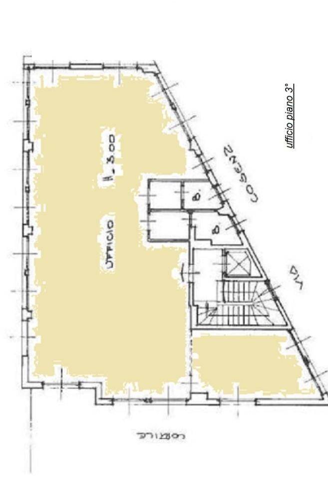
Ufficio Open Space di 250 mq Via Cosenz 18, Milano Ufficio subito disponibile – Una soluzione flessibile e strategica per far crescere la tua attività! Nel cuore pulsante della Bovisa, a due passi dal Politecnico di Milano e perfettamente collegato con i principali snodi cittadini, proponiamo in locazione un'opportunità rara e versatile: - Ampio ufficio open-space al 3° piano di 250 mq, luminosissimo, con doppi servizi. Spazio ideale per attività direzionali, studi professionali, showroom e start-up. Ambiente modulare e facilmente personalizzabile in base alle esigenze della tua impresa. Perfetto per aziende, studi professionali, showroom e realtà innovative. Condizioni di locazione Ufficio: Eu. 28.800.000,00/anno + IVA
Dati principali
| Riferimento | ID3026882 |
| Data annuncio | 16/04/2026 |
| Contratto | Affitto |
| Tipologia | Ufficio |
| Superficie | 250 m2 |
| Piano | 1 totali |
| Tipo di costruzione | Media |
| Uso immobile | Commerciale |
Costi
| Prezzo | 2.400 € al mese |
Efficienza energetica
| Riscaldamento | Autonomo |
| Classe energetica | G |
| Indice di prestazione energetica (IPE) | 131.52 kWh/m2 anno |
Planimetrie
Indirizzo e mappa
via Enrico Cosenz, 18, Milano - quartiere Bovisa
Inserzionista

Medint B.& S. Srl
via olona, Milano
Mostra Telefono
Chiama
CONTATTA

