Loft via San Benedetto, Bergamo
€ 225.000
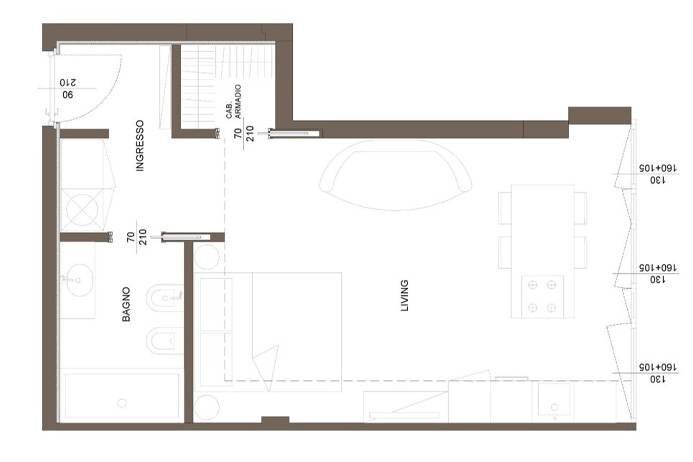
- BERGAMO CENTRALE Elegante e moderno loft di mq 44 in fase attuale di totale ristrutturazione energetica per la classe A1 dotato di vetrata panoramica e autorimessa disponibile. Immobile situato al piano primo di contesto signorile dotato di ascensore, situato in posizione centralissima a pochi passi da via Papa Giovanni XXIII, da via XX Settembre e dal Sentierone, tutti i servizi ed i negozi sono disponibili a pochi metri dall'immobile, comodo per raggiungere la superstrada e l'autostrada nonchè per raggiungere la stazione ferroviaria a piedi. Internamente l'appartamento sarà composto da ampio ingresso con zona lavanderia, cabina armadio, bagno e un unico ampio ambiente open space con cucina ad isola e grande e luminosissima vetrata panoramica. L'appartamento è in corso la totale ristrutturazione con adeguamento energetico in consegna per primavera 2026, le rifiniture e gli impianti saranno di prima qualità e attualmente personalizzabili, infissi termici performanti, tapparelle motorizzate, predisposizione aria condizionata, pavimentazioni in moderno gres o parquet, predisposizione impianto domotico, predisposizione allarme, tinteggiatura e porta blindata, nuovi impianti idrici ed elettrici con conformità, inoltre l'immobile verrà completamente coibentato tramite cappotto interno, dotato di scambiatori d'aria e possibile installazione di pompa di calore per climatizzazione per la classe energetica A. 225.000,00 Disponibile autorimessa doppia all'interno dello stabile per 89.000,00 E' disponibile la cessione del credito fiscale derivante dalla ristrutturazione. L'immobile si presta perfettamente sia come abitazione personale che come investimento per una messa a reddito sicura in una posizione di alta qualità e di primaria richiesta locativa. CLASSE ENERGETICA: A1 Vai all'annuncio: https://www.studio-valle.com/it/bergamo-centrale-118/ STUDIO IMMOBILIARE VALLE Flaminia S.r.l. Real estate and investments 24121 Bergamo - Italy V.le Vitt. Emanuele II n. 65 tel +39 035 231588 WhatsApp: +39 3920190070 www.studio-valle.com [email protected] Facebook: StudioImmobiliareValle Instagram: studio.immobiliare.valle Tiktok: @studiovalle X: ValleRealEstate Skype: Valle-Real-Estate
Dati principali
| Riferimento | bgsanben6.loft44 |
| Data annuncio | 18/04/2026 |
| Contratto | Vendita |
| Tipologia | Loft |
| Superficie | 44 m2 |
| Locali | 1 (1 altro), 1 bagno, cucina angolo cottura |
| Piano | 1 di 5 totali |
| Tipo di costruzione | Signorile |
| Box auto | Singolo |
| Arredamento | Assente |
Caratteristiche
Costi
| Prezzo | 225.000 € |
| Prezzo al m2 | 5.114 €/m2 |
Efficienza energetica
| Riscaldamento | Semi-autonomo |
| Classe energetica | A1 |
Planimetrie
Indirizzo e mappa
via San Benedetto, Bergamo
Annuncio senza mappa,
prova a chiedere la posizione all'inserzionista
prova a chiedere la posizione all'inserzionista
Calcolo mutuo
Prezzo di vendita:
Anticipo
20,00
Mutuo
80,00
Tasso: -+
Rata: 643 al mese
I risultati sono una stima indicativa basata sui dati inseriti e non costituiscono un’offerta finanziaria.
Inserzionista

Studio Immobiliare Valle
Viale Vittorio Emanuele II 65, Bergamo
Mostra Telefono
Chiama
CONTATTA

