Baita Contrada Deserto Snc, Ostuni
€ 300.000
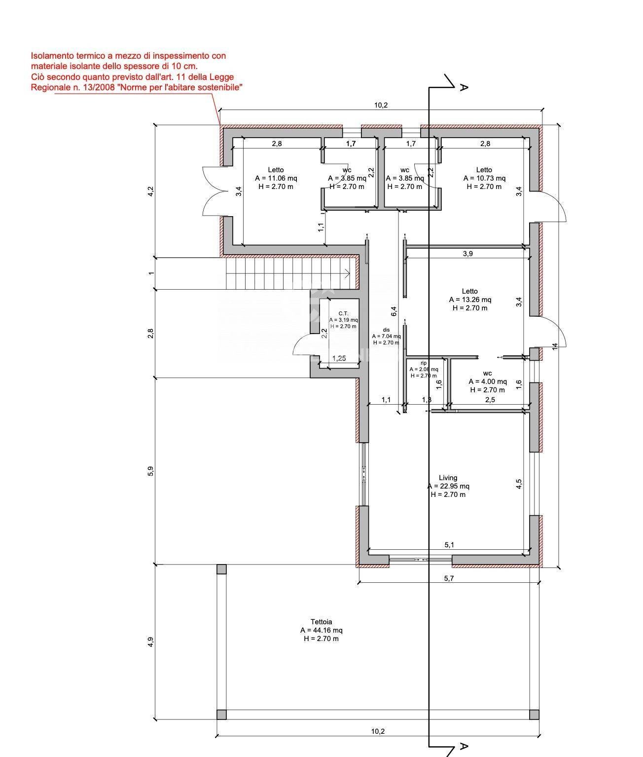
PUGLIA - OSTUNI (BR) - CONTRADA DESERTO Trullo e Villa allo stato grezzo con ampio terreno Unopportunità di valorizzazione unica Immersa nella quiete della campagna e circondata da un terreno di circa 15.000 mq, proponiamo in vendita una proprietà attualmente in corso di costruzione, che rappresenta una rara opportunità per chi desidera dar vita a una residenza su misura, nel pieno rispetto del contesto naturale e paesaggistico. Limmobile, da completare secondo le proprie esigenze e il proprio gusto, si compone di una villa che sviluppa una superficie di 100mq circa, a cui si aggiungono 550mq di piazzale, 60mq di piscina e ulteriori 15mq circa di porticato e di un antico trullo saraceno con lamia, completamente da ristrutturare. Per questo fabbricato è già stata realizzata una fattibilità progettuale finalizzata al recupero e al restauro conservativo edilizio, offrendo così unimportante opportunità di valorizzazione nel rispetto delle caratteristiche originarie. Questo elemento di pregio consente di arricchire ulteriormente la proprietà, con la possibilità di creare una dependance con piscina ad uso esclusivo, dando anche a questo spazio abitativo un forte carattere identitario tipico della Valle d'Itria. L'intera proprietà offre ampie potenzialità di personalizzazione, permettendo di interpretare gli spazi in chiave contemporanea, e la generosa estensione del terreno garantisce privacy assoluta, scenari suggestivi e la possibilità di creare giardini, aree relax o spazi dedicati al tempo libero, trasformando la proprietà in un autentico rifugio di charme. Questa soluzione si presta perfettamente sia come residenza privata, ideale per chi cerca tranquillità e contatto con la natura, sia come investimento da mettere a reddito, grazie alla crescente richiesta di dimore di pregio immerse nel verde. Ad ulteriore vantaggio, vi è la possibilità di richiedere un preventivo personalizzato per il completamento della costruzione, consentendo di avere fin da subito una visione chiara dei costi e di affidarsi a soluzioni studiate sulle proprie esigenze abitative o imprenditoriali. Un progetto aperto, ricco di potenziale, pronto a trasformarsi in una proprietà esclusiva e di grande valore. Contattaci per altre informazioni e prenotare la tua visita.
Dati principali
| Riferimento | CBI094-1803-64152 |
| Data annuncio | 18/04/2026 |
| Contratto | Vendita |
| Tipologia | Baita |
| Superficie | 100 m2 |
| Locali | 4 (3 camere da letto, 1 altro), 3 bagni |
| Piano | Terra, 1 totali |
| Tipo di costruzione | Signorile |
| Occupato | Libero |
| Arredamento | Assente |
Caratteristiche
Costi
| Prezzo | 300.000 € |
| Prezzo al m2 | 3.000 €/m2 |
Efficienza energetica
| Riscaldamento | Assente |
| Tipo Alimentazione Riscaldamento | Altro |
| Classe energetica | G |
| Indice di prestazione energetica (IPE) | 175 kWh/m2 anno |
Planimetrie
Virtual tour
Indirizzo e mappa
Contrada Deserto
Snc, Ostuni
Annuncio senza mappa,
prova a chiedere la posizione all'inserzionista
prova a chiedere la posizione all'inserzionista
Calcolo mutuo
Prezzo di vendita:
Anticipo
20,00
Mutuo
80,00
Tasso: -+
Rata: 858 al mese
I risultati sono una stima indicativa basata sui dati inseriti e non costituiscono un’offerta finanziaria.
Inserzionista

Coldwell Banker Gruppo Bodini
Via Nicolò Putignani, 20, Bari
Mostra Telefono
Chiama
CONTATTA

