Casa semi indipendente Via Umberto I, Viverone
€ 295.000Casa semindipendente in vendita
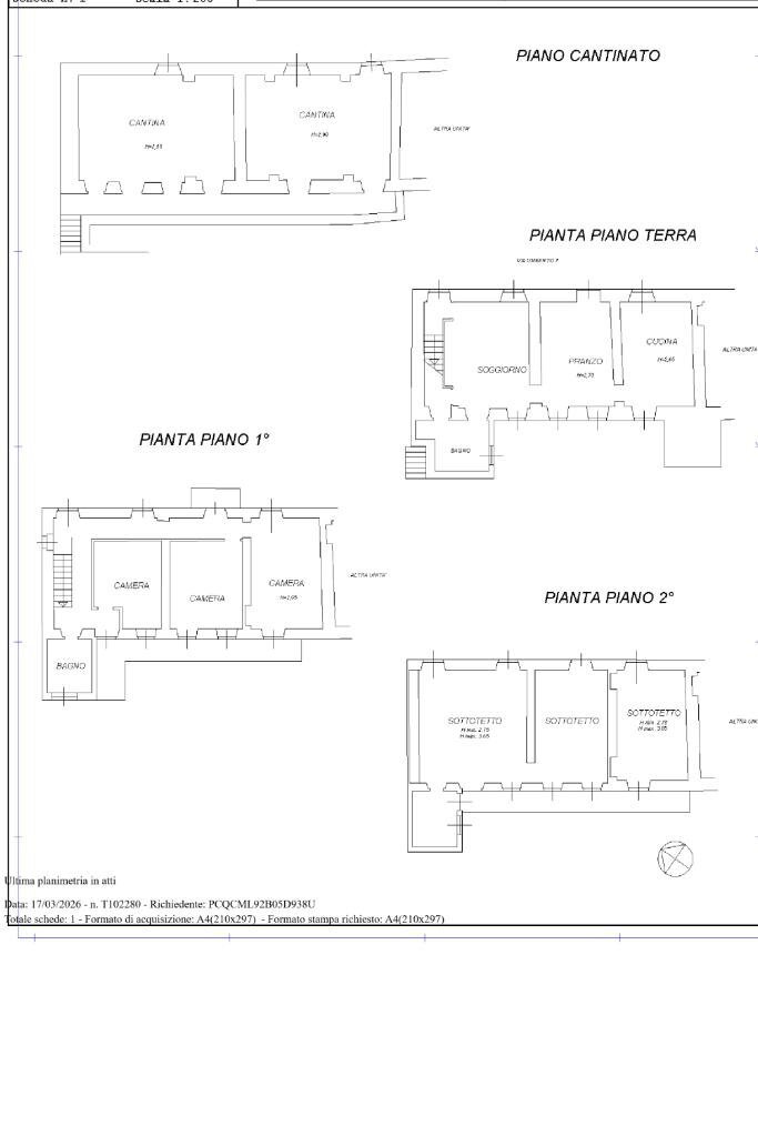
In centro paese, casa ristrutturata di ampia metratura nel 2022 e disposta su tre livelli. Il piano terra ospita la zona giorno composta da un doppio soggiorno separato dal locale cucina/sala da pranzo. Dalla zona giorno è possibile accedere ad uno spazioso terrazzo piastrellato con cucina attrezzata e con tende da sole. Inoltre, è presente un locale attualmente utilizzato come studio. Completa il piano un bagno con doccia e finestra. Invece, il piano primo accissibile mediante un'elegante scala in pietra conduce alla zona notte. Quest'ultima conta di tre camere da letto una delle quali con accesso su un balconcino rivolto verso la strada. E' presente al piano un bagno con doccia e finestra. Inoltre, dal corridoio del piano è possibile accedere al balcone che si estende lungo la facciata interna della casa dal quale si può apprezzare la vista lago. Da quest'ultimo, mediante una scala in ferro si può raggiungere il secondo piano dove sono presenti numerosi locali sottotetto. Il pavimento di quest'ultimo è stato coibentato con lana di roccia. Inoltre, al piano primo è presente un appartamento indipendente attualmente utilizzato come B&b composto da camera da letto, cucina/soggiorno e bagno con doccia e finestra. Per poter accedere all'appartamento è presente anche un'ulteriore scala esterna. Esternamente è presente uno spazioso cortile privato con giardino privato per una metratura di circa 500 mq e box auto di 82 mq circa. Vicino al box auto c'è una cisterna di 100 l circa per la raccolta dell'acqua piovana. Nell'immobile sono stati fatti numerosi interventi tra i quali il rifacimento dell'impianto sia idraulico che elettrico e sostituizione della caldaia che è a condensazione a metano. Il riscaldamento è dato anche dalle canne fumarie e gli infissi sono in legno e dotati di doppi vetri. Ci sono numerosi pavimenti in legno e la casa è stata curata nei minimi particolari. A corredo della proprietà vi sono numerose cantine nel locale seminterrato che si estendono per tutta la lunghezza della casa.
Dati principali
| Riferimento | 61207019 |
| Data annuncio | 17/04/2026 |
| Contratto | Vendita |
| Tipologia | Casa semi indipendente |
| Superficie | 428 m2 |
| Locali | più di 5 (13 altro), 3 bagni |
| Piano | 3 di 3 totali |
Costi
| Prezzo | 295.000 € |
| Prezzo al m2 | 689 €/m2 |
Efficienza energetica
| Anno costruzione | 1950 |
| Riscaldamento | Autonomo |
| Tipo Alimentazione Riscaldamento | Metano |
| Classe energetica | F |
| Indice di prestazione energetica (EP GL, REN) | 1.32 kWh/m3 anno |
| Indice di prestazione energetica (EP GL, NREN) | 266.01 kWh/m3 anno |
Planimetrie
Indirizzo e mappa
Via Umberto I, Viverone
Calcolo mutuo
Prezzo di vendita:
Anticipo
20,00
Mutuo
80,00
Tasso: -+
Rata: 844 al mese
I risultati sono una stima indicativa basata sui dati inseriti e non costituiscono un’offerta finanziaria.
Inserzionista
Chiama
CONTATTA

