Quadrilocale Via Enrico Fermi, Trezzo sull'Adda
€ 129.000Quadrilocale in vendita
TREZZO SULL’ADDA semicentro - Fuori dal traffico cittadino e vicino alle comodità essenziali come scuole, poste e supermercato. A pochi minuti a piedi dai percorsi pedonali lungo le rive del Fiume Adda. Ben collegato alle principali città vicine come Bergamo, Monza e Milano grazie all’Autostrada A4.
L’Agenzia Immobiliare Tecnocasa propone in vendita ampio appartamento in villa di 4 locali e con ingresso totalmente indipendente.
L’immobile è al momento oggetto di un frazionamento con relativo aggiornamento catastale, il cui completamente è previsto entro ottobre 2026. La soluzione sarà poi disponibile subito.
La proprietà necessita di interventi di ristrutturazione sia interni che esterni, inclusa la separazione degli impianti. Questa condizione rappresenta un'ottima opportunità per chi desidera personalizzare completamente gli spazi e le finiture, adattandoli ai propri gusti e alle moderne esigenze di efficienza energetica.
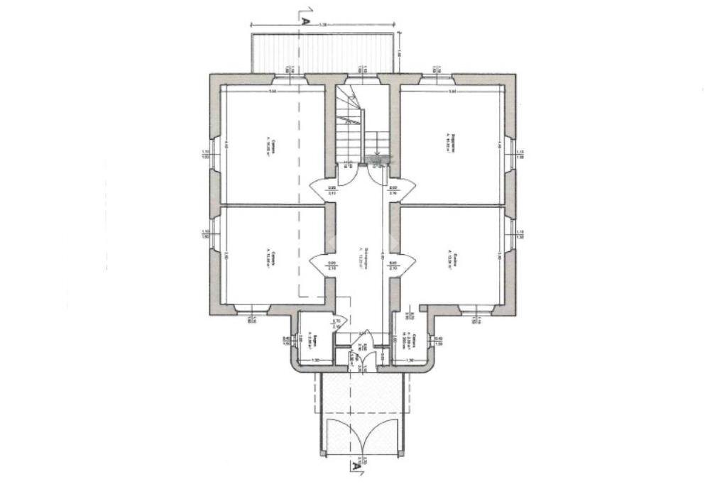
Attualmente l’appartamento è così composto: ingresso, soggiorno con cucina a vista, tre camere matrimoniali ed un bagno.
---------------------------------------------------------------
La presente descrizione e le immagini riportate hanno valore puramente indicativo e non costituiscono elemento contrattuale, ivi comprese tecnologie ed arredi installati.
L’Agenzia Immobiliare Tecnocasa propone in vendita ampio appartamento in villa di 4 locali e con ingresso totalmente indipendente.
L’immobile è al momento oggetto di un frazionamento con relativo aggiornamento catastale, il cui completamente è previsto entro ottobre 2026. La soluzione sarà poi disponibile subito.
La proprietà necessita di interventi di ristrutturazione sia interni che esterni, inclusa la separazione degli impianti. Questa condizione rappresenta un'ottima opportunità per chi desidera personalizzare completamente gli spazi e le finiture, adattandoli ai propri gusti e alle moderne esigenze di efficienza energetica.
Attualmente l’appartamento è così composto: ingresso, soggiorno con cucina a vista, tre camere matrimoniali ed un bagno.
---------------------------------------------------------------
La presente descrizione e le immagini riportate hanno valore puramente indicativo e non costituiscono elemento contrattuale, ivi comprese tecnologie ed arredi installati.
Dati principali
| Riferimento | 61205950 |
| Data annuncio | 17/04/2026 |
| Contratto | Vendita |
| Tipologia | Appartamento |
| Superficie | 120 m2 |
| Locali | 4 (4 altro), 1 bagno |
| Piano | 1 di 1 totali |
Costi
| Prezzo | 129.000 € |
| Prezzo al m2 | 1.075 €/m2 |
Efficienza energetica
| Anno costruzione | 1967 |
| Riscaldamento | Autonomo |
| Tipo Alimentazione Riscaldamento | Metano |
| Classe energetica | G |
| Indice di prestazione energetica (EP GL, REN) | 1.02 kWh/m3 anno |
| Indice di prestazione energetica (EP GL, NREN) | 308.2 kWh/m3 anno |
Planimetrie
Indirizzo e mappa
Via Enrico Fermi, Trezzo sull'Adda
Calcolo mutuo
Prezzo di vendita:
Anticipo
20,00
Mutuo
80,00
Tasso: -+
Rata: 369 al mese
I risultati sono una stima indicativa basata sui dati inseriti e non costituiscono un’offerta finanziaria.
Inserzionista
Chiama
CONTATTA

