Trilocale Via Salara, Cervia
€ 159.000Trilocale in vendita
CASTIGLIONE DI CERVIA
Nel cuore di Castiglione di Cervia, proponiamo un appartamento accogliente e funzionale, ideale per chi cerca una soluzione abitativa pratica e ben posizionata.
Situato al primo piano, l'immobile offre un ingresso semindipendente che garantisce privacy e comodità.
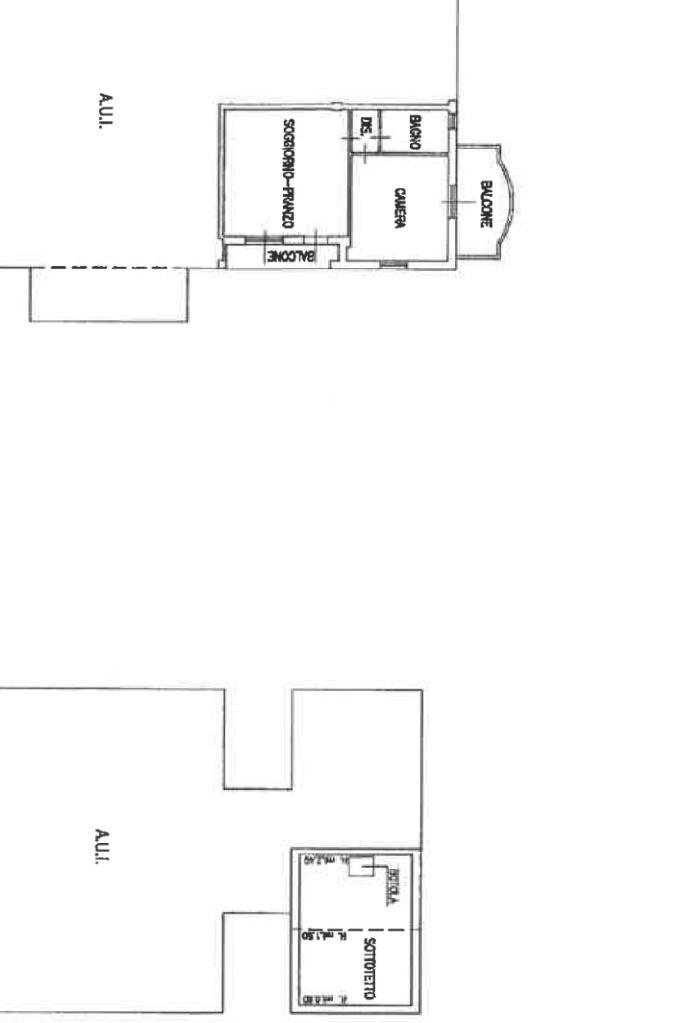
La zona giorno è composta da un luminoso soggiorno con angolo cottura, perfetto per momenti di relax e convivialità. Un disimpegno conduce alla camera da letto matrimoniale, spaziosa e confortevole e al bagno ben rifinito e pratico.
Al piano superiore, l'appartamento offre un ulteriore ambiente mansardato da personalizzare secondo le proprie esigenze.
Completa la proposta il garage di proprietà.
Costruito nel 2003, l'immobile si presenta in buone condizioni, pronto per essere abitato.
La posizione centrale a Castiglione di Cervia consente di avere a portata di mano tutti i servizi essenziali, rendendo questa proposta un'opportunità interessante per chi desidera vivere in una zona tranquilla ma ben servita.
Per maggiori informazioni chiama 0544.986427 - 340.1287078 oppure manda una mail a rahe1
Nel cuore di Castiglione di Cervia, proponiamo un appartamento accogliente e funzionale, ideale per chi cerca una soluzione abitativa pratica e ben posizionata.
Situato al primo piano, l'immobile offre un ingresso semindipendente che garantisce privacy e comodità.
La zona giorno è composta da un luminoso soggiorno con angolo cottura, perfetto per momenti di relax e convivialità. Un disimpegno conduce alla camera da letto matrimoniale, spaziosa e confortevole e al bagno ben rifinito e pratico.
Al piano superiore, l'appartamento offre un ulteriore ambiente mansardato da personalizzare secondo le proprie esigenze.
Completa la proposta il garage di proprietà.
Costruito nel 2003, l'immobile si presenta in buone condizioni, pronto per essere abitato.
La posizione centrale a Castiglione di Cervia consente di avere a portata di mano tutti i servizi essenziali, rendendo questa proposta un'opportunità interessante per chi desidera vivere in una zona tranquilla ma ben servita.
Per maggiori informazioni chiama 0544.986427 - 340.1287078 oppure manda una mail a rahe1
Dati principali
| Riferimento | 61207271 |
| Data annuncio | 17/04/2026 |
| Contratto | Vendita |
| Tipologia | Appartamento |
| Superficie | 56 m2 |
| Locali | 3 (3 altro), 1 bagno |
| Piano | 1 di 3 totali |
Costi
| Prezzo | 159.000 € |
| Prezzo al m2 | 2.839 €/m2 |
| Spese condominiali | € 42,00/mese |
Efficienza energetica
| Anno costruzione | 2003 |
| Riscaldamento | Autonomo |
| Tipo Alimentazione Riscaldamento | Metano |
| Classe energetica | Immobile esente da certificazione energetica |
Planimetrie
Indirizzo e mappa
Via Salara, Cervia
Calcolo mutuo
Prezzo di vendita:
Anticipo
20,00
Mutuo
80,00
Tasso: -+
Rata: 455 al mese
I risultati sono una stima indicativa basata sui dati inseriti e non costituiscono un’offerta finanziaria.
Inserzionista
Agenzia Tecnocasa Studio Cervia Srl
Via Tritone, 11, Cervia
Mostra Telefono
Chiama
CONTATTA

