Appartamento Via del Borgo a Santa Lucia, Prato
€ 320.000Appartamento - Pentalocale a Prato
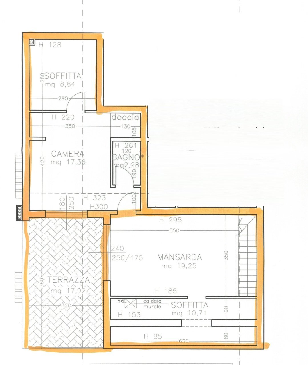
A pochi minuti da S. Lucia, in piccola palazzina senza spese condominiali, immersa nel verde in posizione dominante, proponiamo appartamento posto al piano primo e ultimo con mansarda abitabile; composto da: ampio soggiorno con terrazza, camera matrimoniale e servizio, ripostiglio, cucina abitabile con terrazza a tasca abitabile, camera matrimoniale con guardaroba e secondo servizio. Possibilità terza camera. Completano la proprietà due posti auto esclusivi. Le immagini sono rendering puramente indicativi. Per motivi di privacy l'indirizzo non corrisponde alla reale ubicazione. Il nostro ufficio è aperto dal lunedì al venerdì dalle 9,00 alle 13,00 e dalle 15,00 alle 19,00. Il sabato mattina su appuntamento. Per ulteriori informazioni: 0574/946052.
Dati principali
| Riferimento | 228 |
| Data annuncio | 16/04/2026 |
| Contratto | Vendita |
| Tipologia | Appartamento |
| Superficie | 130 m2 |
| Locali | 5 (2 camere da letto, 3 altro), 2 bagni |
| Piano | 1 totali |
| Numero di terrazzi | 1 |
| Numero posti auto | 1 |
Costi
| Prezzo | 320.000 € |
| Prezzo al m2 | 2.462 €/m2 |
Efficienza energetica
| Classe energetica | In fase di calcolo |
Planimetrie
Indirizzo e mappa
Via del Borgo a Santa Lucia, Prato
Calcolo mutuo
Prezzo di vendita:
Anticipo
20,00
Mutuo
80,00
Tasso: -+
Rata: 915 al mese
I risultati sono una stima indicativa basata sui dati inseriti e non costituiscono un’offerta finanziaria.
Inserzionista

Spazio Casa Studio Immobiliare s.a.s.
Via Borgonuovo, 4/B, Vaiano
Mostra Telefono
Mostra Cellulare
Chiama
CONTATTA

