Appartamento Via Ghibellina, Firenze (zona Santa Croce)
€ 1.500 al meseAppartamento - Trilocale a Duomo, Firenze
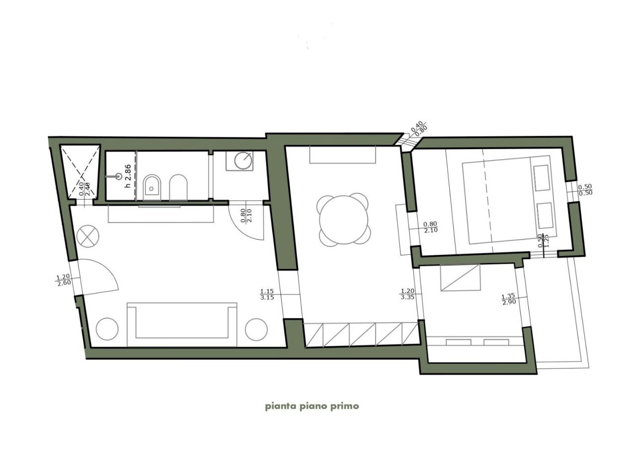
a26149 - CENTRO STORICO/DUOMO-VIA GHIBELLINA: Nel cuore del centro storico nei pressi di Piazza Santa Croce proponiamo in affitto luminoso appartamento (50 mq c.a.) situato al secondo piano composto da: ingresso, soggiorno, angolo cottura, camera da letto matrimoniale con servizio oltre pratico balcone. L'immobile di recente ristrutturazione, si presenta in ottime condizioni generali, gode di doppia esposizione ed è dotate di finiture di pregio come parquet ed infissi doppi. Termo singolo Classe Energetica G. Contratto proposto transitorio 12/18 mesi. Richieste massime garanzie. LIBERO DAL 1 MAGGIO 2026
Dati principali
| Riferimento | a26149 |
| Data annuncio | 16/04/2026 |
| Contratto | Affitto |
| Tipologia | Appartamento |
| Superficie | 50 m2 |
| Locali | 3 (1 camera da letto, 2 altro), 1 bagno |
| Piano | 1 totali |
| Numero di balconi | 1 |
| Arredamento | Completo |
Costi
| Prezzo | 1.500 € al mese |
| Spese condominiali | € 150,00/mese |
Efficienza energetica
| Anno costruzione | 1900 |
| Classe energetica | G |
Planimetrie
Indirizzo e mappa
Via Ghibellina, Firenze - quartiere Santa Croce
Inserzionista
Immobiliare Belvedere
Via Il Prato 61r, Firenze
Mostra Telefono
Chiama
CONTATTA

