Villa via Marotta, 74, Fiumicino
€ 435.000VILLA ANGOLARE CON GIARDINO
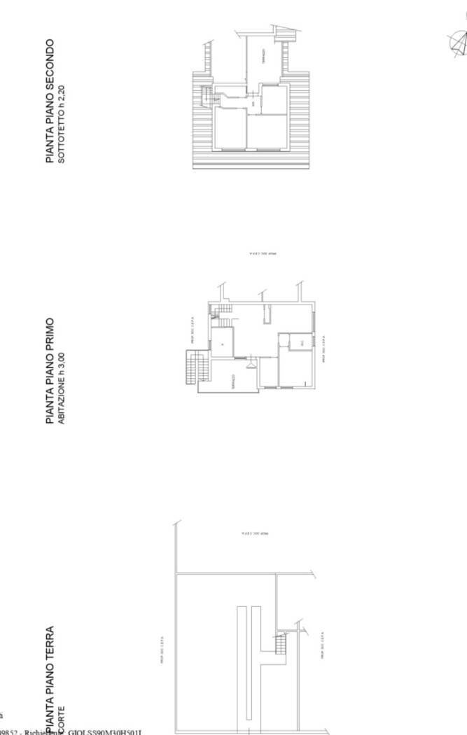
Nel centro di Fregene, località marittima a soli 20 km da Roma, proponiamo la vendita di una porzione di villa angolare situata in Via Marotta, esattamente al centro del paese e a soli 300 mt dal mare. L'immobile è la porzione privilegiata dello stabile, avendo un giardino angolare. La soluzione si presenta su due livelli fuori terra. Al piano terra abbiamo un comodo giardino con accesso carrabile per poter parcheggiare, una scala esterna in muratura concede l'accesso alla proprietà al primo piano tramite un comodo terrazzo vivibile, da lì si apre sul comodo salone doppio con camino, sulla sinistra troviamo la cucina abitabile, il piano è completato da una comoda camera matrimoniale, il bagno e un ampio ripostiglio. Una scala di collegamento ci porta al secondo piano dell'immobile dove ci sono tre camere da letto, un bagno e il terrazzo. Di notevole importanza è l’impianto fotovoltaico posizionato sulla terrazza del secondo piano Punti di forza dell'immobile: - giardino - vicinanza al mare - posizione centrale Stai pensando di vendere o affittare casa? Con RockAgent puoi vendere o affittare il tuo immobile assicurandoti un servizio eccellente, garantito da agenti immobiliari selezionati supportati da un team tecnico, marketing e legale di altissimo livello. Visita il sito RockAgent.it e ottieni una valutazione gratuita del tuo immobile.
Dati principali
| Riferimento | 34047 - 15/04/2026 |
| Data annuncio | 26/03/2026 |
| Contratto | Vendita |
| Tipologia | Villa |
| Superficie | 120 m2 |
| Locali | 5 (4 camere da letto, 1 altro), 2 bagni, cucina abitabile |
| Piano | 2 totali |
| Tipo di costruzione | Signorile |
| Numero di terrazzi | 1 |
| Numero di balconi | 1 |
| Numero posti auto | 1 |
| Arredamento | Assente |
Caratteristiche
Costi
| Prezzo | 435.000 € |
| Prezzo al m2 | 3.625 €/m2 |
Efficienza energetica
| Anno costruzione | 1980 |
| Stato | Buono |
| Riscaldamento | Autonomo |
| Classe energetica | F |
| Indice di prestazione energetica (IPE) | 175 kWh/m2 anno |
Planimetrie
Indirizzo e mappa
via Marotta, 74, Fiumicino
Calcolo mutuo
Prezzo di vendita:
Anticipo
20,00
Mutuo
80,00
Tasso: -+
Rata: 1.244 al mese
I risultati sono una stima indicativa basata sui dati inseriti e non costituiscono un’offerta finanziaria.
Inserzionista

RockAgent
Via di Santa Costanza 21, Roma
Mostra Telefono
Chiama
CONTATTA

