Stabile - Palazzo piazzetta Spirito Santo, Pistoia
€ 6.900 al mesePALAZZO STORICO PISTOIA CENTRO
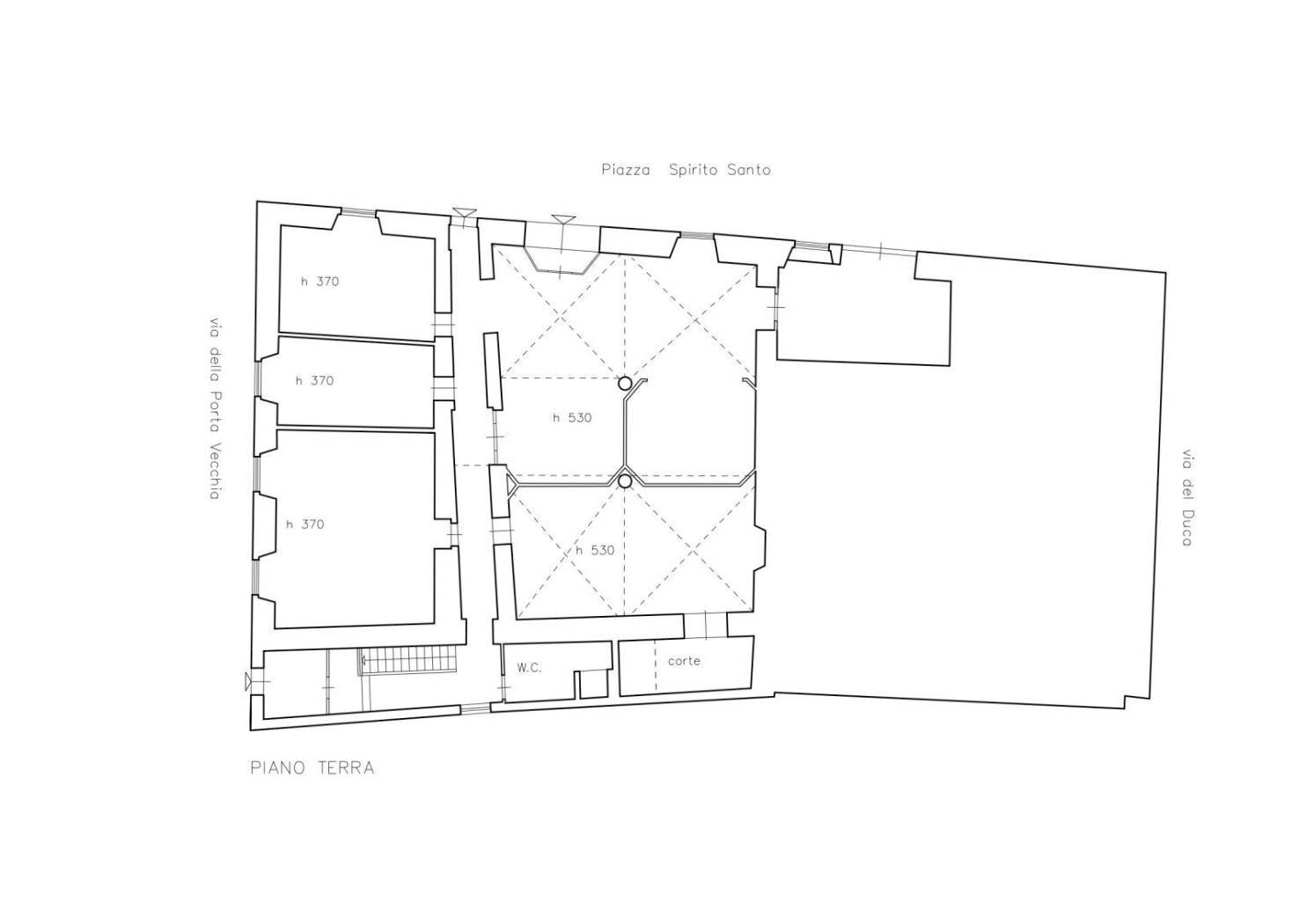
Pistoia Centro (Piazzetta Spirito Santo), in edificio storico del 1500, situato di fronte alla chiesa dei Gesuiti che da il nome all'omonima piazza, proponiamo un grande ufficio di rappresentanza (piano terra e primo piano) composto da 16 ambienti e 3 servizi, con logica distribuzione interna. La disposizione interna può essere strutturata anche in maniera diversa da quella attuale, in quanto buona parte dei muri sono tramezzature. La pavimentazione del piano terreno è in cotto antichizzato, mentre quella del primo piano è in parquet di rovere. La struttura può anche essere locata parzialmente (o primo o secondo piano), in quanto il primo piano ha un proprio ingresso indipendente. L'edificio si presenta in ottimo stato, ed è composto da due fabbricati di epoche diverse (1500/1600) e si trova nel centro storico della città, cuore pulsante di Pistoia. I soffitti dal piano terreno sono con volte a botte ed in buona parte alti oltre cinque metri. Ideale per uffici di di banche, aziende commerciali e per ogni attività commerciale che intenda dare un'impronta di alta rappresentanza alla propria azienda Punti di forza dell'immobile: - posizione strategica - ottimo stato - di pregio storico Le linee autobus più vicine sono CURTATONE E M. 2 (100 m), CURTATONE E M. 54 e altre 20 fermate nel raggio di 490 m. Gli asili per bambini nelle vicinanze dell'immobile sono SCUOLA DELL'INFANZIA PARITARIA SUORE MANTELLATE (420 m) e SCUOLA DELL'INFANZIA PARITARIA REGINA MARGHERITA (440 m). Inoltre, i servizi scolastici comprendono gli istituti: CIVININI-ARRIGHI (200 m), LICEO STATALE N.FORTEGUERRI e altre 8 scuole nel raggio di 470 m. Stai pensando di vendere o affittare casa? Con RockAgent puoi vendere o affittare il tuo immobile assicurandoti un servizio eccellente, garantito da agenti immobiliari selezionati supportati da un team tecnico, marketing e legale di altissimo livello. Visita il sito RockAgent.it e ottieni una valutazione gratuita del tuo immobile.
Dati principali
| Riferimento | 166710 - 15/04/2026 |
| Data annuncio | 11/03/2026 |
| Contratto | Affitto |
| Tipologia | Stabile - Palazzo |
| Superficie | 716 m2 |
| Locali | 3 bagni |
| Tipo di costruzione | Lusso |
Caratteristiche
Costi
| Prezzo | 6.900 € al mese |
Efficienza energetica
| Anno costruzione | 1500 |
| Stato | Ottimo |
| Riscaldamento | Autonomo |
| Classe energetica | F |
| Indice di prestazione energetica (IPE) | 175 kWh/m2 anno |
Planimetrie
Indirizzo e mappa
piazzetta Spirito Santo, Pistoia
Inserzionista

RockAgent
Via di Santa Costanza 21, Roma
Mostra Telefono
Chiama
CONTATTA

