Villa Villaggio Chiusurelle, Porto Cesareo
€ 198.000VILLA INDIPENDENTE UNIFAMILIARE
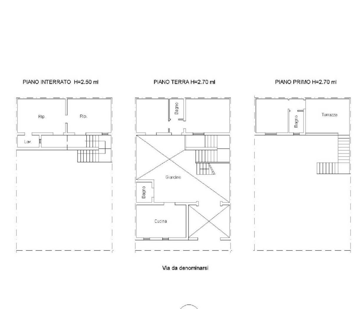
Porto Cesareo ha origini antiche, questo si manifesta in monumenti e stile architettonici, oggi ancora presenti e protetti, che rimandano alle molteplici culture che si sono succedute nei secoli al suo comando. La villa che si propone, completamente arredata, è posta all'interno del villaggio turistico "Chiusurelle", immerso nel fascino selvaggio della macchia mediterranea, in un ambiente nel quale la natura è ancora padrona, rappresenta la testimonianza del perfetto equilibrio tra i comfort di una moderna residenza e il paesaggio incontaminato e ricco d’incanto tipico del Salento. Il villaggio è stato edificato negli anni 2008, la villa è in ottime condizioni di manutenzione. Nello specifico la costruzione si sviluppa su tre piani: seminterrato, terra e primo. La villetta è stata pensata e realizzata con l'obiettivo di creare ambienti accoglienti e ben esposti alla luce naturale. La distribuzione degli spazi è particolarmente funzionale e le finiture sono di buona qualità, caratteristiche che garantiscono il massimo confort con possibilità di vivere l'abitazione sia in maniera permanente da una famiglia, come per essere messa a rendita con affitti brevi, data la presenza dei molteplici servizi che garantiscono piena privacy e indipendenza agli ospiti. Al piano terra è disposta la cucina con bagno più due camere da letto con 1 bagno, con affaccio su un grande spazio esterno, parzialmente coperto, che rende l'ambiente accogliente, adatto alle attività all'aperto da fruire in pieno relax. Al piano seminterrato sono presenti due ampie camere da letto, con un comodissimo bagno. Il primo piano dispone di una camera da letto con bagno e terrazza. In definitiva questa proprietà rappresenta un'opportunità unica e ottima soluzione ad uso abitativo o investimento, situata nel comune di Porto Cesareo, un luogo tranquillo, ove sono ubicati tutti i servizi ed i collegamenti che consentono di vivere la città in maniera armoniosa e rilassata. La villa è dotata di impianto di riscaldamento e raffreddamento con radiatori elettrici. Non sono previste spese condominiali in quanto le aree esterne ( vie, piazze ecc. ) sono di proprietà comunali. Esiste una ditta privata che a richiesta esegue qualsiasi tipo di lavoro, dal giardinaggio alla pitturazione e a qualsiasi tipo di manutenzione. Gli impianti sportivi, la piscina, l'animazione, le navette per le spiagge convenzionate ecc. sono gestiti da agenzia privata con costi " TESSERA CLUB SETTIMANALE TUTTO INCLUSO " di euro 50 a persona ( prezzo stabilito per la stagione 2025 ) . Punti di forza dell'immobile: - Località con17 km di spiagge, le più belle e famose in costa jonica - facilmente raggiungibili: Gallipoli, Leuca, Otranto, Ugento, Lecce - Sono presenti: animazione, piscina, impianti sportivi, bar, ristoro La linea di autobus più vicina è VIA GIUSEPPE GARIBALDI (70 m). Stai pensando di vendere o affittare casa? Con RockAgent puoi vendere o affittare il tuo immobile assicurandoti un servizio eccellente, garantito da agenti immobiliari selezionati supportati da un team tecnico, marketing e legale di altissimo livello. Visita il sito RockAgent.it e ottieni una valutazione gratuita del tuo immobile.
Dati principali
| Riferimento | 151380 - 15/04/2026 |
| Data annuncio | 12/03/2026 |
| Contratto | Vendita |
| Tipologia | Villa |
| Superficie | 100 m2 |
| Locali | 5 (5 camere da letto), 4 bagni, cucina abitabile |
| Piano | 3 totali |
| Tipo di costruzione | Media |
| Numero di terrazzi | 1 |
| Numero posti auto | 1 |
| Arredamento | Completo |
Caratteristiche
Costi
| Prezzo | 198.000 € |
| Prezzo al m2 | 1.980 €/m2 |
Efficienza energetica
| Anno costruzione | 2008 |
| Stato | Buono |
| Riscaldamento | Autonomo |
| Classe energetica | Immobile esente da certificazione energetica |
Planimetrie
Indirizzo e mappa
Villaggio Chiusurelle, Porto Cesareo
Calcolo mutuo
Prezzo di vendita:
Anticipo
20,00
Mutuo
80,00
Tasso: -+
Rata: 566 al mese
I risultati sono una stima indicativa basata sui dati inseriti e non costituiscono un’offerta finanziaria.
Inserzionista

RockAgent
Via di Santa Costanza 21, Roma
Mostra Telefono
Chiama
CONTATTA

