Appartamento via Reggio, 6, Torino (zona Aurora)
€ 349.000VENDITA PENTALOCALE
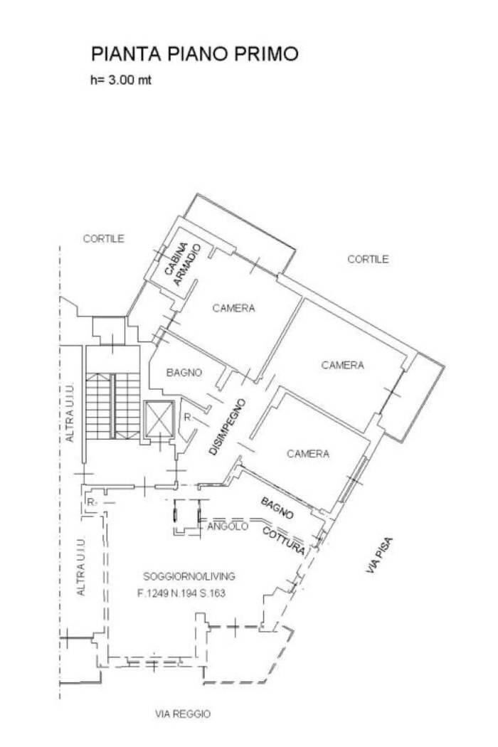
Nel cuore di Borgo Rossini, in via Reggio 6, proponiamo in vendita un ampio e luminoso PENTALOCALE situato al primo piano di uno stabile dotato di ascensore. L’immobile, caratterizzato da doppio ingresso indipendente dal pianerottolo, si apre su un elegante soggiorno living con angolo cottura e isola, ideale per chi ama gli spazi moderni e conviviali. La zona notte comprende tre camere da letto, un ampio disimpegno, doppi servizi e due pratici ripostigli. Completano la proprietà due cantine al piano interrato. L'esposizione su tre aree provocata dalla fusione di due alloggi rende la proprietà luminosa e ariosa durante tutta la giornata. L’immobile è stato ristrutturato e dispone di climatizzazione in tutti gli ambienti, nonché infissi nuovi esterni ed interni. Sarebbe possibile previe debite lavorazioni suddividere le due unità riportandole alla condizione originale (un bilocale e un trilocale). Tale soluzione sarebbe ottimale per un uso di investimento La posizione strategica, a pochi minuti dal centro di Torino e nelle immediate vicinanze delle principali sedi universitarie, lo rende perfetto sia come abitazione principale sia come investimento ad alta redditività. VISIONABILE SU APPUNTAMENTO L'agenzia iD immobiliare con sede in C. so Regina Margherita n°88 sarà lieta di rispondervi per coordinare un appuntamento per visionare l'immobile o per semplici informazioni. Potrete contattarci telefonicamente ai seguenti numeri 393.928.23.51 - 011.436.95.56 nei seguenti orari: Lunedì al venerdì - 9.00-13.00 / 15.00-19.00 sabato 9.00-12.30 mail: [email protected] FORNIAMO VALUTAZIONE GRATUITA DEL VOSTRO IMMOBILE per locazione/vendita/stima estemporanea della redditività energetica.
Dati principali
| Riferimento | via reggio 6 |
| Data annuncio | 15/04/2026 |
| Contratto | Vendita |
| Tipologia | Appartamento |
| Superficie | 146 m2 |
| Locali | 5 (3 camere da letto, 2 altro), 2 bagni, cucina abitabile |
| Piano | 1 di 7 totali |
| Tipo di costruzione | Media |
| Numero di balconi | 1 |
| Box auto | Assente |
| Arredamento | Parziale |
Caratteristiche
Costi
| Prezzo | 349.000 € |
| Prezzo al m2 | 2.390 €/m2 |
| Spese condominiali | € 110,00/mese |
Efficienza energetica
| Anno costruzione | 1960 |
| Stato | Ottimo |
| Riscaldamento | Centralizzato |
| Classe energetica | D |
| Indice di prestazione energetica (IPE) | 184.35 kWh/m2 anno |
Planimetrie
Indirizzo e mappa
via Reggio, 6, Torino - quartiere Aurora
Calcolo mutuo
Prezzo di vendita:
Anticipo
20,00
Mutuo
80,00
Tasso: -+
Rata: 998 al mese
I risultati sono una stima indicativa basata sui dati inseriti e non costituiscono un’offerta finanziaria.
Inserzionista
Chiama
CONTATTA


