Appartamento Piazza De Marini 3, Genova
€ 215.000
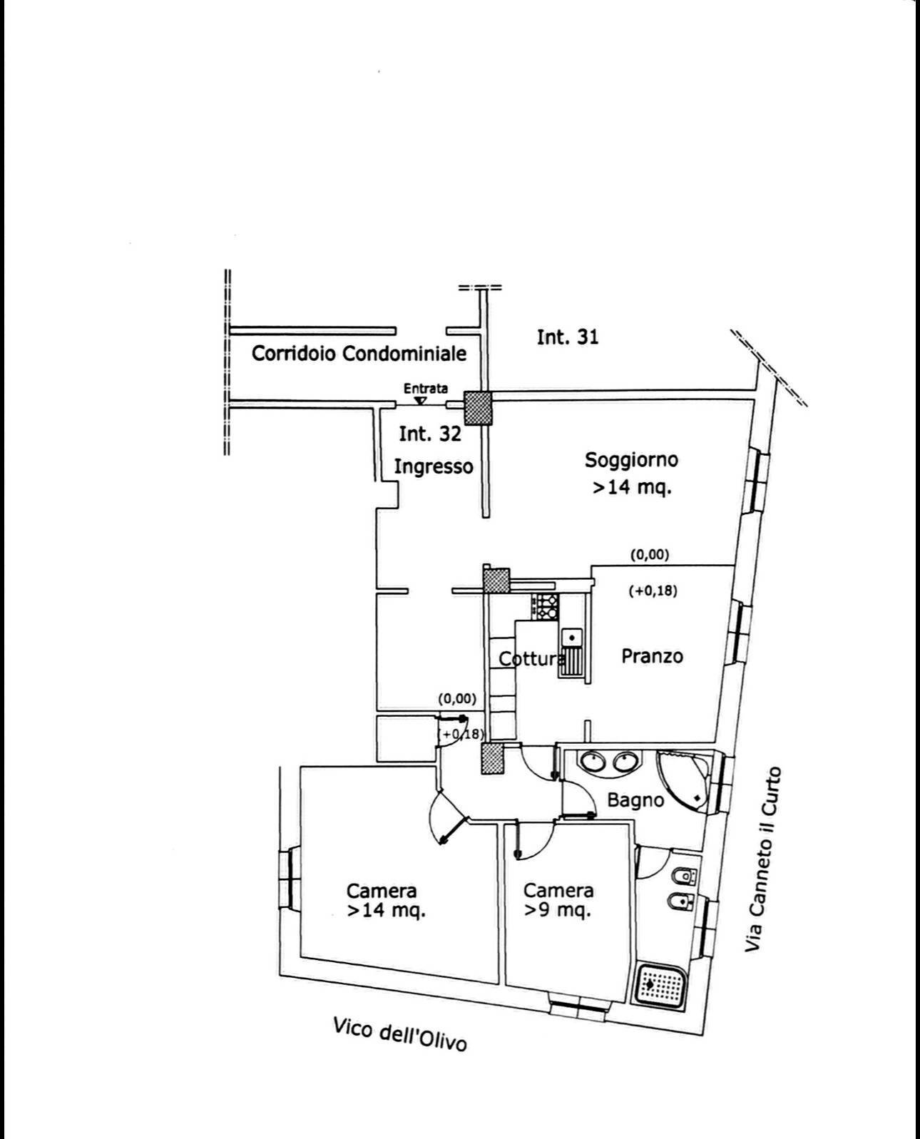
Ampio appartamento di 120 mq, ottimo stato di ristrutturazione moderna in Piazza De Marini, a due passi dal Porto Antico, Acquario e dal prestigioso palazzo San Giorgio (Sottoripa) - Contatto 348.22.44.987 Nel cuore del centro storico più autentico e affascinante di Genova, a soli 100 metri dal Porto Antico e dallAcquario, proponiamo ampio appartamento di 120 mq situato in contesto moderno dotato di ascensore, elemento raro e particolarmente ricercato in questa zona della città. Limmobile, posto a piano alto, gode di una piacevole luminosità e di una posizione estremamente strategica, ideale per chi desidera vivere il centro con tutti i servizi, le comodità e le principali attrazioni della città a portata di mano. Lappartamento è composto da 6 vani ben distribuiti: ampio ingresso, cucina, tinello, grande sala, 2 camere da letto e bagno doppio. La distribuzione interna offre ambienti spaziosi e versatili, con ottime potenzialità sia per uso residenziale sia per investimento. La metratura importante e il taglio dellimmobile consentono infatti di personalizzare gli spazi in base alle proprie esigenze abitative o progettuali. Possibilità di frazionamento. La posizione rappresenta uno dei principali punti di forza: Piazza De Marini è una delle zone più centrali e richieste di Genova, perfetta per chi desidera avere sotto casa il fascino storico della città, il Porto Antico, lAcquario, la prestigiosa via San Lorenzo e Sottoripa; ristoranti, servizi, mezzi pubblici e collegamenti rapidi verso ogni area urbana. Soluzione ideale come abitazione principale di rappresentanza, pied-à-terre in centro città oppure come investimento di valore, in una delle aree più attrattive e dinamiche di Genova. Contattaci per maggiori informazioni o per prenotare una visita al 348.22.44.987
Dati principali
| Riferimento | DeMarini |
| Data annuncio | 17/04/2026 |
| Contratto | Vendita |
| Tipologia | Appartamento |
| Superficie | 120 m2 |
| Locali | più di 5 (2 camere da letto, 5 altro), 1 bagno, cucina abitabile |
| Tipo di costruzione | Media |
| Occupato | Libero |
| Arredamento | Assente |
Caratteristiche
Costi
| Prezzo | 215.000 € |
| Prezzo al m2 | 1.792 €/m2 |
Efficienza energetica
| Stato | Buono |
| Riscaldamento | Centralizzato |
| Classe energetica | D |
| Indice di prestazione energetica (IPE) | 352 kWh/m2 anno |
Planimetrie
Indirizzo e mappa
Piazza De Marini
3, Genova
Annuncio senza mappa,
prova a chiedere la posizione all'inserzionista
prova a chiedere la posizione all'inserzionista
Calcolo mutuo
Prezzo di vendita:
Anticipo
20,00
Mutuo
80,00
Tasso: -+
Rata: 615 al mese
I risultati sono una stima indicativa basata sui dati inseriti e non costituiscono un’offerta finanziaria.
Inserzionista

GOA IMMOBILIARE MIRTI S.R.L.S
Via Santi Giacomo e Filippo 24r, Genova
Mostra Telefono
Mostra Cellulare
Chiama
CONTATTA

