Casa semi indipendente Via Bruino 14, Medolla
Trattativa riservataCOD.2961 Porzione di edificio storico e sua rinascita
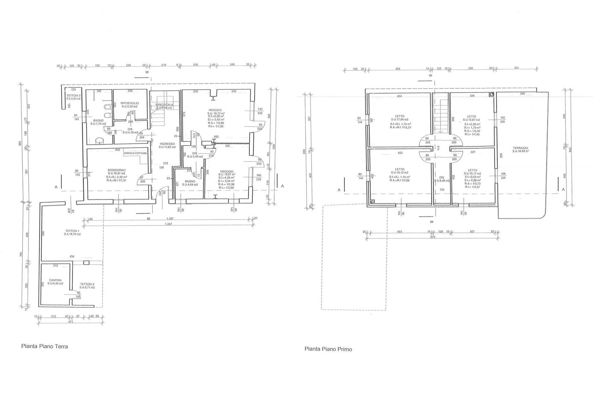
COD.2961 BRUINO, MEDOLLA, Casa semi indipendente in vendita.
Remax Unicorn vende a Medolla, in pieno centro, una soluzione da terra a tetto aperta su tre lati con area privata di parcheggio privato (2 posti auto).
L'abitazione esistente proviene dall'intervento di consolidamento sismico con restauro delle coperture su una casa storica.
Per indirizzarla ad un uso attuale e funzionale, sono stati fatti dei progetti degli interni che prevedono:
a piano terra un ampio ingresso
la cucina
un locale ripostiglio
il bagno
al piano primo
4 camere di cui una può essere sacrificata per realizzare un bagno
L'altezza dell'edificio con il nuovo tetto in legno che è stato posato ha consentito al piano secondo di realizzare 4 mansarde, sfruttabili come ulteriori camere/studi.
La casa è esternamente finita: ci sono i serramenti, gli scuri sono in alluminio coibentato e le finestre interne in legno con vetrocamera ad Argon.
La superficie netta abitativa, esclusa la mansarda è di 130 mq netti.
Remax Unicorn vende a Medolla, in pieno centro, una soluzione da terra a tetto aperta su tre lati con area privata di parcheggio privato (2 posti auto).
L'abitazione esistente proviene dall'intervento di consolidamento sismico con restauro delle coperture su una casa storica.
Per indirizzarla ad un uso attuale e funzionale, sono stati fatti dei progetti degli interni che prevedono:
a piano terra un ampio ingresso
la cucina
un locale ripostiglio
il bagno
al piano primo
4 camere di cui una può essere sacrificata per realizzare un bagno
L'altezza dell'edificio con il nuovo tetto in legno che è stato posato ha consentito al piano secondo di realizzare 4 mansarde, sfruttabili come ulteriori camere/studi.
La casa è esternamente finita: ci sono i serramenti, gli scuri sono in alluminio coibentato e le finestre interne in legno con vetrocamera ad Argon.
La superficie netta abitativa, esclusa la mansarda è di 130 mq netti.
Dati principali
| Riferimento | 2961 |
| Data annuncio | 16/04/2026 |
| Contratto | Vendita |
| Tipologia | Casa semi indipendente |
| Superficie | 123 m2 |
| Locali | più di 5 (7 altro) |
Costi
| Prezzo | Trattativa riservata |
Efficienza energetica
| Classe energetica | Immobile esente da certificazione energetica |
Indirizzo e mappa
Via Bruino 14, Medolla
Inserzionista

Agenzia Farini
Viale Gramsci 387, Modena
Mostra Telefono
Chiama
CONTATTA

