Trilocale Strada Castel Maiolo, Marentino
€ 143.000Appartamento in vendita a Marentino strada Castel Maiolo
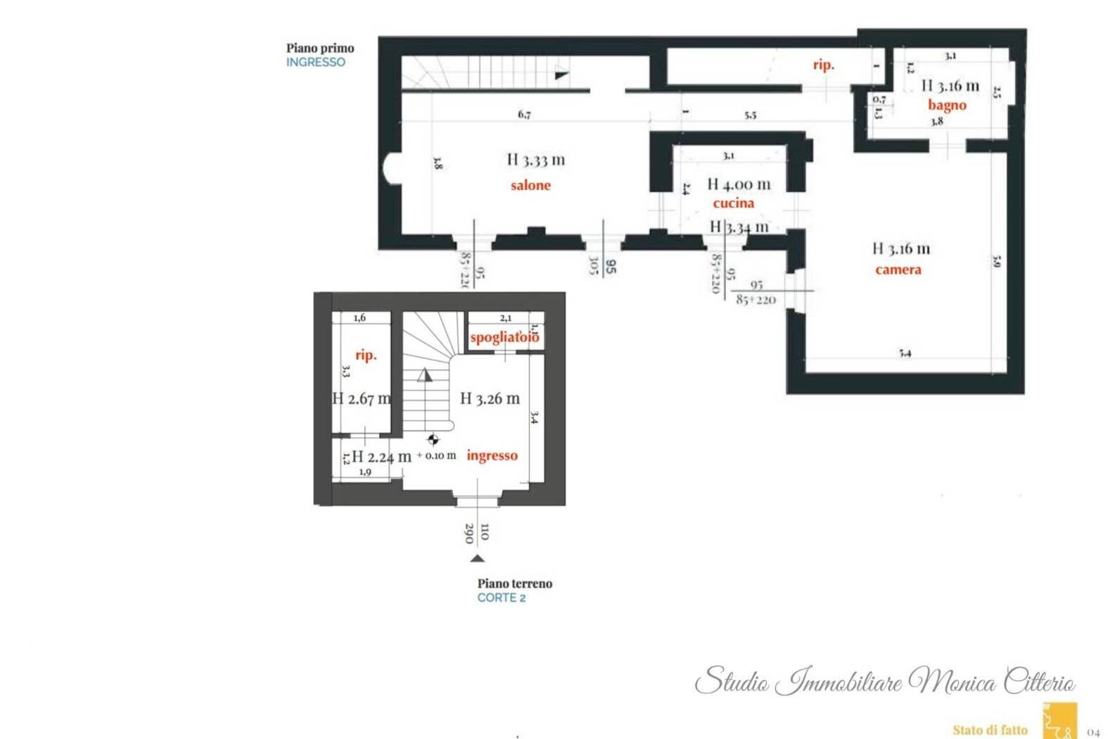
All’interno di un esclusivo complesso settecentesco, vincolato dal Ministero dei Beni Culturali e Ambientali, immerso in un parco storico privato di circa 30.000 mq, proponiamo in vendita residenza di charme da ristrutturare (A5), rara per autenticità e fascino. L’appartamento conserva preziosi elementi architettonici originali, tra cui soffitti affrescati, soffitti lignei a cassettoni e travi a vista, che restituiscono l’eleganza senza tempo della dimora storica. La proprietà si sviluppa su due livelli al piano terreno ingresso di rappresentanza, ripostiglio e spogliatoio; al piano nobile, raggiungibile tramite una suggestiva scala in pietra di Luserna, dove trovano spazio un salone di grande fascino con camino incorniciato da una libreria in legno su misura, cucinotta, camera padronale di generose dimensioni e bagno. Completa la residenza area di parcheggio privata, parco, serre ed orto a uso comune. Una proposta unica, ideale per chi ricerca una residenza di prestigio, capace di coniugare storia, natura e personalizzazione, all’interno di un contesto riservato e di assoluta eleganza. Spese condominiali euro 2000,00 a.C. Annue. Ape esente
Dati principali
| Riferimento | Marentino A5 |
| Data annuncio | 16/04/2026 |
| Contratto | Vendita |
| Tipologia | Appartamento |
| Superficie | 130 m2 |
| Locali | 3 (3 altro), 1 bagno |
Costi
| Prezzo | 143.000 € |
| Prezzo al m2 | 1.100 €/m2 |
Efficienza energetica
| Classe energetica | Immobile esente da certificazione energetica |
Planimetrie
Indirizzo e mappa
Strada Castel Maiolo, Marentino
Calcolo mutuo
Prezzo di vendita:
Anticipo
20,00
Mutuo
80,00
Tasso: -+
Rata: 409 al mese
I risultati sono una stima indicativa basata sui dati inseriti e non costituiscono un’offerta finanziaria.
Inserzionista
Chiama
CONTATTA


