Appartamento Via Procaccia 153, Monopoli
€ 300.000Appartamento - Bilocale a Monopoli
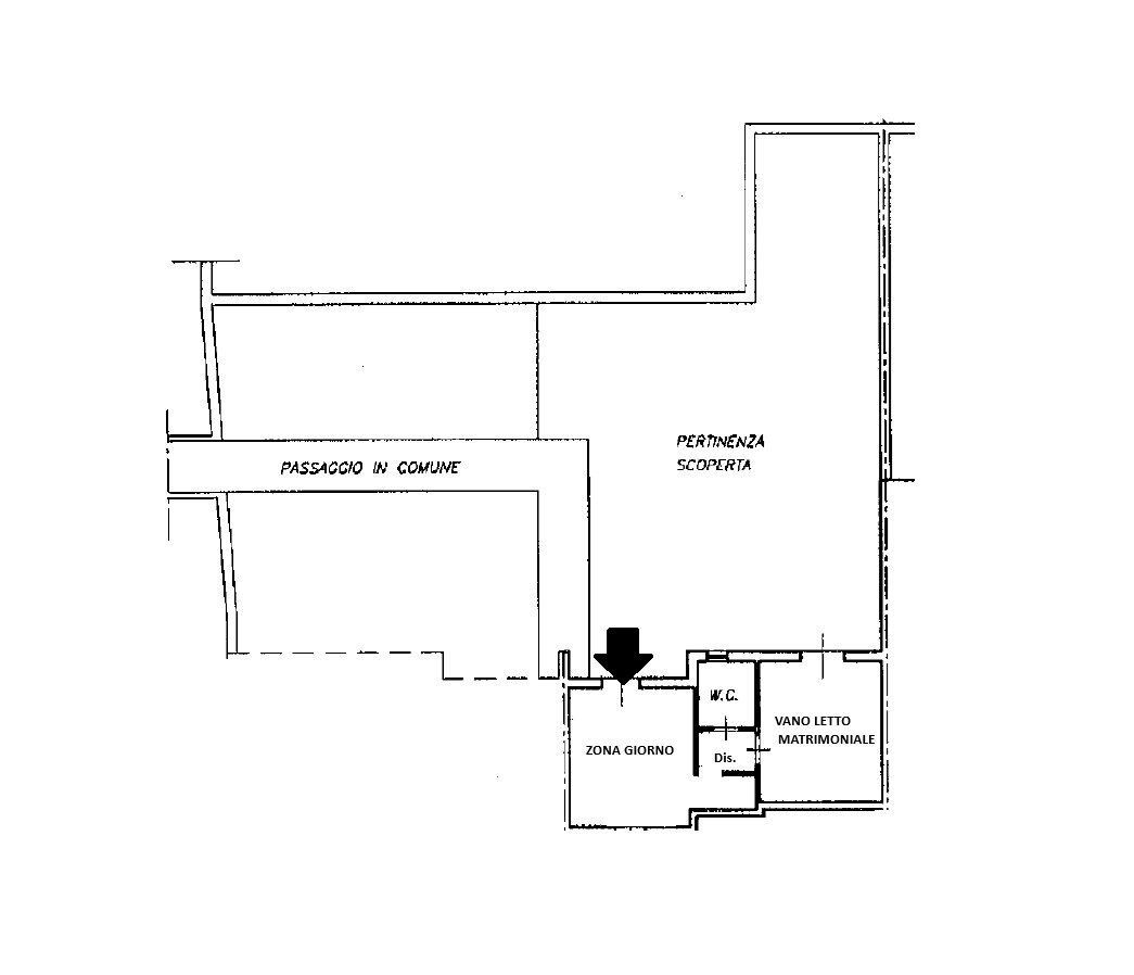
Zona strategica, di fronte al bellissimo mare di Monopoli, a pochi metri dalle spiagge libere più belle della città, proponiamo appartamento con ingresso indipendente ed ampia terrazza al livello di ESCLUSIVA PROPRIETA’. Si tratta di un appartamento moderno di 50 mq, dotato di ogni comfort. E’ composto da zona giorno con cucina attrezzata, bagno con doccia ed ampia camera matrimoniale, completa la proprietà lo splendido patio esterno di ben 100 mq, con doccia e tutto ciò che occorre per cene e pranzi all’aperto. Un piccolo angolo di paradiso, vista mare, a pochi passi dal centro. Attualmente utilizzata come struttura ricettiva, perfetta anche come investimento da mettere a reddito. POSIZIONE PRIVILEGIATA!
Dati principali
| Riferimento | 601 |
| Data annuncio | 15/04/2026 |
| Contratto | Vendita |
| Tipologia | Appartamento |
| Superficie | 50 m2 |
| Locali | 2 (2 altro) |
| Piano | 1 totali |
| Numero di terrazzi | 1 |
Costi
| Prezzo | 300.000 € |
| Prezzo al m2 | 6.000 €/m2 |
Efficienza energetica
| Classe energetica | Immobile esente da certificazione energetica |
Planimetrie
Indirizzo e mappa
Via Procaccia 153, Monopoli
Calcolo mutuo
Prezzo di vendita:
Anticipo
20,00
Mutuo
80,00
Tasso: -+
Rata: 858 al mese
I risultati sono una stima indicativa basata sui dati inseriti e non costituiscono un’offerta finanziaria.
Inserzionista
Casa Bianca S.r.l.
Via U. Rattazzi, 35, Monopoli
Mostra Telefono
Chiama
CONTATTA

