Trilocale via Salemi, 53/A, Roma
€ 195.000Casilina Borghesiana delizioso trilocale nuova costruzione
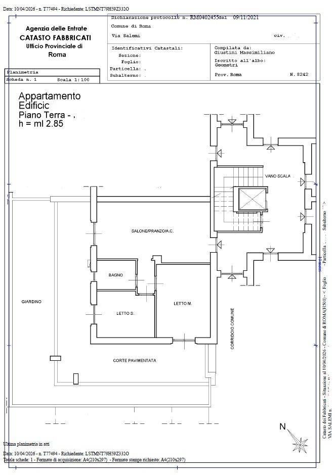
Casilina Due Leoni: Appartamento con giardino di nuova costruzione. Due Leoni adiacente Fermata Metro C e precisamente in via Salemi - disponiamo di un appartamento di recente costruzione, come nuovo, di Classe Energetica: A2. In deliziosa palazzina con generosi spazi esterni da vivere tutto l'anno, posto al piano terra con un ampio giardino in parte pavimentato di 100 mq. L'immobile si sviluppa con una buona metratura interna, oltre il comodo e vivibilissimo giardino, si presenta in perfetto stato di manutenzione poichè di recente costruzione e quindi abitabile da subito. Si compone di: Ingresso che conduce ad un ampia zona giorno impreziosita da un angolo cottura moderno e funzionale, completamente nuovo. Grande camera matrimoniale con porta finestra che conduce in giardino Seconda camera più piccola Servizio nuovo con finestra. Tutti gli ambienti affacciano nel giardino rettangolare di circa mq 100, provvisto di due ripostigli esterni, uno dei quali attrezzato come zona lavanderia. Dettagli e confort: Riscaldamento termoautonomo (con caldaia nuova) Produzione di acqua calda solare autonoma Predisposizione fotovoltaico con pannello da 1 kw Porta blindata (con difender magnetico) Videocitofono Climatizzazione in tutti gli ambienti tramite tre bocchette Zanzariere, grate, infissi con doppi vetri e serrande elettriche Cappotto termico Impianto di irrigazione automatico in tutto il giardino. Completa la proprietà un posto auto all'interno del comprensorio. Zona centrale, Casilina Due Leoni, limitrofa alla Fermata Metro C, a tutti i servizi di necessità, scuole di ogni ordine e grado, supermercati, trasporti pubblici. Riferimento Appartamento 46/206 Non esitare a contattarci per avere ulteriori informazioni e per fissare un appuntamento, puoi contattare anche tramite whatsapp il 348.39.59.461., oppure inviare una email all'indirizzo [email protected]
Dati principali
| Riferimento | 46/206 |
| Data annuncio | 14/04/2026 |
| Contratto | Vendita |
| Tipologia | Appartamento |
| Superficie | 84 m2 |
| Locali | 3 (2 camere da letto, 1 altro), 1 bagno, cucina angolo cottura |
| Piano | 4 totali |
| Tipo di costruzione | Signorile |
| Box auto | Assente |
| Numero posti auto | 1 |
| Arredamento | Assente |
Caratteristiche
Costi
| Prezzo | 195.000 € |
| Prezzo al m2 | 2.321 €/m2 |
| Spese condominiali | € 70,00/mese |
Efficienza energetica
| Anno costruzione | 2022 |
| Stato | Ottimo |
| Riscaldamento | Autonomo |
| Classe energetica | A2 |
Planimetrie
Indirizzo e mappa
via Salemi, 53/A, Roma
Calcolo mutuo
Prezzo di vendita:
Anticipo
20,00
Mutuo
80,00
Tasso: -+
Rata: 558 al mese
I risultati sono una stima indicativa basata sui dati inseriti e non costituiscono un’offerta finanziaria.
Inserzionista

RES Immobiliare
VIA DIEGO SIMONETTI 78, Roma
Mostra Telefono
Mostra Cellulare
Chiama
CONTATTA

