Villa via Moriondo, Cavaglià
€ 490.000PRESTIGIOSA TENUTA DEL '700
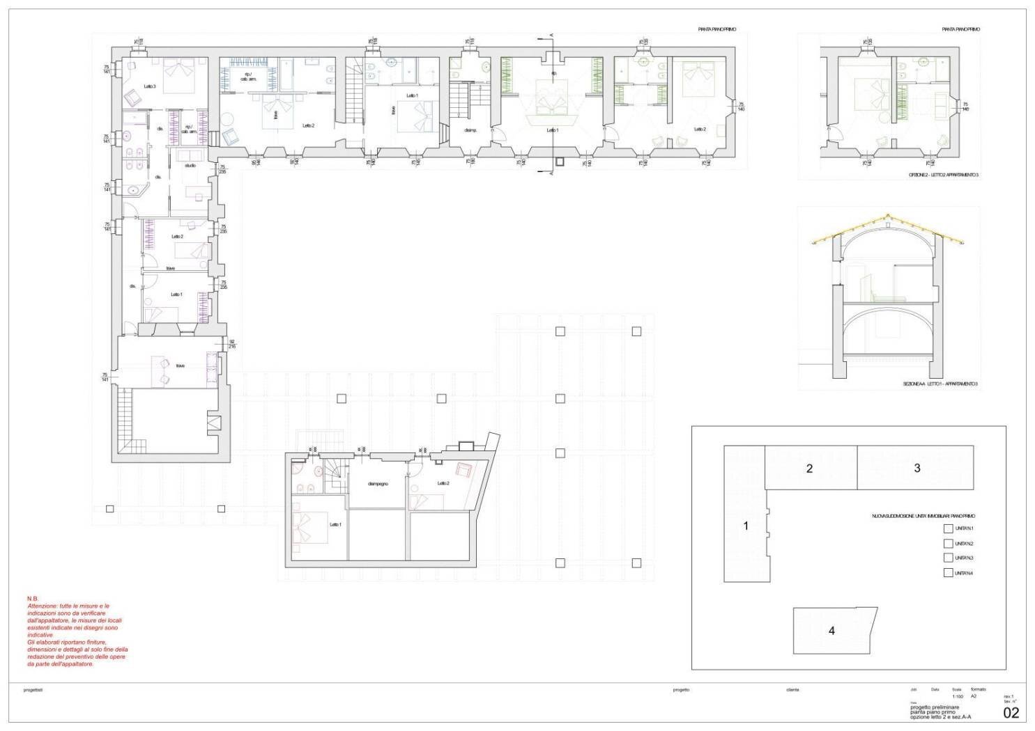
Situata nella tranquilla località di Cavaglià, a soli 50 minuti da Milano, questa maestosa Cascina del Settecento offre un’opportunità straordinaria per essere riportata agli antichi splendori, grazie a una ristrutturazione mirata che ne valorizzi il grande potenziale. Questa storica tenuta, oggetto di una raffinata ristrutturazione alla fine degli Anni '70 dagli architetti Salvati & Tresoldi, unisce l'eleganza storica con tocchi di architettura moderna. Pensata per accogliere fino a cinque famiglie nei fine settimana, conserva il fascino di un'epoca passata. L'immobile è in perfetto stato dal punto di vista strutturale, offrendo una rara opportunità per chi desidera personalizzare una proprietà di prestigio e valorizzarla ulteriormente. La tenuta, celebrata negli Anni '80 con un ampio servizio su "Casa Vogue", si estende su una superficie commerciale di circa 800 mq su due piani. Il progetto approvato prevede la suddivisione in quattro appartamenti indipendenti, perfetti per un frazionamento che attragga acquirenti alla ricerca di residenze esclusive. Il cuore della proprietà è il suo vasto parco di 16.400 mq, arricchito da piante storiche, una piscina, un campo da tennis e uno da bocce. Tre pozzi profondi 180 metri garantiscono una riserva d’acqua significativa, supportata da un sistema di irrigazione automatica. Completa la tenuta un secondo fabbricato con un appartamento, un garage e un'ampia area polivalente, oltre a una tettoia agricola. Questa Cascina rappresenta un’opportunità unica per investitori che desiderano ristrutturare, frazionare e rivendere una proprietà di grande valore, con la possibilità di ottenere un ritorno significativo grazie alla sua posizione privilegiata e al suo immenso potenziale. Punti di forza dell'immobile: - Natura - Prestigio - Investimento La linea di autobus più vicina è CAVAGLIÀ (VIA IVREA) (400 m). Stai pensando di vendere o affittare casa? Con RockAgent puoi vendere o affittare il tuo immobile assicurandoti un servizio eccellente, garantito da agenti immobiliari selezionati supportati da un team tecnico, marketing e legale di altissimo livello. Visita il sito RockAgent.it e ottieni una valutazione gratuita del tuo immobile.
Dati principali
| Riferimento | 146892 - 14/04/2026 |
| Data annuncio | 10/03/2026 |
| Contratto | Vendita |
| Tipologia | Villa |
| Superficie | 800 m2 |
| Locali | più di 5 (14 camere da letto, 10 altro), 4 bagni, cucina abitabile |
| Piano | 2 totali |
| Tipo di costruzione | Signorile |
| Numero di balconi | 1 |
| Box auto | Singolo |
| Arredamento | Assente |
Caratteristiche
Costi
| Prezzo | 490.000 € |
| Prezzo al m2 | 613 €/m2 |
Efficienza energetica
| Anno costruzione | 1700 |
| Stato | Da ristrutturare |
| Riscaldamento | Autonomo |
| Classe energetica | G |
| Indice di prestazione energetica (IPE) | 175 kWh/m2 anno |
Planimetrie
Indirizzo e mappa
via Moriondo, Cavaglià
Calcolo mutuo
Prezzo di vendita:
Anticipo
20,00
Mutuo
80,00
Tasso: -+
Rata: 1.401 al mese
I risultati sono una stima indicativa basata sui dati inseriti e non costituiscono un’offerta finanziaria.
Inserzionista

RockAgent
Via di Santa Costanza 21, Roma
Mostra Telefono
Chiama
CONTATTA

