Quadrilocale via Francesco Cilea, 26, Empoli
€ 164.000APPARTAMENTO INDIPENDENTE CON TERRAZZA
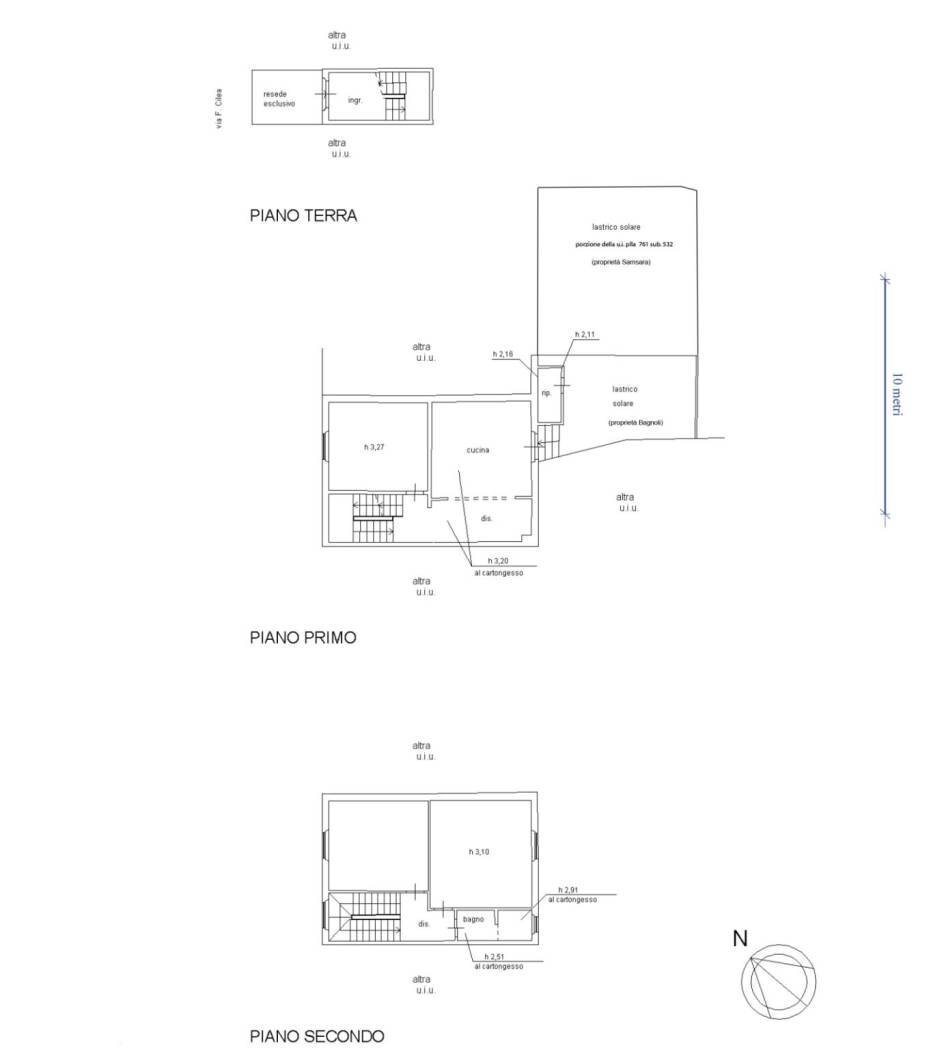
Proponiamo in vendita in esclusiva appartamento indipendente in Via Francesco Cilea ad Empoli, in un contesto residenziale tranquillo, ideale per chi cerca un ambiente sereno pur rimanendo vicino ai principali servizi e infrastrutture della città. L'immobile presenta un ingresso indipendente tramite resede esclusivo di circa mq.7 e si sviluppa su due piani, con una superficie commerciale di circa 123 metri quadrati. La composizione include soggiorno con angolo cottura, tre camere matrimoniali e un bagno. Un ampio terrazzo completa la proprietà, sul quale si trova un piccolo ripostiglio, offrendo uno spazio privato di circa 75 metri quadrati dove poter godere di momenti di relax. Possibilità di divisione in due appartamenti: uno al piano primo, l’altro al piano secondo; in questo caso l’appartamento al piano secondo potrebbe essere dotato di mansarda con bagno ed ampio terrazzo a tasca. A breve distanza dalla Tosco Romagnola e dall'uscita Empoli Est della Fi-Pi-Li, la proprietà si trova in una posizione strategica che consente di raggiungere facilmente supermercati, negozi, scuole e mezzi di trasporto pubblico. Empoli è una cittadina che coniuga la bellezza del paesaggio toscano con la praticità di una località ben collegata, rendendo questo immobile un'opportunità interessante per chi cerca una soluzione abitativa in questa area. Ottimo anche come investimento per ricezione turistica. Punti di forza dell'immobile: - Ottima posizione - Ampio terrazzo da 75 metri quadrati - Buona privacy Le linee autobus più vicine sono VIATROMAGNOLA23 SN (60 m), VIA T.ROMAGNOLA 26 e altre 17 fermate nel raggio di 490 m. Gli asili per bambini nelle vicinanze dell'immobile sono SC.MAT.NON STAT. SAN GIOVANNI EVANGELISTA (180 m) e SC.MAT.NON STAT.CENTRO ZEROSEI (230 m). Tra i servizi scolastici sono presenti gli istituti BUSONI (470 m) e VANGHETTI (490 m). È presente nelle vicinanze dell'immobile il servizio sanitario ECOMEDICA (370 m). Stai pensando di vendere o affittare casa? Con RockAgent puoi vendere o affittare il tuo immobile assicurandoti un servizio eccellente, garantito da agenti immobiliari selezionati supportati da un team tecnico, marketing e legale di altissimo livello. Visita il sito RockAgent.it e ottieni una valutazione gratuita del tuo immobile.
Dati principali
| Riferimento | 185906 - 14/04/2026 |
| Data annuncio | 27/03/2026 |
| Contratto | Vendita |
| Tipologia | Appartamento |
| Superficie | 123 m2 |
| Locali | 4 (3 camere da letto, 1 altro), 1 bagno, cucina angolo cottura |
| Piano | 2 totali |
| Tipo di costruzione | Popolare |
| Numero di terrazzi | 1 |
| Arredamento | Assente |
Costi
| Prezzo | 164.000 € |
| Prezzo al m2 | 1.333 €/m2 |
Efficienza energetica
| Anno costruzione | 1960 |
| Stato | Da ristrutturare |
| Riscaldamento | Autonomo |
| Classe energetica | F |
| Indice di prestazione energetica (IPE) | 175 kWh/m2 anno |
Planimetrie
Indirizzo e mappa
via Francesco Cilea, 26, Empoli
Calcolo mutuo
Prezzo di vendita:
Anticipo
20,00
Mutuo
80,00
Tasso: -+
Rata: 469 al mese
I risultati sono una stima indicativa basata sui dati inseriti e non costituiscono un’offerta finanziaria.
Inserzionista

RockAgent
Via di Santa Costanza 21, Roma
Mostra Telefono
Chiama
CONTATTA

