Casa indipendente via Cesare Battisti 20, Ploaghe
€ 159.000CASA CON CORTILE PRIVATO A PLOAGHE
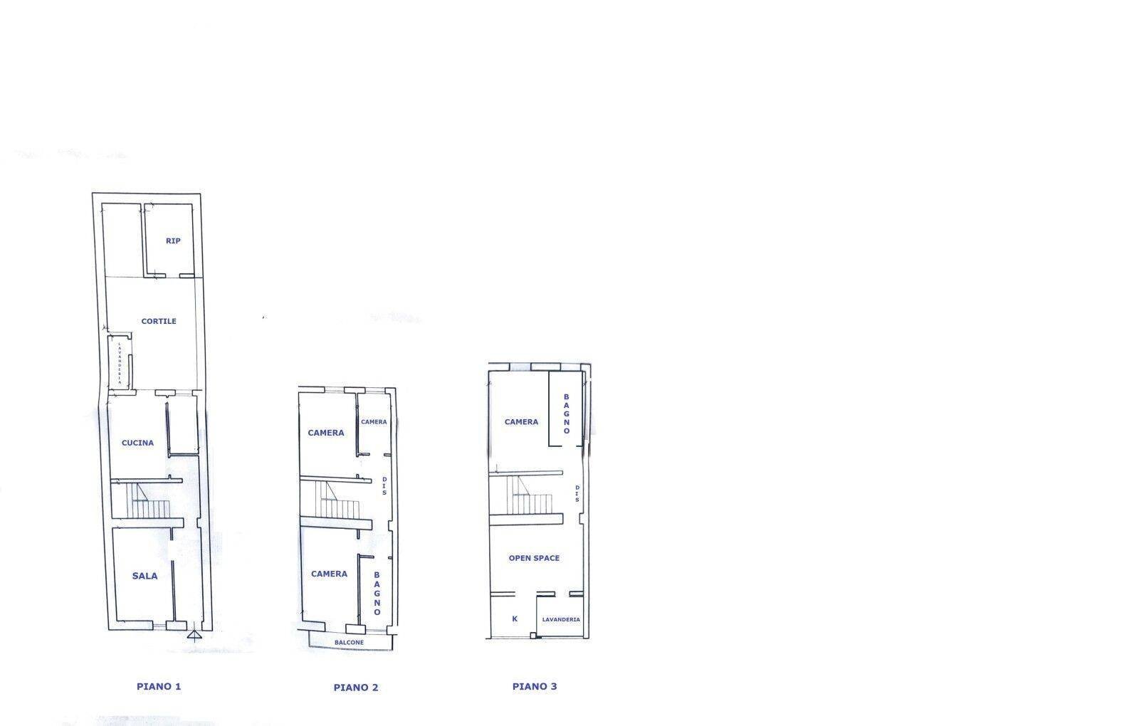
Situato nel comune di Ploaghe, questo terratetto unifamiliare si trova in Via Cesare Battisti, in una zona tranquilla e ben collegata. La posizione offre un contesto ideale per chi cerca una residenza in un ambiente sereno, con la comodità di avere i principali servizi a portata di mano. L'immobile si sviluppa su tre piani e offre una superficie commerciale di circa 172 metri quadrati. La suddivisione su tre livelli assicura una perfetta separazione tra zona giorno e zona notte, rendendo la casa funzionale e accogliente. Al piano terra, l'ingresso accoglie in una sala spaziosa ed un corridoio conduce alla cucina abitabile, da qui la portafinestra collega al cortile privato e ad una comoda depandance in stile rustico, ideale per trascorrere momenti conviviali e di relax. Al piano superiore, la proprietà dispone di tre camere da letto, ideali per famiglie numerose o per chi necessita di spazi aggiuntivi per studio o hobby. Sono presenti due bagni, che garantiscono comfort e praticità, 1 balcone e la lavanderia. Al terzo piano, la mansarda offre ulteriore spazio da personalizzare secondo le proprie necessità, si presenta come un vero e proprio appartamento con la zona giorno in open space, camera da letto, bagno completo e zona lavanderia. L'immobile è in buono stato e viene venduto non arredato, permettendo di personalizzare gli interni secondo i propri gusti. Gli infissi esterni sono in doppio vetro e legno, garantendo un buon isolamento termico e acustico. Il cortile privato offre un angolo esclusivo, ideale per momenti di relax all'aperto. L'accesso per disabili è garantito, rendendo la proprietà adatta a tutte le esigenze. L'immobile è libero e pronto per essere abitato, con due lati liberi paralleli che assicurano una buona luminosità. Sebbene il riscaldamento sia assente, le caratteristiche della casa offrono molteplici possibilità di personalizzazione per creare un ambiente confortevole e accogliente. Questa proprietà rappresenta un'opportunità interessante per chi cerca una casa spaziosa e personalizzabile in una zona tranquilla. Punti di forza dell'immobile: - Vicino ai principali servizi - Ampio e Luminoso - Spazio esterno privato Le linee autobus più vicine sono PLOAGHE VIA FAIS 3 (190 m) e PLOAGHE VIA PALAS DE MONTE 3 (260 m). Parlando di scuole, l'immobile è vicino all'istituto SCUOLA (390 m). Stai pensando di vendere o affittare casa? Con RockAgent puoi vendere o affittare il tuo immobile assicurandoti un servizio eccellente, garantito da agenti immobiliari selezionati supportati da un team tecnico, marketing e legale di altissimo livello. Visita il sito RockAgent.it e ottieni una valutazione gratuita del tuo immobile.
Dati principali
| Riferimento | 145238 - 14/04/2026 |
| Data annuncio | 10/03/2026 |
| Contratto | Vendita |
| Tipologia | Casa indipendente |
| Superficie | 172 m2 |
| Locali | più di 5 (4 camere da letto, 2 altro), 2 bagni, cucina abitabile |
| Piano | 3 totali |
| Tipo di costruzione | Media |
| Numero di balconi | 1 |
| Arredamento | Assente |
Caratteristiche
Costi
| Prezzo | 159.000 € |
| Prezzo al m2 | 924 €/m2 |
| Spese condominiali | € 1,00/mese |
Efficienza energetica
| Anno costruzione | 1985 |
| Stato | Buono |
| Riscaldamento | Assente |
| Classe energetica | F |
| Indice di prestazione energetica (IPE) | 175 kWh/m2 anno |
Planimetrie
Indirizzo e mappa
via Cesare Battisti 20, Ploaghe
Calcolo mutuo
Prezzo di vendita:
Anticipo
20,00
Mutuo
80,00
Tasso: -+
Rata: 455 al mese
I risultati sono una stima indicativa basata sui dati inseriti e non costituiscono un’offerta finanziaria.
Inserzionista

RockAgent
Via di Santa Costanza 21, Roma
Mostra Telefono
Chiama
CONTATTA

