Trilocale via Andromaca, 28, Anzio
€ 295.000Anzio Santa Teresa
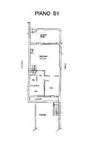
Anzio, nell'esclusiva zona di Santa Teresa, in Via Andromaca, proponiamo in vendita un appartamento di recentissima ristrutturazione. La casa è disposta su due livelli con entrata indipendente ed è così composta: al piano seminterrato abbiamo un ampio salone, una cucina, un bagno, un ripostiglio e una scala interna che conduce al piano superiore dove troviamo la zona notte con due camere da letto, una con cabina armadio e l'altra con studio separato, un bagno e un ampio balcone. La casa è dotata di impianto a soffitto caldo/freddo a pompa di calore, infissi in PVC doppio vetro, grate, zanzariere, due deumidificatori uno per piano con termoregolazione gestita da remoto. Completa la proprietà un giardino mattonato e un posto auto esterno di proprietà. Per maggiori informazioni chiedere in agenzia del Rif. 1373/A. La Tirreno Immobiliare, da oltre 30 anni nel settore, sempre al passo con i tempi, affronta con disinvoltura i mercati nazionali e internazionali stravolgendo i sistemi di comunicazione tradizionale proponendo gli immobili attraverso eventi straordinari, serate di gala, incontri sportivi, vernissage per avvenimenti pubblici, diventando protagonista del mercato, fino a realizzare un vero “Salotto Immobiliare”. Accoglienza, Determinazione, Innovazione sono le caratteristiche dominanti dell’azienda, un gruppo di professionisti pronti a risolvere qualsiasi problematica tecnica-legale. A. Il connubio tra l’accoglienza degli esperti e la sobrietà delle sedi operative, crea la giusta atmosfera della trattativa per il conseguimento del buon affare. D. la determinazione del Gruppo è la capacità di individuare la strategia vincente, non arrendersi ai segnali di difficoltà, essere irremovibili sull’obiettivo finale, ma flessibili nella scelta della strada giusta per raggiungerlo. L’attenzione continua ai mutamenti del mercato, all’esigenze dei clienti e dell’ambiente fa della TIRRENO IMMOBILIARE un’azienda innovativa ad alta tecnologia. Da casa potrai visitare immobili attraverso Tour Virtuali, fotografie HD, riprese con droni e sottoscrivere, attraverso il tuo telefonino, contratti con firma elettronica qualificata con effetto giuridico equivalente a quello di firma autografa. A.D.I. ti aspetta presso i nostri uffici www.agenziatirrenoimmobiliare.it - Tel 06.9830809
Dati principali
| Riferimento | 1373/A |
| Data annuncio | 14/04/2026 |
| Contratto | Vendita |
| Tipologia | Appartamento |
| Superficie | 132 m2 |
| Locali | 3 (2 camere da letto, 1 altro), 2 bagni, cucina abitabile |
| Piano | 3 totali |
| Tipo di costruzione | Signorile |
| Numero di terrazzi | 1 |
| Numero di balconi | 1 |
| Box auto | Assente |
| Numero posti auto | 1 |
| Arredamento | Assente |
Caratteristiche
Costi
| Prezzo | 295.000 € |
| Prezzo al m2 | 2.235 €/m2 |
| Spese condominiali | € 50,00/mese |
Efficienza energetica
| Anno costruzione | 1984 |
| Stato | Ottimo |
| Riscaldamento | Autonomo |
| Classe energetica | D |
| Indice di prestazione energetica (IPE) | 175 kWh/m2 anno |
Planimetrie
Indirizzo e mappa
via Andromaca, 28, Anzio
Calcolo mutuo
Prezzo di vendita:
Anticipo
20,00
Mutuo
80,00
Tasso: -+
Rata: 844 al mese
I risultati sono una stima indicativa basata sui dati inseriti e non costituiscono un’offerta finanziaria.
Inserzionista

Tirreno Immobiliare
Piazza Pia 24, Anzio
Mostra Telefono
Chiama
CONTATTA

