Appartamento Località Casali Lungo Statale, Castiglione Chiavarese
€ 115.0005 locali in vendita
Castiglione Chiavarese - Località Casali
Situato in una tipica casa bifamiliare, l’appartamento di 115 mq gode di un ingresso indipendente.
L'accesso è pedonale tramite due caratteristiche scalinate esterne che conducono all'abitazione, dove veniamo accolti da un corridoio di disimpegno che collega armoniosamente tutti gli ambienti.
L'immobile vanta una metratura generosa e una distribuzione classica, ideale per una famiglia o per chi desidera ampi spazi:
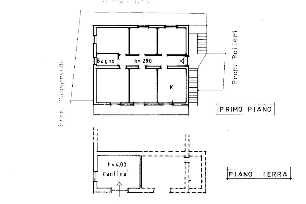
da zona giorno composta da una cucina abitabile spaziosa e un soggiorno accogliente, da zona notte che vanta ben tre camere da letto, perfette per ospitare figli, ospiti o creare uno studio professionale e servizi, bagno e una pratica zona lavanderia separata.
Sebbene l'interno si presenti nel suo stato originale dell'epoca di costruzione — offrendo così l'opportunità di una personalizzazione totale secondo il proprio gusto — le condizioni esterne della casa sono buone. Attualmente il calore è garantito da una tradizionale stufa a legna, che conferisce un fascino rustico e genuino agli ambienti.
Il vero punto di forza sono gli spazi all'aperto:
è la splendida terrazza con accesso diretto dalla cucina e da due camere, ideale per colazioni al sole con vista aperta sulla vallata;
dalla corte privata, accessibile dalla zona lavanderia, perfetta per momenti di relax o per i propri animali domestici;
e da un'ampia cantina di circa 25mq già dotata di acqua, utilissima come laboratorio o deposito posizionata al piano terra.
L'esposizione è eccellente, rendendo la casa estremamente luminosa durante tutto il giorno. La posizione è strategica: estremamente comoda alla strada statale e alla fermata dell’autobus, facilitando gli spostamenti verso la costa o i centri vicini.
Il plus: Per chi desidera un po' di 'verde' in più, vi è la possibilità di acquistare separatamente due fasce di terreno adiacenti all'immobile, ideali per un orto o un giardino privato.
Situato in una tipica casa bifamiliare, l’appartamento di 115 mq gode di un ingresso indipendente.
L'accesso è pedonale tramite due caratteristiche scalinate esterne che conducono all'abitazione, dove veniamo accolti da un corridoio di disimpegno che collega armoniosamente tutti gli ambienti.
L'immobile vanta una metratura generosa e una distribuzione classica, ideale per una famiglia o per chi desidera ampi spazi:
da zona giorno composta da una cucina abitabile spaziosa e un soggiorno accogliente, da zona notte che vanta ben tre camere da letto, perfette per ospitare figli, ospiti o creare uno studio professionale e servizi, bagno e una pratica zona lavanderia separata.
Sebbene l'interno si presenti nel suo stato originale dell'epoca di costruzione — offrendo così l'opportunità di una personalizzazione totale secondo il proprio gusto — le condizioni esterne della casa sono buone. Attualmente il calore è garantito da una tradizionale stufa a legna, che conferisce un fascino rustico e genuino agli ambienti.
Il vero punto di forza sono gli spazi all'aperto:
è la splendida terrazza con accesso diretto dalla cucina e da due camere, ideale per colazioni al sole con vista aperta sulla vallata;
dalla corte privata, accessibile dalla zona lavanderia, perfetta per momenti di relax o per i propri animali domestici;
e da un'ampia cantina di circa 25mq già dotata di acqua, utilissima come laboratorio o deposito posizionata al piano terra.
L'esposizione è eccellente, rendendo la casa estremamente luminosa durante tutto il giorno. La posizione è strategica: estremamente comoda alla strada statale e alla fermata dell’autobus, facilitando gli spostamenti verso la costa o i centri vicini.
Il plus: Per chi desidera un po' di 'verde' in più, vi è la possibilità di acquistare separatamente due fasce di terreno adiacenti all'immobile, ideali per un orto o un giardino privato.
Dati principali
| Riferimento | 61200429 |
| Data annuncio | 15/04/2026 |
| Contratto | Vendita |
| Tipologia | Appartamento |
| Superficie | 115 m2 |
| Locali | 5 (5 altro), 1 bagno |
| Piano | 1 di 1 totali |
Costi
| Prezzo | 115.000 € |
| Prezzo al m2 | 1.000 €/m2 |
Efficienza energetica
| Anno costruzione | 1960 |
| Riscaldamento | Autonomo |
| Tipo Alimentazione Riscaldamento | Altro |
| Classe energetica | G |
| Indice di prestazione energetica (EP GL, NREN) | 139.8 kWh/m3 anno |
Planimetrie
Indirizzo e mappa
Località Casali Lungo Statale, Castiglione Chiavarese
Calcolo mutuo
Prezzo di vendita:
Anticipo
20,00
Mutuo
80,00
Tasso: -+
Rata: 329 al mese
I risultati sono una stima indicativa basata sui dati inseriti e non costituiscono un’offerta finanziaria.
Inserzionista
Chiama
CONTATTA

