Villa VIA GOFFREDO MAMELI, 20, Villasanta
€ 740.000Villasanta capannone con abitazione in vendita
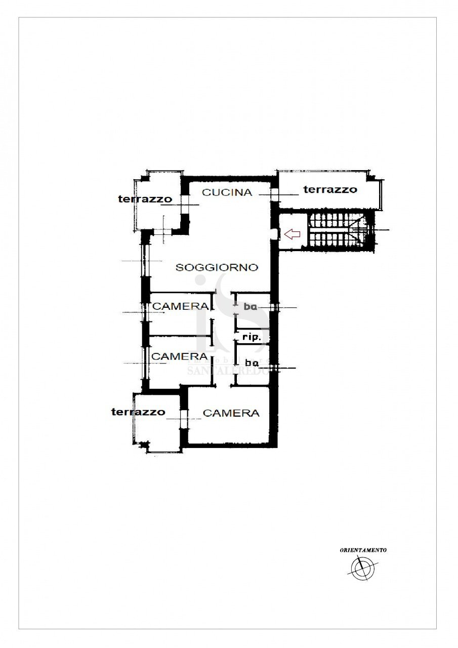
A Villasanta, in via Mameli 20, proponiamo in vendita esclusiva un complesso immobiliare composto da capannone commerciale in categoria D/8 e abitazione indipendente in A/7, completamente ristrutturata nel 2011. L'immobile sorge su un'area di proprietà di ampia metratura e combina in modo equilibrato spazi produttivi e residenziali. - IL CAPANNONE Il capannone con uffici di circa 340 mq, con altezza interna di 6 metri, si presenta in ottime condizioni manutentive e risponde alle esigenze di chi necessita di spazi di lavoro, deposito o attività commerciale con eccellente accessibilità e visibilità. L'immobile dispone inoltre di un'area esterna di circa 500 mq, direttamente asservita al capannone, ideale per la movimentazione dei mezzi e le operazioni di carico e scarico. L'accesso automatizzato tramite cancello elettrico garantisce praticità e sicurezza, rendendo l'intera zona operativa funzionale e facilmente fruibile. - LA RESIDENZA Adiacente, la residenza principale si sviluppa al primo piano per una superficie di 140 mq, articolata in un ampio soggiorno con cucina a vista, tre camere da letto e due bagni. Spazi luminosi e ben distribuiti, arricchiti da tre terrazze per 50 mq complessivi, che aggiungono apertura e comfort alla zona abitativa. L'abitazione è valorizzata da un giardino di circa 350 mq, disposto a "L". Uno spazio riservato, interno e completamente piantumato, che offre un contesto verde ordinato e piacevole, pensato come naturale prolungamento dell'abitazione. Il box doppio, collocato al piano terra, si estende per 46 mq e offre comodo accesso carrabile con ampia area di manovra. Uno spazio pratico e ben organizzato, adatto sia al parcheggio di due veicoli sia a esigenze di deposito o supporto logistico. - I DETTAGLI Costruito nel 1992 e oggetto di una riqualificazione nel 2011, il complesso si presenta in condizioni eccellenti, pronto per essere utilizzato senza ulteriori interventi. Una proposta flessibile e di valore, pensata per imprenditori e professionisti che vogliono unire lavoro e rappresentanza. Siamo a disposizione per accompagnarla nella valutazione di questa proprietà e, se necessario, nella gestione della vendita del suo attuale immobile, con un servizio completo e riservato. Per ricevere maggiori informazioni o concordare una visita, può contattarci direttamente 0396908137 | Immobiliare Santalfredo.
Dati principali
| Riferimento | HOME 3642_2 |
| Data annuncio | 14/04/2026 |
| Contratto | Vendita |
| Tipologia | Villa |
| Superficie | 480 m2 |
| Locali | 4 (4 camere da letto), 3 bagni |
| Piano | 2 totali |
Costi
| Prezzo | 740.000 € |
| Prezzo al m2 | 1.542 €/m2 |
Efficienza energetica
| Anno costruzione | 1992 |
| Classe energetica | G |
Planimetrie
Indirizzo e mappa
VIA GOFFREDO MAMELI, 20, Villasanta
Calcolo mutuo
Prezzo di vendita:
Anticipo
20,00
Mutuo
80,00
Tasso: -+
Rata: 2.116 al mese
I risultati sono una stima indicativa basata sui dati inseriti e non costituiscono un’offerta finanziaria.
Inserzionista

IMMOBILIARE SANTALFREDO
Via Remo Brambilla 7, Concorezzo
Mostra Telefono
Chiama
CONTATTA

