Quadrilocale Via Ungheria, Firenze
€ 460.000Appartamento - Quadrilocale a Gavinana, Firenze
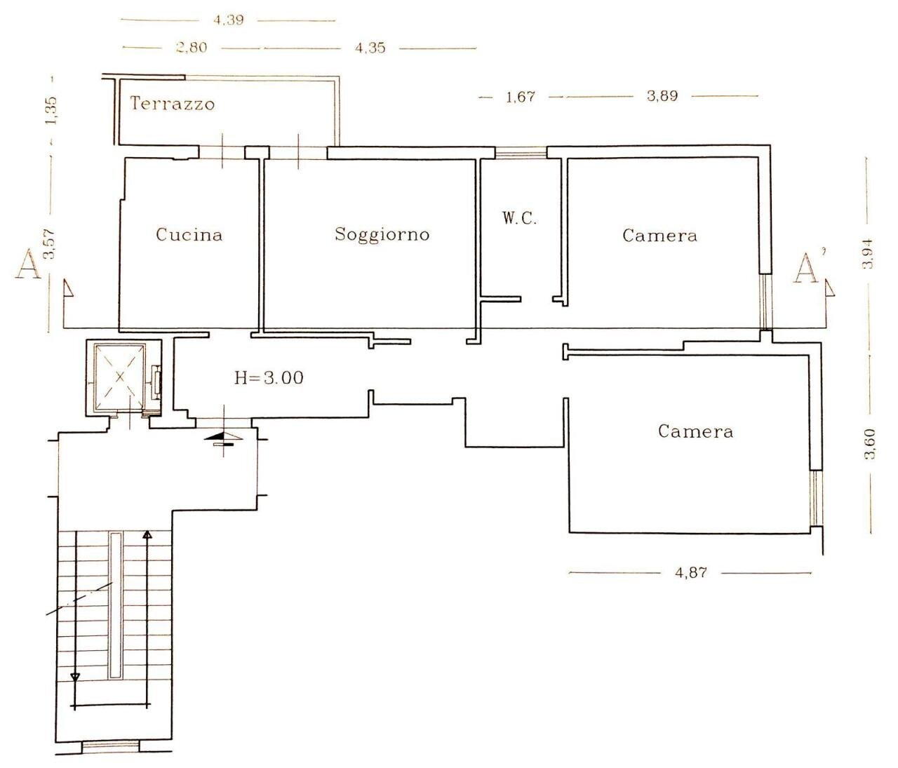
a26030 - Firenze/Gavinana - Via Ungheria In piacevole contesto residenziale, nei pressi di tutti i principali servizi a pochi minuti dalla futura fermata della tramvia e da Piazza Bartali, IMMOBILIARE BELVEDERE propone in vendita ampio e luminoso appartamento (98 mq ca) situato al terzo piano dotato di ascensore composto da: ingresso, soggiorno, cucina abitabile, due camere da letto matrimoniali con servizio finestrato oltre a piacevole balcone. L'immobile necessita di qualche opera di ristrutturazione, gode di doppia esposizione con piacevoli affacci ed è dotato di aria condizionata ed infissi in legno con doppi vetri. Termocentralizzato, classe energetica C.
Dati principali
| Riferimento | a26030 |
| Data annuncio | 29/01/2026 |
| Contratto | Vendita |
| Tipologia | Appartamento |
| Superficie | 98 m2 |
| Locali | 4 (2 camere da letto, 2 altro), 1 bagno |
| Piano | 1 totali |
| Numero di balconi | 1 |
Costi
| Prezzo | 460.000 € |
| Prezzo al m2 | 4.694 €/m2 |
| Spese condominiali | € 200,00/mese |
Efficienza energetica
| Anno costruzione | 1970 |
| Classe energetica | C |
Planimetrie
Indirizzo e mappa
Via Ungheria, Firenze
Calcolo mutuo
Prezzo di vendita:
Anticipo
20,00
Mutuo
80,00
Tasso: -+
Rata: 1.316 al mese
I risultati sono una stima indicativa basata sui dati inseriti e non costituiscono un’offerta finanziaria.
Inserzionista
Immobiliare Belvedere
Via Il Prato 61r, Firenze
Mostra Telefono
Chiama
CONTATTA

