Appartamento via Luigi Arnaldo Vassallo, Genova (zona Albaro)
€ 845.000LIDO SOVRASTANTE MQ 230 BALCONATE - TERRAZZO - CANTINA
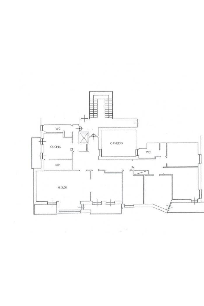
A pochi passi da corso Italia, in posizione riservata e tranquilla, soleggiati mq 230 (volendo divisibili) composti da doppi ingressi, salone doppio, sala da pranzo, cucina abitabile con ampia dispensa, quattro camere da letto, doppi servizi, 4 BALCONI vivibili, oltre porzione di TERRAZZO sovrastante. Situato al 4° e penultimo piano di un palazzo di moderna costruzione dotato di ascensore, l'immobile gode di un'ottima esposizione soleggiata e panoramica con vista fino al mare. Completa la proprietà una cantina. Possibilità BOX in acquisto a parte. Le informazioni contenute in questo annuncio sono puramente indicative e non costituiscono vincolo contrattuale Per informazioni e appuntamenti chiamare HOME GALLERY tel. 010/8609640 - email: - sito: homegalery. io- Sede di QUINTO in Via A. Gianelli 103-105 r. Genova - sede di ALBARO in Via Bocchella 4 - sede di STURLA in Via Sturla 10 - sede di LAVAGNA nel Porticciolo.
Dati principali
| Riferimento | 11 - VASSALLO |
| Data annuncio | 13/04/2026 |
| Contratto | Vendita |
| Tipologia | Appartamento |
| Superficie | 230 m2 |
| Locali | più di 5 (4 camere da letto, 3 altro), 2 bagni, cucina abitabile |
| Piano | 4 di 5 totali |
| Tipo di costruzione | Signorile |
| Numero di terrazzi | 1 |
| Numero di balconi | 1 |
| Arredamento | Assente |
Caratteristiche
Costi
| Prezzo | 845.000 € |
| Prezzo al m2 | 3.674 €/m2 |
| Spese condominiali | € 300,00/mese |
Efficienza energetica
| Anno costruzione | 1950 |
| Stato | Da ristrutturare |
| Riscaldamento | Centralizzato |
| Classe energetica | F |
| Indice di prestazione energetica (IPE) | 175 kWh/m2 anno |
Planimetrie
Indirizzo e mappa
via Luigi Arnaldo Vassallo, Genova - quartiere Albaro
Calcolo mutuo
Prezzo di vendita:
Anticipo
20,00
Mutuo
80,00
Tasso: -+
Rata: 2.417 al mese
I risultati sono una stima indicativa basata sui dati inseriti e non costituiscono un’offerta finanziaria.
Inserzionista

Home Gallery
via Angelo Gianelli 103-105 r, Genova
Mostra Telefono
Chiama
CONTATTA

