Villa Viale Di Villa Grazioli, Roma
€ 3.800.000
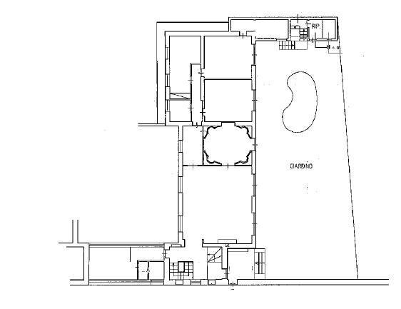
Parioli Pinciano Viale di Villa Grazioli Situata in una delle strade più riservate ed eleganti dei Parioli proponiamo la vendita di una villa unifamiliare indipendente di mq 350inserita in un contesto urbano dinamico e prestigioso. Situata a pochi passi dallAmbasciata Cinese, la proprietà gode di un contesto di altissima sicurezza e rappresentanza. La dimora si sviluppa su due livelli piano terra, piano seminterrato completa la presenza un terrazzo sovrastante. Il terrazzo sovrastante è una risorsa volumetrica preziosa e con la installazione di strutture metalliche leggere pergolati bioclimatici e schermature con piante rampicanti (cime glicine e gelsomino) può creare uno spazio per cene estive o un salotto sotto le stelle. Laccesso al piano terra è segnato da una scala in legno che conduce alla zona di rappresentanza un ambiente dominato da un camino storico e da vetrate che affacciano sulla piscina e sul giardino. La sala da pranzo ovale conferisce una atmosfera senza tempo. La zona notte ospita tre camere da letto e due servizi. La camera padronale è en-suite dotata di spogliatoio privato. La zona operativa è separata e troviamo un generosa cucina, una dispensa, la zona lavanderia e stireria. Il piano seminterrato è distribuito da uno zona studio e zona funzionale destinata al personale di servizio. L'accesso alla dimora avviene unicamente tramite un vialetto pedonale. Una proprietà per chi desidera progettare una residenza su misura che unisca il fascino del design depoca alla modernità di unoasi urbana con piscina. Il progetto architettonico e i render sono sviluppati in collaborazione con Cuspide Construction, impresa di costruzioni riconosciuta per l'eccellenza nella realizzazione di progetti residenziali di alto profilo.
Dati principali
| Riferimento | CBI100-1562-290825 |
| Data annuncio | 15/04/2026 |
| Contratto | Vendita |
| Tipologia | Villa |
| Superficie | 350 m2 |
| Locali | più di 5 (4 camere da letto, 5 altro), 4 bagni, cucina abitabile |
| Piano | Su più livelli, 2 totali |
| Tipo di costruzione | Signorile |
| Occupato | Libero |
| Box auto | Assente |
| Arredamento | Assente |
Caratteristiche
Costi
| Prezzo | 3.800.000 € |
| Prezzo al m2 | 10.857 €/m2 |
Efficienza energetica
| Stato | Da ristrutturare |
| Riscaldamento | Autonomo |
| Tipo Alimentazione Riscaldamento | Gpl |
| Classe energetica | G |
| Indice di prestazione energetica (IPE) | 175 kWh/m2 anno |
Planimetrie
Virtual tour
Indirizzo e mappa
Viale Di Villa Grazioli, Roma
Annuncio senza mappa,
prova a chiedere la posizione all'inserzionista
prova a chiedere la posizione all'inserzionista
Calcolo mutuo
Prezzo di vendita:
Anticipo
20,00
Mutuo
80,00
Tasso: -+
Rata: 10.868 al mese
I risultati sono una stima indicativa basata sui dati inseriti e non costituiscono un’offerta finanziaria.
Inserzionista
Chiama
CONTATTA


