Bilocale Via Monte Emilius, Quart
€ 119.000Bilocale in vendita
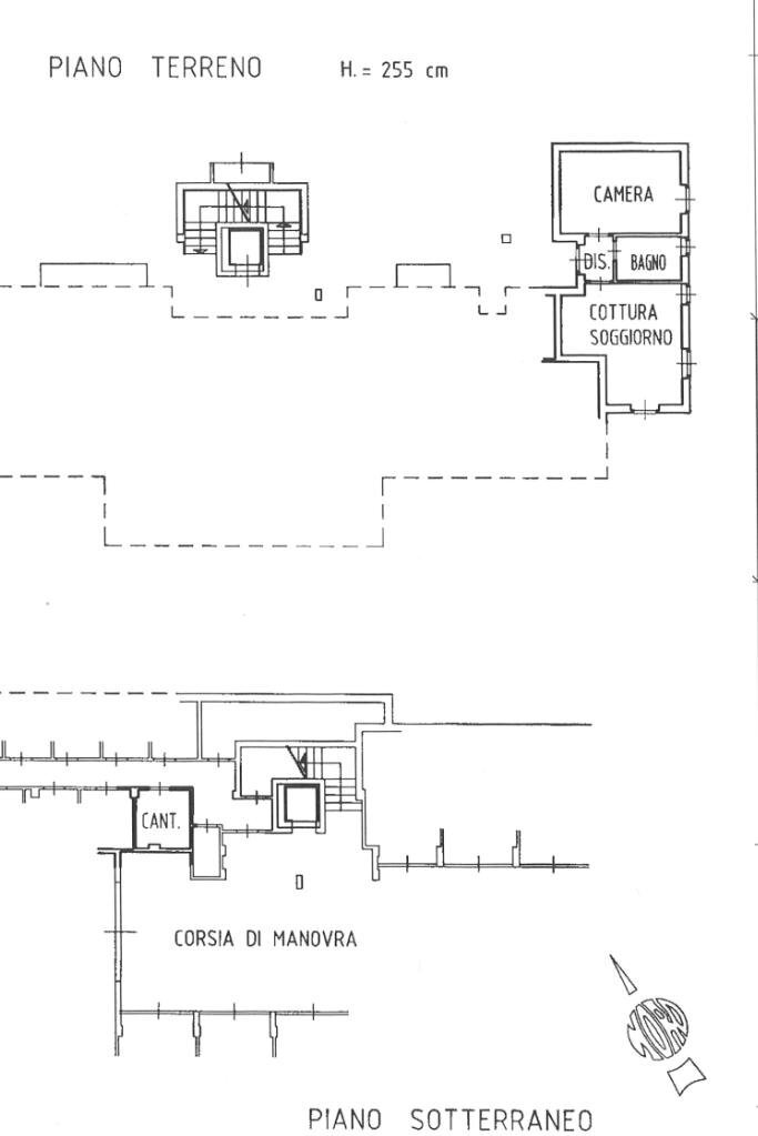
A Quart, Via Monte Emilius, l'alloggio è al piano terra con ingresso indipendente in un contesto costruito nel 2008. Il soggiorno è unito all'angolo cottura con l'uscita sull'area verde di circa 100 mq a sud-est. La zona notte ospita una camera matrimoniale con bagno finestrato. Completa l'unità il box auto, il posto auto e la cantina. Il riscaldmaento è semiautonomo a gpl e stufa a pellet.
Dati principali
| Riferimento | 61204959 |
| Data annuncio | 15/04/2026 |
| Contratto | Vendita |
| Tipologia | Appartamento |
| Superficie | 47 m2 |
| Locali | 2 (1 camera da letto, 1 altro), 1 bagno |
| Piano | 2 totali |
| Numero posti auto | 1 |
Costi
| Prezzo | 119.000 € |
| Prezzo al m2 | 2.532 €/m2 |
| Spese condominiali | € 75,00/mese |
Efficienza energetica
| Anno costruzione | 2008 |
| Riscaldamento | Centralizzato |
| Tipo Alimentazione Riscaldamento | Gpl |
| Classe energetica | G |
| Indice di prestazione energetica (IPE) | - |
Planimetrie
Indirizzo e mappa
Via Monte Emilius, Quart
Calcolo mutuo
Prezzo di vendita:
Anticipo
20,00
Mutuo
80,00
Tasso: -+
Rata: 340 al mese
I risultati sono una stima indicativa basata sui dati inseriti e non costituiscono un’offerta finanziaria.
Inserzionista
Chiama
CONTATTA

