Trilocale Piazza Walter Gropius, Santarcangelo di Romagna
€ 245.000Trilocale in vendita
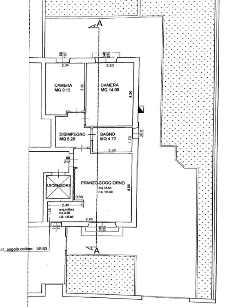
SAN VITO: In un tranquillo contesto residenziale dei primi anni 2000, servito da ascensore, proponiamo in vendita appartamento al piano terra su un unico livello con corte e garage di proprietà, ideale per chi cerca comodità e vivibilità.
L’ingresso si apre su un luminoso soggiorno con angolo cottura, impreziosito da una portafinestra che conduce direttamente alla corte privata: lo spazio perfetto per rilassarsi all’aperto e godersi momenti di tranquillità.
La zona notte, ben distribuita e separata da disimpegno, comprende: una camera matrimoniale con accesso diretto alla corte ed una camera singola versatile. Conclude il piano un bagno finestrato con doccia, pensato per garantire comfort e funzionalità.
A completare la proprietà, al piano interrato, un garage privato, comodamente raggiungibile anche tramite rampa esterna.
Il giardino rappresenta un valore aggiunto, perfetto per chi desidera uno sfogo esterno riservato.
Ideale per coppie, piccoli nuclei familiari o per chi cerca una soluzione pratica con spazio esterno privato, in una posizione strategica immersa nella tranquillità e a breve distanza da tutti i principali servizi.
Per qualsiasi informazione potete contattarci o mandare un messaggio WhatsApp al nostro numero di telefono 05411416682 oppure passare a trovarci in ufficio, ci troviamo in via Ugo Braschi, 57, a Santarcangelo di Romagna pronti ad accogliervi!
L’ingresso si apre su un luminoso soggiorno con angolo cottura, impreziosito da una portafinestra che conduce direttamente alla corte privata: lo spazio perfetto per rilassarsi all’aperto e godersi momenti di tranquillità.
La zona notte, ben distribuita e separata da disimpegno, comprende: una camera matrimoniale con accesso diretto alla corte ed una camera singola versatile. Conclude il piano un bagno finestrato con doccia, pensato per garantire comfort e funzionalità.
A completare la proprietà, al piano interrato, un garage privato, comodamente raggiungibile anche tramite rampa esterna.
Il giardino rappresenta un valore aggiunto, perfetto per chi desidera uno sfogo esterno riservato.
Ideale per coppie, piccoli nuclei familiari o per chi cerca una soluzione pratica con spazio esterno privato, in una posizione strategica immersa nella tranquillità e a breve distanza da tutti i principali servizi.
Per qualsiasi informazione potete contattarci o mandare un messaggio WhatsApp al nostro numero di telefono 05411416682 oppure passare a trovarci in ufficio, ci troviamo in via Ugo Braschi, 57, a Santarcangelo di Romagna pronti ad accogliervi!
Dati principali
| Riferimento | 61200120 |
| Data annuncio | 14/04/2026 |
| Contratto | Vendita |
| Tipologia | Appartamento |
| Superficie | 100 m2 |
| Locali | 3 (3 altro), 1 bagno |
| Piano | 4 totali |
| Numero posti auto | 1 |
Costi
| Prezzo | 245.000 € |
| Prezzo al m2 | 2.450 €/m2 |
Efficienza energetica
| Anno costruzione | 2000 |
| Riscaldamento | Autonomo |
| Tipo Alimentazione Riscaldamento | Metano |
| Classe energetica | Immobile esente da certificazione energetica |
Planimetrie
Indirizzo e mappa
Piazza Walter Gropius, Santarcangelo di Romagna
Calcolo mutuo
Prezzo di vendita:
Anticipo
20,00
Mutuo
80,00
Tasso: -+
Rata: 701 al mese
I risultati sono una stima indicativa basata sui dati inseriti e non costituiscono un’offerta finanziaria.
Inserzionista
Chiama
CONTATTA

