Trilocale Via 11 Settembre, Calderara di Reno
€ 180.000Trilocale in vendita
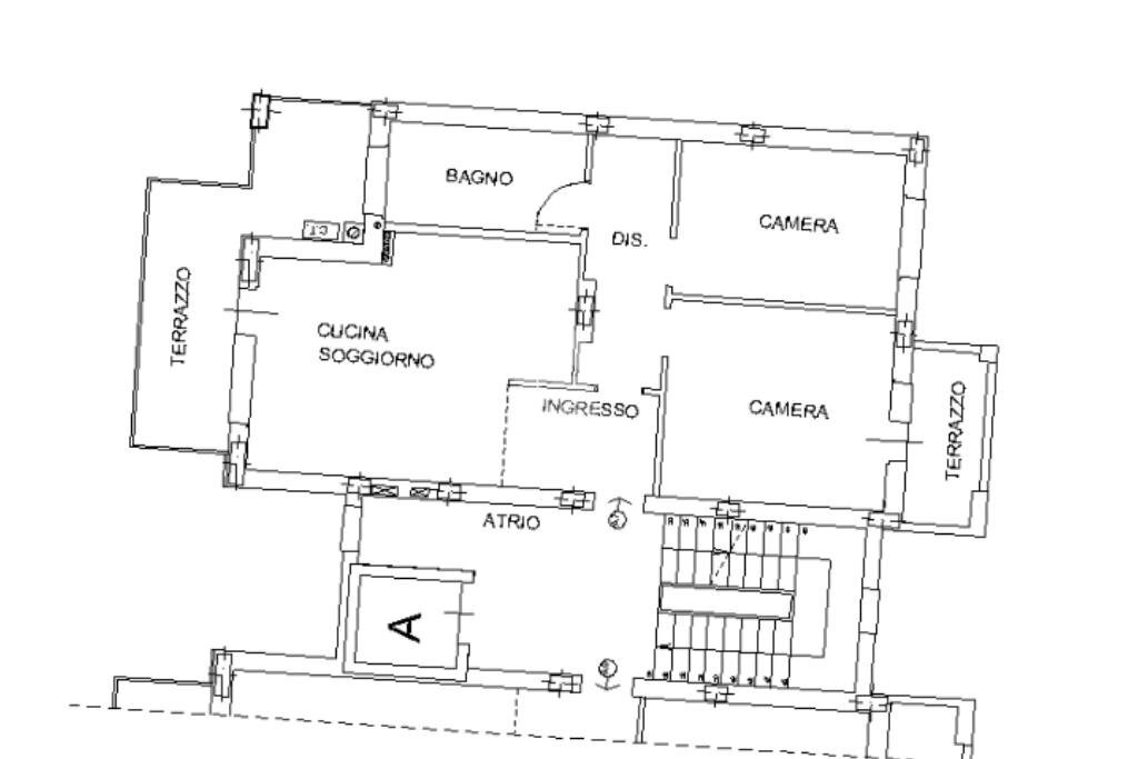
CALDERARA DI RENO: In zona tranquilla di Calderara di Reno, proponiamo questo trilocale A REDDITO di 84 mq al terzo piano con ascensore beneficiario del superbonus 110%.
L'immobile si compone di uno spazioso soggiorno con angolo cottura, una terrazza abitabile che affaccia sul giardino privato e sulla natura circostante regalando una vista panoramca unica. Un comodo disimpegno separa la zona notte composta da una camera matrimoniale con piccolo balcone, una camera singola e un bagno finestrato con doccia.
Il riscaldamento è autonomo generato da caldaia a condensazione, diffuso da termosifoni in ghisa e isolato da infissi in doppio vetro pvc con zanzariere. Anche il condizionamento è autonomo prodotto da split caldo/freddo.
L'immobile è dotato di porta blindata e videocitofono.
Completa l'abitazione un posto auto di proprietà.
Per fissare una visita all'immobile o per approfondire i passaggi volti al cambio abitazione, come una VALUTAZIONE del suo immobile o una CONSULENZA DI MUTUO, ci contatti allo 051/2812158. Siamo disponibili presso la nostra sede in Via Matteotti n°2/A a Calderara di Reno,dalle 09:00 alle 13:00 e dalle 15:00 alle 20:00.
Ogni agenzia ha un proprio titolare ed è autonoma - Le presenti informazioni non costituiscono elemento contrattuale.
L'immobile si compone di uno spazioso soggiorno con angolo cottura, una terrazza abitabile che affaccia sul giardino privato e sulla natura circostante regalando una vista panoramca unica. Un comodo disimpegno separa la zona notte composta da una camera matrimoniale con piccolo balcone, una camera singola e un bagno finestrato con doccia.
Il riscaldamento è autonomo generato da caldaia a condensazione, diffuso da termosifoni in ghisa e isolato da infissi in doppio vetro pvc con zanzariere. Anche il condizionamento è autonomo prodotto da split caldo/freddo.
L'immobile è dotato di porta blindata e videocitofono.
Completa l'abitazione un posto auto di proprietà.
Per fissare una visita all'immobile o per approfondire i passaggi volti al cambio abitazione, come una VALUTAZIONE del suo immobile o una CONSULENZA DI MUTUO, ci contatti allo 051/2812158. Siamo disponibili presso la nostra sede in Via Matteotti n°2/A a Calderara di Reno,dalle 09:00 alle 13:00 e dalle 15:00 alle 20:00.
Ogni agenzia ha un proprio titolare ed è autonoma - Le presenti informazioni non costituiscono elemento contrattuale.
Dati principali
| Riferimento | 61205430 |
| Data annuncio | 14/04/2026 |
| Contratto | Vendita |
| Tipologia | Appartamento |
| Superficie | 84 m2 |
| Locali | 3 (3 altro), 1 bagno |
| Piano | 3 di 5 totali |
| Numero posti auto | 1 |
Costi
| Prezzo | 180.000 € |
| Prezzo al m2 | 2.143 €/m2 |
| Spese condominiali | € 83,00/mese |
Efficienza energetica
| Anno costruzione | 1980 |
| Riscaldamento | Autonomo |
| Tipo Alimentazione Riscaldamento | Metano |
| Classe energetica | E |
| Indice di prestazione energetica (EP GL, REN) | 202.18 kWh/m3 anno |
| Indice di prestazione energetica (EP GL, NREN) | 202.18 kWh/m3 anno |
Planimetrie
Indirizzo e mappa
Via 11 Settembre, Calderara di Reno
Calcolo mutuo
Prezzo di vendita:
Anticipo
20,00
Mutuo
80,00
Tasso: -+
Rata: 515 al mese
I risultati sono una stima indicativa basata sui dati inseriti e non costituiscono un’offerta finanziaria.
Inserzionista
Chiama
CONTATTA

