Terratetto - Terracielo Magliano Alpi
€ 99.000Casa con giardino
In centro paese, casa cielo/terra con terrazzo e giardino privato.
In posizione comoda a tutti i servizi, proponiamo casa elevata su due livelli con spazi ampi e versatili.
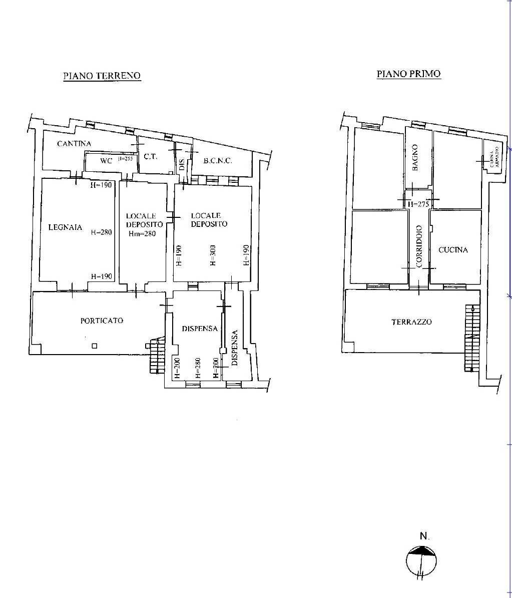
Al piano terra si trovano una comoda autorimessa doppia, una grande dispensa, un locale attualmente ad uso cucina, bagno, cantina e magazzino, ideali come spazi accessori o per eventuali personalizzazioni.
Al piano primo si sviluppa l’abitazione principale con ampio terrazzo, composta da ingresso, cucina abitabile, luminosa sala con camino canalizzato che distribuisce il calore in tutte le stanze, due camere da letto e bagno.
Completa la proprietà il giardino privato, perfetto per momenti di relax all’aperto, per famiglie o per chi desidera uno spazio verde in pieno centro.
Soluzione ideale per chi cerca indipendenza, spazi generosi e la comodità del centro paese.
In posizione comoda a tutti i servizi, proponiamo casa elevata su due livelli con spazi ampi e versatili.
Al piano terra si trovano una comoda autorimessa doppia, una grande dispensa, un locale attualmente ad uso cucina, bagno, cantina e magazzino, ideali come spazi accessori o per eventuali personalizzazioni.
Al piano primo si sviluppa l’abitazione principale con ampio terrazzo, composta da ingresso, cucina abitabile, luminosa sala con camino canalizzato che distribuisce il calore in tutte le stanze, due camere da letto e bagno.
Completa la proprietà il giardino privato, perfetto per momenti di relax all’aperto, per famiglie o per chi desidera uno spazio verde in pieno centro.
Soluzione ideale per chi cerca indipendenza, spazi generosi e la comodità del centro paese.
Dati principali
| Riferimento | ID3023303 |
| Data annuncio | 26/03/2022 |
| Contratto | Vendita |
| Tipologia | Terratetto - Terracielo |
| Superficie | 237 m2 |
| Locali | più di 5 (2 camere da letto, 4 altro), 2 bagni |
| Piano | Terra, 2 totali |
| Numero box | 2 |
Caratteristiche
Costi
| Prezzo | 99.000 € |
| Prezzo al m2 | 418 €/m2 |
Efficienza energetica
| Anno costruzione | 1900 |
| Riscaldamento | Autonomo |
| Tipo Impianto Di Riscaldamento | a radiatori |
| Tipo Alimentazione Riscaldamento | Gasolio |
| Classe energetica | G |
| Indice di prestazione energetica (EP GL, REN) | 12.36 kWh/m2 anno |
| Indice di prestazione energetica (EP GL, NREN) | 23.12 kWh/m2 anno |
| Prestazione energetica fabbricato invernale | ![]() |
| Prestazione energetica fabbricato estiva | ![]() |
Planimetrie
Indirizzo e mappa
Magliano Alpi
Calcolo mutuo
Prezzo di vendita:
Anticipo
20,00
Mutuo
80,00
Tasso: -+
Rata: 283 al mese
I risultati sono una stima indicativa basata sui dati inseriti e non costituiscono un’offerta finanziaria.
Inserzionista

lacasa.immo di Cassinelli Davide
Piazza G. Perotti, 41, Carrù
Mostra Telefono
Chiama
CONTATTA


