Ufficio Via Corselli, Piacenza
€ 444.000
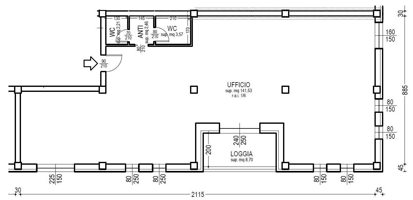
GALLENA - E' iniziata la NUOVA COSTRUZIONE in Classe A4 di un tecnologico stabile completamente ad uso direzionale / terziario con uffici di varie metrature da progettare internamente con spazi su misura. Verranno realizzati 10 uffici di cui due piani terra commerciali con vetrine già prenotati (venduti). Posizionato a ridosso degli accessi di snodo della tangenziale e di Corso Europa, comodo sia per il personale che per la clientela con gli ampi spazi di ricezione e posteggio presenti nella zona. Stabile con ascensore, disposto tra piano terra (venduto) primo e secondo con terrazzi a loggia. I lavori sono iniziarti e termineranno alla fine del 2027. Sono aperte le prenotazioni: in questa fase, oltre a poter scegliere l'ufficio più adatto, è possibile scegliere in primis l'orientamento, l'esposizione e soprattutto la disposizione interna su misura per le proprie esigenze di lavoro. I materiali e le finiture sono all'interno del ricco capitolato selezionato per questo intervento. La tecnologia sarà esattamente quella attuale con il riscaldamento a pavimento e aria condizionata in pompa di calore autonoma con l'eliminazione completa del gas oltre ad impianto fotovoltaico per 1,5 kW/h individuale per ogni unità. Posti auto sono disponibili per essere abbinati. In questo annuncio proponiamo UFFICIO nr. 9 posto al piano secondo. Di seguito l'elenco delle porzioni disponibili in base a metratura commerciale e prezzo (posti auto esclusi): nr. 2 UFFICI di mq 152 ad 380.000 uno al primo piano ed uno al piano secondo nr. 2 UFFICI di mq 194 ad 485.000 uno al primo piano ed uno al piano secondo UFFICIO di mq 163 ad 407.000 al primo piano UFFICIO di mq 135 ad 337.000 al primo piano UFFICIO di mq 178 ad 444.000 al secondo piano UFFICIO di mq 141 ad 352.000 al secondo piano Le immagini dei rendering esterni corrispondono a quanto di progetto programmato mentre i rendering interni sono puramente dimostrativi realizzati in base alle proposte di arredo *INFORMATIVA PRIVACY*Per tutelare la privacy dei nostri clienti, vi informiamo che, in alcuni casi, L'INDIRIZZO INDICATO DELL'IMMOBILE E' SOLITAMENTE APPROSSIMATIVO. Maggiori dettagli verranno SEMPRE forniti SOLO dopo contatto telefonico. Per qualsiasi informazione e per visite potete contattarci ai riferimenti sotto indicati: Si riceve SEMPRE SOLO ESCLUSIVAMENTE con appuntamento da contatto telefonico o mail. dal Lunedì al Venerdì dalle 9.00 alle 12.30 e dalle 14.00 alle 18.00Sabato mattina SOLO PER APPUNTAMENTI - Domenica CHIUSOTEL. 0523.49.08.18MAIL: [email protected];MAIL: [email protected];SOLUZIONECASA Piacenza - Via Monte Penice 18 - 29121 Piacenza
Dati principali
| Riferimento | MC11326_2 |
| Data annuncio | 14/04/2026 |
| Contratto | Vendita |
| Tipologia | Ufficio |
| Superficie | 178 m2 |
| Locali | 5 (5 altro), 2 bagni |
| Piano | 1 di 2 totali |
| Occupato | Libero |
| Box auto | Assente |
| Arredamento | Assente |
Caratteristiche
Costi
| Prezzo | 444.000 € |
| Prezzo al m2 | 2.494 €/m2 |
Efficienza energetica
| Tipo Alimentazione Riscaldamento | Altro |
| Classe energetica | A1 |
Planimetrie
Indirizzo e mappa
Via Corselli, Piacenza
Annuncio senza mappa,
prova a chiedere la posizione all'inserzionista
prova a chiedere la posizione all'inserzionista
Calcolo mutuo
Prezzo di vendita:
Anticipo
20,00
Mutuo
80,00
Tasso: -+
Rata: 1.270 al mese
I risultati sono una stima indicativa basata sui dati inseriti e non costituiscono un’offerta finanziaria.
Inserzionista
SOLUZIONE CASA
Via Monte Penice 18, Piacenza
Mostra Telefono
Chiama
CONTATTA

