Quadrilocale Via Michelangelo Buonarroti, Acqui Terme
€ 55.000Quadrilocale in vendita
Acqui Terme.
Alloggio posto in una zona comodissima data la vicinanza a tutti i principali servizi.
L'appartamento è situato all'ultimo piano in un condominio tranquillo e con ascensore. Essendo un piano alto, caratteristica dell'immobile è la vista panoramica su Acqui.
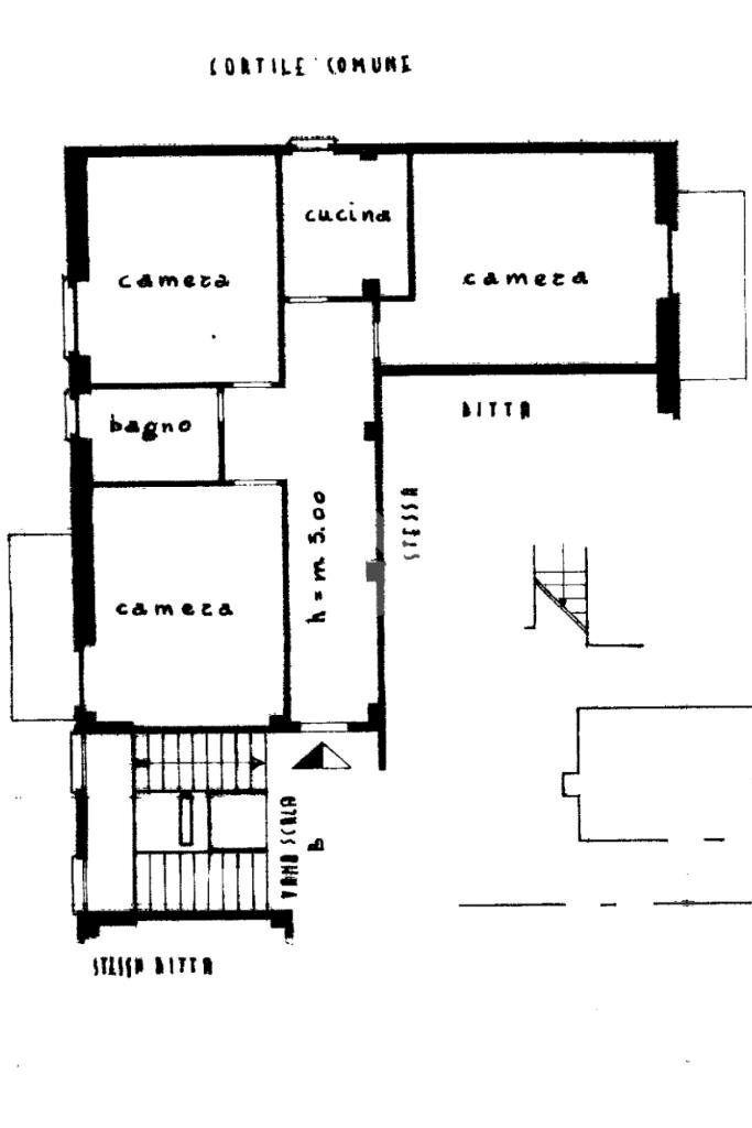
Come è possibile vedere dalla planimetria allegata alle foto si compone di ingresso su corridoio, cucina, salone luminoso con balcone e vista aperta, un bagno, due camere da letto di cui una con poggiolo.
Completa la proprietà la cantina.
Alloggio posto in una zona comodissima data la vicinanza a tutti i principali servizi.
L'appartamento è situato all'ultimo piano in un condominio tranquillo e con ascensore. Essendo un piano alto, caratteristica dell'immobile è la vista panoramica su Acqui.
Come è possibile vedere dalla planimetria allegata alle foto si compone di ingresso su corridoio, cucina, salone luminoso con balcone e vista aperta, un bagno, due camere da letto di cui una con poggiolo.
Completa la proprietà la cantina.
Dati principali
| Riferimento | 61205285 |
| Data annuncio | 14/04/2026 |
| Contratto | Vendita |
| Tipologia | Appartamento |
| Superficie | 85 m2 |
| Locali | 4 (4 altro), 1 bagno |
| Piano | 4 di 4 totali |
Costi
| Prezzo | 55.000 € |
| Prezzo al m2 | 647 €/m2 |
| Spese condominiali | € 150,00/mese |
Efficienza energetica
| Anno costruzione | 1973 |
| Riscaldamento | Centralizzato |
| Tipo Alimentazione Riscaldamento | Metano |
| Classe energetica | G |
| Indice di prestazione energetica (EP GL, NREN) | 358.56 kWh/m3 anno |
Planimetrie
Indirizzo e mappa
Via Michelangelo Buonarroti, Acqui Terme
Calcolo mutuo
Prezzo di vendita:
Anticipo
20,00
Mutuo
80,00
Tasso: -+
Rata: 157 al mese
I risultati sono una stima indicativa basata sui dati inseriti e non costituiscono un’offerta finanziaria.
Inserzionista
Chiama
CONTATTA

