Trilocale Via Malva Sud, Cervia
€ 279.000Trilocale in vendita
CERVIA - MALVA SUD:
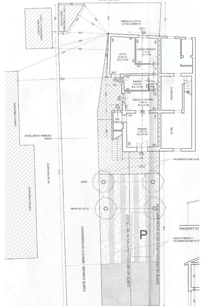
Al piano terra di una villetta, proponiamo un appartamento recentemente ristrutturato, ideale per chi cerca una soluzione comoda e funzionale da vivere tutto l’anno. L’ingresso è indipendente e si affaccia su un piacevole giardinetto privato, perfetto per momenti di relax all’aperto.
La zona giorno è luminosa e ben distribuita, con soggiorno e cucina abitabile separata.
La zona notte comprende una camera matrimoniale di buone dimensioni e una seconda stanza accatastata come cabina armadio, ma sufficientemente ampia da ospitare comodamente un letto a castello, rendendola versatile per ospiti, bambini o smart working.
Il bagno è finestrato e dotato di box doccia. A completare la funzionalità dell’immobile troviamo un pratico ripostiglio con lavatrice e una zona porticata ideale come sfogo esterno aggiuntivo.
Adiacente è presente una cantina, utile come deposito attrezzature e oggetti stagionali.
Una soluzione completa, senza barriere architettoniche, perfetta per chi desidera vivere al piano terra con spazi esterni e indipendenza.
Dati principali
| Riferimento | 61205123 |
| Data annuncio | 12/04/2026 |
| Contratto | Vendita |
| Tipologia | Appartamento |
| Superficie | 71 m2 |
| Locali | 3 (3 altro), 1 bagno |
| Piano | 2 totali |
| Numero posti auto | 1 |
Costi
| Prezzo | 279.000 € |
| Prezzo al m2 | 3.930 €/m2 |
Efficienza energetica
| Anno costruzione | 1970 |
| Riscaldamento | Autonomo |
| Tipo Alimentazione Riscaldamento | Metano |
| Classe energetica | Immobile esente da certificazione energetica |
Planimetrie
Indirizzo e mappa
Via Malva Sud, Cervia
Calcolo mutuo
Prezzo di vendita:
Anticipo
20,00
Mutuo
80,00
Tasso: -+
Rata: 798 al mese
I risultati sono una stima indicativa basata sui dati inseriti e non costituiscono un’offerta finanziaria.
Inserzionista
Agenzia Tecnorete Studio Liberty Srl
Via Ravenna, 5, Cervia
Mostra Telefono
Chiama
CONTATTA

