Casa indipendente via Francesco Cossiga, 180, Siligo
€ 95.000CASA INDIPENDENTE IMMERSA NEL VERDE
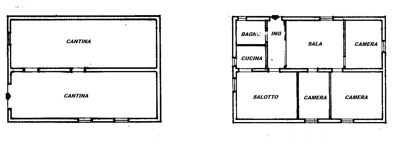
Situato nel tranquillo comune di Siligo, questo terratetto unifamiliare si trova in Via Francesco Cossiga, una zona che offre un contesto residenziale sereno e ben collegato. La proprietà è libera su quattro lati, garantendo così una maggiore privacy e luminosità. La posizione è ideale per chi cerca un ambiente tranquillo senza rinunciare alla comodità dei servizi essenziali nelle vicinanze, visto anche l' immediato ingresso con cancello sulla strada principale all' uscita del paese. L'immobile si sviluppa su due piani, con una superficie commerciale di circa 145 metri quadrati. Al piano terra, l'ingresso conduce a un accogliente soggiorno dotato di camino e ad una grande sala, perfette per creare un'atmosfera calda e accogliente durante le serate invernali. La cucina è un pratico cucinotto, adatto per chi ama cucinare in uno spazio funzionale. La zona notte comprende tre camere da letto, offrendo ampio spazio per una famiglia o per ospiti. Il bagno, finestrato e completo di doccia è ben posizionato per servire comodamente tutte le stanze. La veranda esterna, che costeggia due quarti della proprietà, offre uno spazio esterno aggiuntivo, ideale per momenti di relax all'aperto. La proprietà include anche una taverna, nel piano seminterrato, che può essere utilizzata come spazio ricreativo o per lo stoccaggio, e una cantina per ulteriore spazio di archiviazione, con un suo ingresso indipendente. L'immobile è in stato abitabile e viene venduto arredato, facilitando così un immediato trasferimento. Il riscaldamento è autonomo, con un impianto a radiatori alimentato a pellet, mentre il climatizzatore autonomo offre aria condizionata sia fredda che calda, garantendo comfort in ogni stagione. Gli infissi sono in vetro camera. Il terreno, piantumato con alberi da frutto, uliveto e macchia mediterranea di circa mezzo ettaro, circonda tutta la proprietà, garantendo un' oasi di pace per chiunque ami la natura. Spazio necessario per ospitare più posti auto nel cortile, un vantaggio significativo per chi possiede più veicoli. L'immobile è attualmente a reddito e sarà libero da Marzo 2026. Punti di forza dell'immobile: - indipendente - terreno - pronto da vivere La linea di autobus più vicina è SILIGO VIA F.COSSIGA 64 (260 m). Stai pensando di vendere o affittare casa? Con RockAgent puoi vendere o affittare il tuo immobile assicurandoti un servizio eccellente, garantito da agenti immobiliari selezionati supportati da un team tecnico, marketing e legale di altissimo livello. Visita il sito RockAgent.it e ottieni una valutazione gratuita del tuo immobile.
Dati principali
| Riferimento | 160638 - 10/04/2026 |
| Data annuncio | 10/03/2026 |
| Contratto | Vendita |
| Tipologia | Casa indipendente |
| Superficie | 145 m2 |
| Locali | 4 (3 camere da letto, 1 altro), 1 bagno, cucina cucinino |
| Piano | 2 totali |
| Tipo di costruzione | Media |
| Numero di terrazzi | 1 |
| Numero posti auto | 2 |
| Arredamento | Completo |
Caratteristiche
Costi
| Prezzo | 95.000 € |
| Prezzo al m2 | 655 €/m2 |
Efficienza energetica
| Anno costruzione | 1960 |
| Stato | Buono |
| Riscaldamento | Autonomo |
| Classe energetica | D |
| Indice di prestazione energetica (IPE) | 175 kWh/m2 anno |
Planimetrie
Indirizzo e mappa
via Francesco Cossiga, 180, Siligo
Calcolo mutuo
Prezzo di vendita:
Anticipo
20,00
Mutuo
80,00
Tasso: -+
Rata: 272 al mese
I risultati sono una stima indicativa basata sui dati inseriti e non costituiscono un’offerta finanziaria.
Inserzionista

RockAgent
Via di Santa Costanza 21, Roma
Mostra Telefono
Chiama
CONTATTA

